Elfir 15.02.2019 11:43 Zgłoś naruszenie Udostępnij Napisano 15 Lutego 2019 to bardzo standardowa kuchnia i chyba już ją komuś rysowałam Cytuj Odnośnik do komentarza https://forum.murator.pl/topic/226725-projekt-do-oceny/page/2/#findComment-7652956 Udostępnij na innych stronach Więcej opcji udostępniania
ppppawel 15.02.2019 13:10 Zgłoś naruszenie Udostępnij Napisano 15 Lutego 2019 dzięki, spróbuję poszukać w takim razie Cytuj Odnośnik do komentarza https://forum.murator.pl/topic/226725-projekt-do-oceny/page/2/#findComment-7653009 Udostępnij na innych stronach Więcej opcji udostępniania
Elfir 15.02.2019 13:42 Zgłoś naruszenie Udostępnij Napisano 15 Lutego 2019 Wejście od szczytu schodów do spiżarni powoduje, że będzie ona bardzo wąska i nieustawna. Cytuj Odnośnik do komentarza https://forum.murator.pl/topic/226725-projekt-do-oceny/page/2/#findComment-7653022 Udostępnij na innych stronach Więcej opcji udostępniania
ppppawel 16.02.2019 18:01 Zgłoś naruszenie Udostępnij Napisano 16 Lutego 2019 Wejście od szczytu schodów do spiżarni powoduje, że będzie ona bardzo wąska i nieustawna. Miałem nadzieję, że jakoś się wciśnie tam wąski regał, ale w takim razie zostaje Twoje rozwiązanie. Tylko wtedy jest taki "tunel" do spiżarki pomiędzy piekarnikiem a lodówką, ale trzeba się będzie z tym pogodzić Cytuj Odnośnik do komentarza https://forum.murator.pl/topic/226725-projekt-do-oceny/page/2/#findComment-7653494 Udostępnij na innych stronach Więcej opcji udostępniania
Elfir 16.02.2019 20:00 Zgłoś naruszenie Udostępnij Napisano 16 Lutego 2019 (edytowane) wygląda to tak: http://cdn20.urzadzamy.smcloud.net/t/photos/t/52512/spizarnia_2431499.jpg Edytowane 16 Lutego 2019 przez Elfir Cytuj Odnośnik do komentarza https://forum.murator.pl/topic/226725-projekt-do-oceny/page/2/#findComment-7653576 Udostępnij na innych stronach Więcej opcji udostępniania
ppppawel 17.02.2019 16:29 Zgłoś naruszenie Udostępnij Napisano 17 Lutego 2019 Dzięki, super to wygląda, nie wpadłem na to żeby było wejście przez szafkę. Cytuj Odnośnik do komentarza https://forum.murator.pl/topic/226725-projekt-do-oceny/page/2/#findComment-7654014 Udostępnij na innych stronach Więcej opcji udostępniania
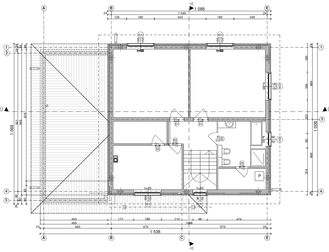
ppppawel 27.02.2019 13:33 Zgłoś naruszenie Udostępnij Napisano 27 Lutego 2019 (edytowane) Bardzo skorzystałem z tego wątku przy dostosowaniu piętra w projekcie do swoich potrzeb. Wstawiam mój układ na piętrze. Jakby ktoś miał jakieś uwagi lub pytania to chętnie wysłucham, odpowiem. Dwa duże pokoje - dla dzieci Sypialnia i garderoba - dla nas W pralni najprawdopodobniej będzie też rekuperator Edytowane 27 Lutego 2019 przez ppppawel Cytuj Odnośnik do komentarza https://forum.murator.pl/topic/226725-projekt-do-oceny/page/2/#findComment-7658035 Udostępnij na innych stronach Więcej opcji udostępniania
Elfir 27.02.2019 14:43 Zgłoś naruszenie Udostępnij Napisano 27 Lutego 2019 jak chcesz ustawić łóżko w sypialni?jaka szerokosc ma garderoba? Cytuj Odnośnik do komentarza https://forum.murator.pl/topic/226725-projekt-do-oceny/page/2/#findComment-7658071 Udostępnij na innych stronach Więcej opcji udostępniania
ppppawel 27.02.2019 17:37 Zgłoś naruszenie Udostępnij Napisano 27 Lutego 2019 Dodałem na rysunku wymiary pomieszczeń i dorysowałem łóżko, garderoba ma wymiary 150x358, czy to ok? Cytuj Odnośnik do komentarza https://forum.murator.pl/topic/226725-projekt-do-oceny/page/2/#findComment-7658095 Udostępnij na innych stronach Więcej opcji udostępniania
Elfir 27.02.2019 18:59 Zgłoś naruszenie Udostępnij Napisano 27 Lutego 2019 drzwi do pralni zrób albo na zewnątrz albo suwane, chowane w kasecie. Podobnie w garderobie. Zastanów się na ile będzie wygodne mycie okna w łazience przy odsuniętej od okna wannie? Drzwi łazienki zdecydowanie powinny otwierać się na odwrót, bo inaczej można uderzyć kogoś idącego po schodach. W garderobie, przy założeniu szerokości szafy 60 cm, na przejście zostaje 90 cm. Może tak: Cytuj Odnośnik do komentarza https://forum.murator.pl/topic/226725-projekt-do-oceny/page/2/#findComment-7658125 Udostępnij na innych stronach Więcej opcji udostępniania
ppppawel 27.02.2019 20:13 Zgłoś naruszenie Udostępnij Napisano 27 Lutego 2019 (edytowane) Twój układ jest zdecydowanie nam się lepiej podoba I taka garderoba całkowicie maskuje komin idący po ścianie. W rysunku jest błąd okno w łazience ma mieć wymiary 90x150 (a nie 90x50), no mycie niestety nie będzie za wygodne. Trzeba będzie stać na "półce" pomiędzy wanną a ścianą. Z drzwiami też masz rację. Na pewno nie będzie TV w sypialni (choć to popularne), jak na razie nie mamy wcale i nie brakuje. Dziękuję bardzo. Edytowane 28 Lutego 2019 przez ppppawel Cytuj Odnośnik do komentarza https://forum.murator.pl/topic/226725-projekt-do-oceny/page/2/#findComment-7658162 Udostępnij na innych stronach Więcej opcji udostępniania
Recommended Posts
Dołącz do dyskusji
Możesz dodać zawartość już teraz a zarejestrować się później. Jeśli posiadasz już konto, zaloguj się aby dodać zawartość za jego pomocą.