lenka9 10.01.2018 12:58 Zgłoś naruszenie Udostępnij Napisano 10 Stycznia 2018 Bardzo proszę o pomoc w aranżacji dużego 23 metrowego pokoju dla 2 dzieci. Dziewczynka 7 lat i chłopiec 3 lata. Długość pokoju 5,5 m szer. 4,3 m. wejście po środku, na wprost mniej więcej po środku jedno okno. Aktualnie jedna ściana różowa druga przeciwległa niebieska stanowią strefy dzieci, każde na "swojej ścianie" ma łóżko i komodę.Brak dalszej koncepcji:) dużo miejsca, ale ciężko jest mi sensownie wydzielić dla starszej córki strefę spania i nauki.Bardzo proszę o pomysły i podpowiedzi.Pozdrawiam Cytuj Odnośnik do komentarza https://forum.murator.pl/topic/235127-du%C5%BCy-pok%C3%B3j-dla-rodze%C5%84stwa/ Udostępnij na innych stronach Więcej opcji udostępniania
lenka9 10.01.2018 13:10 Autor Zgłoś naruszenie Udostępnij Napisano 10 Stycznia 2018 Cytuj Odnośnik do komentarza https://forum.murator.pl/topic/235127-du%C5%BCy-pok%C3%B3j-dla-rodze%C5%84stwa/#findComment-7465070 Udostępnij na innych stronach Więcej opcji udostępniania
Elfir 10.01.2018 13:16 Zgłoś naruszenie Udostępnij Napisano 10 Stycznia 2018 http://mininormalna.s3-eu-central-1.amazonaws.com/wp-content/uploads/2015/05/podzial-stref.jpg Cytuj Odnośnik do komentarza https://forum.murator.pl/topic/235127-du%C5%BCy-pok%C3%B3j-dla-rodze%C5%84stwa/#findComment-7465077 Udostępnij na innych stronach Więcej opcji udostępniania
lenka9 10.01.2018 13:27 Autor Zgłoś naruszenie Udostępnij Napisano 10 Stycznia 2018 wolałabym narazie nie stawiać ścianek działowych. Zagospodarować ściany przeciwległe a środek zostawić do zabawy? Cytuj Odnośnik do komentarza https://forum.murator.pl/topic/235127-du%C5%BCy-pok%C3%B3j-dla-rodze%C5%84stwa/#findComment-7465084 Udostępnij na innych stronach Więcej opcji udostępniania
Elfir 10.01.2018 14:45 Zgłoś naruszenie Udostępnij Napisano 10 Stycznia 2018 wersja pierwsza daje większa intymność dziecku, zwłaszcza podczas porannego ubierania się, gdy dziewczynka stanie się nastolatką Cytuj Odnośnik do komentarza https://forum.murator.pl/topic/235127-du%C5%BCy-pok%C3%B3j-dla-rodze%C5%84stwa/#findComment-7465120 Udostępnij na innych stronach Więcej opcji udostępniania
lenka9 11.01.2018 08:29 Autor Zgłoś naruszenie Udostępnij Napisano 11 Stycznia 2018 bardzo dziękuje, na ten moment najbliższa jest mi ta wersja z biurkiem po środku przy oknie. Na jakiś czas wystarczy. Za 3, 4 lata planuje podzielić ten pokój ścianką z regipsów. Jakieś pomysły? Cytuj Odnośnik do komentarza https://forum.murator.pl/topic/235127-du%C5%BCy-pok%C3%B3j-dla-rodze%C5%84stwa/#findComment-7465463 Udostępnij na innych stronach Więcej opcji udostępniania
gutozaur 16.01.2018 14:12 Zgłoś naruszenie Udostępnij Napisano 16 Stycznia 2018 bardzo dziękuje, na ten moment najbliższa jest mi ta wersja z biurkiem po środku przy oknie. Na jakiś czas wystarczy. Za 3, 4 lata planuje podzielić ten pokój ścianką z regipsów. Jakieś pomysły? Mam dokładnie ten sam "problem". Jedyne rozsądne rozwiązanie jakie znalazłem na tą chwilę to to w załączniku. Mam dwa okna obok siebie z przerwą 20cm i po prostu chyba muszę wycelować tą ściankę między okna. Cytuj Odnośnik do komentarza https://forum.murator.pl/topic/235127-du%C5%BCy-pok%C3%B3j-dla-rodze%C5%84stwa/#findComment-7468518 Udostępnij na innych stronach Więcej opcji udostępniania
lenka9 05.04.2018 11:42 Autor Zgłoś naruszenie Udostępnij Napisano 5 Kwietnia 2018 Ja niestety mam w tym dużym pokoju tylko jedno okno (1,4 m) i cały czas się zastanawiam jak to w przyszłości podzielić, a obawiam się że przyszłość nadejdzie szybciej niż mi się wydaje Cytuj Odnośnik do komentarza https://forum.murator.pl/topic/235127-du%C5%BCy-pok%C3%B3j-dla-rodze%C5%84stwa/#findComment-7516493 Udostępnij na innych stronach Więcej opcji udostępniania
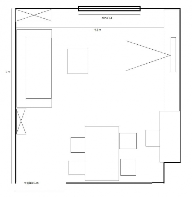
lenka9 05.04.2018 12:25 Autor Zgłoś naruszenie Udostępnij Napisano 5 Kwietnia 2018 Ogromna prośba. Jak urządzić salon o powierzchni 22 m aby stworzyć w nim strefę wypoczynku, jadalni i miejsce do pracy (biurko i półki na dokumenty). Mam już kupioną sofę (245x100) i stół 140x80 z 6 krzesłami. Nie wiem jak to poustawiać sensownie:( Cytuj Odnośnik do komentarza https://forum.murator.pl/topic/235127-du%C5%BCy-pok%C3%B3j-dla-rodze%C5%84stwa/#findComment-7516528 Udostępnij na innych stronach Więcej opcji udostępniania
Elfir 05.04.2018 14:23 Zgłoś naruszenie Udostępnij Napisano 5 Kwietnia 2018 (edytowane) inspiracje: Edytowane 5 Kwietnia 2018 przez Elfir Cytuj Odnośnik do komentarza https://forum.murator.pl/topic/235127-du%C5%BCy-pok%C3%B3j-dla-rodze%C5%84stwa/#findComment-7516604 Udostępnij na innych stronach Więcej opcji udostępniania
lenka9 09.04.2018 07:39 Autor Zgłoś naruszenie Udostępnij Napisano 9 Kwietnia 2018 Super Cytuj Odnośnik do komentarza https://forum.murator.pl/topic/235127-du%C5%BCy-pok%C3%B3j-dla-rodze%C5%84stwa/#findComment-7518221 Udostępnij na innych stronach Więcej opcji udostępniania
E-Rzecznik Śnieżka 30.05.2018 07:28 Zgłoś naruszenie Udostępnij Napisano 30 Maja 2018 W pokojach dziecięcych można pomyśleć o szklanej lub ażurowej ściance, gdy nie ma możliwości podzielenia pomieszczenia tak by było w nim okno lub przynajmniej umownej kotary. Umowna granica pomiędzy strefą brata i siostry pozwoli utrzymać poczucie intymności oraz rozwiązać ewentualne nieporozumienia. Podzieloną przestrzeń można podkreślić kolorystyką ścian jak na załączonym zdjęciu. Cytuj Odnośnik do komentarza https://forum.murator.pl/topic/235127-du%C5%BCy-pok%C3%B3j-dla-rodze%C5%84stwa/#findComment-7539199 Udostępnij na innych stronach Więcej opcji udostępniania
Recommended Posts
Dołącz do dyskusji
Możesz dodać zawartość już teraz a zarejestrować się później. Jeśli posiadasz już konto, zaloguj się aby dodać zawartość za jego pomocą.