marcin18wawa 23.01.2018 18:29 Zgłoś naruszenie Udostępnij Napisano 23 Stycznia 2018 Witam wszystkich, Bardzo proszę o pomoc w aranżacji mojego mieszkania o powierzchni 41m2. Chciałbym się skupić początkowo na pomieszczeniach. Moje pytanie dotyczy garderoby. Na projekcie widać zaznaczone pomieszczenie jako garderoba, jest to mój pomysł, który deweloper naniósł mi na rzut. Zastanawiam się czy nie jest ona za duża jak na takie małe mieszkanie i czy pokój który powstał nie jest za ma mały. Drugim pytanie dotyczy wnęki na szafę w przedpokoju czy ja zostawić, pomniejszyć, a może usunąć tworząc otwarta przestrzeń. Proszę ewentualnie o inne pomysły i sugestię dotyczące tego mieszkania. Dodam, że mieszkać będą w mieszkaniu maksymalnie dwie dorosłe osoby. Z góry bardzo dziękuje. Cytuj Odnośnik do komentarza https://forum.murator.pl/topic/235490-pomys%C5%82-na-mieszkanie-41m2-prosz%C4%99-o-porade/ Udostępnij na innych stronach Więcej opcji udostępniania
Sylw. 23.01.2018 18:53 Zgłoś naruszenie Udostępnij Napisano 23 Stycznia 2018 Moim zdaniem jest dobrze, no pokój generalnie mały- martwi mnie te małe łóżko to 90?No ale im więcej miejsca do przechowywania tym lepiej. Cytuj Odnośnik do komentarza https://forum.murator.pl/topic/235490-pomys%C5%82-na-mieszkanie-41m2-prosz%C4%99-o-porade/#findComment-7473180 Udostępnij na innych stronach Więcej opcji udostępniania
marcin18wawa 23.01.2018 19:40 Autor Zgłoś naruszenie Udostępnij Napisano 23 Stycznia 2018 Moim zdaniem jest dobrze, no pokój generalnie mały- martwi mnie te małe łóżko to 90? No ale im więcej miejsca do przechowywania tym lepiej. Hmm myślę aby wstawić duże łóżko pod same okno w sypialni, a biurko usunąć. Cytuj Odnośnik do komentarza https://forum.murator.pl/topic/235490-pomys%C5%82-na-mieszkanie-41m2-prosz%C4%99-o-porade/#findComment-7473216 Udostępnij na innych stronach Więcej opcji udostępniania
Elfir 23.01.2018 19:56 Zgłoś naruszenie Udostępnij Napisano 23 Stycznia 2018 Cytuj Odnośnik do komentarza https://forum.murator.pl/topic/235490-pomys%C5%82-na-mieszkanie-41m2-prosz%C4%99-o-porade/#findComment-7473236 Udostępnij na innych stronach Więcej opcji udostępniania
kinka 24.01.2018 07:36 Zgłoś naruszenie Udostępnij Napisano 24 Stycznia 2018 Cytuj Odnośnik do komentarza https://forum.murator.pl/topic/235490-pomys%C5%82-na-mieszkanie-41m2-prosz%C4%99-o-porade/#findComment-7473430 Udostępnij na innych stronach Więcej opcji udostępniania
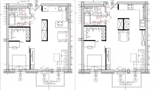
marcin18wawa 24.01.2018 11:28 Autor Zgłoś naruszenie Udostępnij Napisano 24 Stycznia 2018 Chyba najbardziej przypadł mi do gusty ten pomysł. Zachowujemy garderobę, mieści się duże łóżko. Jedynie co bym zmienił to zmniejszył o połowe te wnękę w przedpokoju i przesunął lodówkę. Co o tym myślicie? Cytuj Odnośnik do komentarza https://forum.murator.pl/topic/235490-pomys%C5%82-na-mieszkanie-41m2-prosz%C4%99-o-porade/#findComment-7473553 Udostępnij na innych stronach Więcej opcji udostępniania
Elfir 24.01.2018 14:10 Zgłoś naruszenie Udostępnij Napisano 24 Stycznia 2018 Nie wiem ile macie kurtek, butów, torebek, rękawiczek, szalików? Cytuj Odnośnik do komentarza https://forum.murator.pl/topic/235490-pomys%C5%82-na-mieszkanie-41m2-prosz%C4%99-o-porade/#findComment-7473639 Udostępnij na innych stronach Więcej opcji udostępniania
Sylw. 24.01.2018 16:37 Zgłoś naruszenie Udostępnij Napisano 24 Stycznia 2018 Nie wiem ile macie kurtek, butów, torebek, rękawiczek, szalików? i gdzieś trzeba trzymać mopa, odkurzacz, deskę do prasowania, pościel, ręczniki itp. Nie ma co zmniejszać pojemności szaf. Cytuj Odnośnik do komentarza https://forum.murator.pl/topic/235490-pomys%C5%82-na-mieszkanie-41m2-prosz%C4%99-o-porade/#findComment-7473732 Udostępnij na innych stronach Więcej opcji udostępniania
Recommended Posts
Dołącz do dyskusji
Możesz dodać zawartość już teraz a zarejestrować się później. Jeśli posiadasz już konto, zaloguj się aby dodać zawartość za jego pomocą.