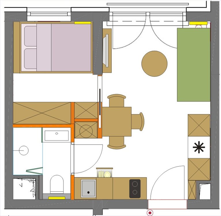
sambuca2009 04.04.2018 19:20 Zgłoś naruszenie Udostępnij Napisano 4 Kwietnia 2018 Cześć, zastanawiam się nad zakupem kawalerki pod wynajem. Inwestycja w fazie budowy i mogę wprowadzić zmiany w mieszkaniu według moich pomysłów. Wizualizacja mieszkania przygotowana przez dewelopera: Rzut z wymiarami: Zmiany, które chciałbym wprowadzić: Dajcie proszę znać fachowym okiem czy ta koncepcja ma sens? Wyszedłem z założenia żeby zrobić sypialnię w miejscu kuchni i przenieść pralkę do łazienki. Aneks kuchenny do zrealizowania jedynie na ścianie gdzie jest obecnie tzn między drzwiami wejściowymi (przesuniętymi) a ścianą łazienki. Po przeciwnej stronie pion nie jest kuchenny. Będę wdzięczny za Wasze opinie Pozdrawiam! Cytuj Odnośnik do komentarza https://forum.murator.pl/topic/237516-25m2-2-pokoje-ltmake-sensegt/ Udostępnij na innych stronach Więcej opcji udostępniania
anika1003 05.04.2018 10:06 Zgłoś naruszenie Udostępnij Napisano 5 Kwietnia 2018 Cytuj Odnośnik do komentarza https://forum.murator.pl/topic/237516-25m2-2-pokoje-ltmake-sensegt/#findComment-7516449 Udostępnij na innych stronach Więcej opcji udostępniania
sambuca2009 05.04.2018 11:26 Autor Zgłoś naruszenie Udostępnij Napisano 5 Kwietnia 2018 Dzięki za propozycje projektu. Niestety tak jak napisałem w pierwszej wiadomości kuchnia może być tylko w miejscu gdzie znajduje się na moim projekcie tzn na ścianie przy łazience. Cytuj Odnośnik do komentarza https://forum.murator.pl/topic/237516-25m2-2-pokoje-ltmake-sensegt/#findComment-7516486 Udostępnij na innych stronach Więcej opcji udostępniania
Elfir 05.04.2018 14:15 Zgłoś naruszenie Udostępnij Napisano 5 Kwietnia 2018 mozesz przestawić drzwi do mieszkania? Cytuj Odnośnik do komentarza https://forum.murator.pl/topic/237516-25m2-2-pokoje-ltmake-sensegt/#findComment-7516600 Udostępnij na innych stronach Więcej opcji udostępniania
sambuca2009 05.04.2018 14:35 Autor Zgłoś naruszenie Udostępnij Napisano 5 Kwietnia 2018 tak, mogę tylko nie mogę ich przestawić w stronę południową tylko północną (względem obrazka strony) Cytuj Odnośnik do komentarza https://forum.murator.pl/topic/237516-25m2-2-pokoje-ltmake-sensegt/#findComment-7516609 Udostępnij na innych stronach Więcej opcji udostępniania
Elfir 05.04.2018 15:00 Zgłoś naruszenie Udostępnij Napisano 5 Kwietnia 2018 Dla mnie w twojej wersji praktycznie nie ma miejsca na przechowywanie a teoretycznie chcesz wynajmować dla dwóch osób.Jakiś mop, wiadro, ubrania, kurtki, buty, plecak, dokumenty, pościel. Cytuj Odnośnik do komentarza https://forum.murator.pl/topic/237516-25m2-2-pokoje-ltmake-sensegt/#findComment-7516621 Udostępnij na innych stronach Więcej opcji udostępniania
kinka 13.04.2018 06:29 Zgłoś naruszenie Udostępnij Napisano 13 Kwietnia 2018 Cytuj Odnośnik do komentarza https://forum.murator.pl/topic/237516-25m2-2-pokoje-ltmake-sensegt/#findComment-7519923 Udostępnij na innych stronach Więcej opcji udostępniania
sambuca2009 13.04.2018 08:14 Autor Zgłoś naruszenie Udostępnij Napisano 13 Kwietnia 2018 @kinka bardzo dziękuję za projekt niestety tak jak napisałem nie mogę kuchni przenieść na stronę północną mieszkania :/ mogę za to przesunąć drzwi i kuchnię zrobić przy łazience. Wielkie dzięki za Twoje zainteresowanie, około dwa lata temu Twoje rady bardzo pomogły mi urządzić mieszkanie w którym obecnie mieszkam i jestem z niego bardzo zadowolony! Cytuj Odnośnik do komentarza https://forum.murator.pl/topic/237516-25m2-2-pokoje-ltmake-sensegt/#findComment-7519958 Udostępnij na innych stronach Więcej opcji udostępniania
alicyja 13.04.2018 13:29 Zgłoś naruszenie Udostępnij Napisano 13 Kwietnia 2018 Łazienka bez zmiany wymiarów. Najlepszy byłby prysznic bez brodzika i ze składanymi szybami lub zasłonką żeby nie ograniczać przestrzeni. Blat kuchenny ma ok. 200cm, np.: szafka zlew. 60cm, zmywarka 45cm, szuflady 90cm z płytą dwupalnikową. Po drugiej stronie wejścia do mieszkania szafy i lodówka. Szafa w sypialni ok.150cm i obok dwie wnęki po ok.45cmgłebokości - od strony kuchni nad pralką można postawić mikrofalówkę i/lub mini piekarnik. Do sypialni drzwi suwane - fajnie jakby dałoby się też zamontować suwane drzwi do łazienki (jeśli nie zweziłoby to za bardzo wnęki na pralkę). Grzejnik w sypialni przeniesiony wyżej np.na ścianę obok okna, w salonie tak jak jest planowany uniemożliwiłby przystawienie sofy do ściany więc też lepiej przenieść. Cytuj Odnośnik do komentarza https://forum.murator.pl/topic/237516-25m2-2-pokoje-ltmake-sensegt/#findComment-7520252 Udostępnij na innych stronach Więcej opcji udostępniania
sambuca2009 13.04.2018 14:02 Autor Zgłoś naruszenie Udostępnij Napisano 13 Kwietnia 2018 @Alicyja, a czy Ty wiesz, że to może być doskonały pomysł?! Wielkie dzięki, zwymiaruję sobie to na spokojnie czy komunikacyjnie wszystko gra ale w tym rzucie wygląda mega. Cytuj Odnośnik do komentarza https://forum.murator.pl/topic/237516-25m2-2-pokoje-ltmake-sensegt/#findComment-7520263 Udostępnij na innych stronach Więcej opcji udostępniania
Sylw. 13.04.2018 14:50 Zgłoś naruszenie Udostępnij Napisano 13 Kwietnia 2018 Z tego co wiem to szachtu nie da się przestawić. Cytuj Odnośnik do komentarza https://forum.murator.pl/topic/237516-25m2-2-pokoje-ltmake-sensegt/#findComment-7520271 Udostępnij na innych stronach Więcej opcji udostępniania
Sylw. 30.04.2018 18:27 Zgłoś naruszenie Udostępnij Napisano 30 Kwietnia 2018 Luxum co to za kanapa? Cytuj Odnośnik do komentarza https://forum.murator.pl/topic/237516-25m2-2-pokoje-ltmake-sensegt/#findComment-7527411 Udostępnij na innych stronach Więcej opcji udostępniania
markosbrezowski 02.05.2018 14:51 Zgłoś naruszenie Udostępnij Napisano 2 Maja 2018 całkiem ładnie wygląda i dobrze, że jest ściana miedzy "salonem" bo by strasznie ciągneło jedzeniem szególnie jak się boczek usmaży Cytuj Odnośnik do komentarza https://forum.murator.pl/topic/237516-25m2-2-pokoje-ltmake-sensegt/#findComment-7528122 Udostępnij na innych stronach Więcej opcji udostępniania
Recommended Posts
Dołącz do dyskusji
Możesz dodać zawartość już teraz a zarejestrować się później. Jeśli posiadasz już konto, zaloguj się aby dodać zawartość za jego pomocą.