sedrosx 08.06.2018 21:03 Zgłoś naruszenie Udostępnij Napisano 8 Czerwca 2018 Witam, Mam mega problem z rozplanowaniem kuchni w nowym budynku. Nie ma jeszcze ścianek działowych więc sporo można zmienić ale mam pustkę w głowie jak to wykonać. Tak więc mój problem polega na tym: - chcemy lodówkę typu side by side - piekarnik i mikrofala w słupku - półwysep z barkiem (coś w stylu jak jest na planach) Obok jest spiżarka z której nie chcemy zrezygnować. Za tydzień wchodzi ekipa z ściankami działowymi, zaraz elektryk i hydraulik - dobrze by było wiedzieć co gdzie będzie stało... Może ktoś podeśle jakiś pomysł jak to zrobić żeby nie rezygnować z piekarnika w słupku lub dużej lodówki? Cytuj Odnośnik do komentarza https://forum.murator.pl/topic/239057-problem-z-zaplanowaniem-kuchni/ Udostępnij na innych stronach Więcej opcji udostępniania
anika1003 09.06.2018 09:33 Zgłoś naruszenie Udostępnij Napisano 9 Czerwca 2018 Gdybyś wrzucił cały rzut, to można powiedzieć coś więcej. Na tym kawałku za wiele nie widać i nie da się wywnioskować jak będzie się kształtować reszta przestrzeni. Szczególnie od strony wejścia (?)- możliwość wygospodarowania spiżarni i garderoby. Skoro mówisz, że nie ma ścianek, to warto popatrzeć całościowo na wszytko. Cytuj Odnośnik do komentarza https://forum.murator.pl/topic/239057-problem-z-zaplanowaniem-kuchni/#findComment-7543118 Udostępnij na innych stronach Więcej opcji udostępniania
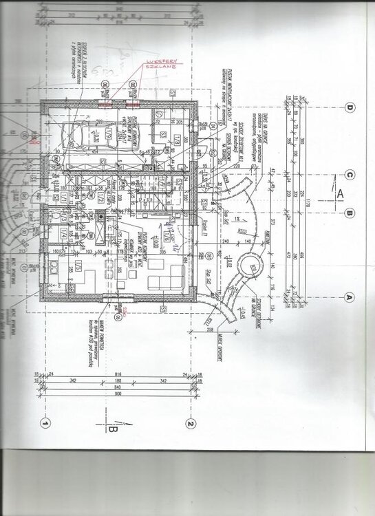
Elfir 09.06.2018 10:19 Zgłoś naruszenie Udostępnij Napisano 9 Czerwca 2018 anika - jest rzut - drugi obrazek. Maleńki, trzeba powiększyć obraz na monitorze. Stołu raczej nie ma jak cofnąć, bo salon maleńki. Cytuj Odnośnik do komentarza https://forum.murator.pl/topic/239057-problem-z-zaplanowaniem-kuchni/#findComment-7543123 Udostępnij na innych stronach Więcej opcji udostępniania
anika1003 09.06.2018 11:05 Zgłoś naruszenie Udostępnij Napisano 9 Czerwca 2018 A rzeczywiście.Nie zauważyłam go.Mimo powiększenia, to słabo widać. Chociażby wymiary.Widzę jednak, że to nie wiatrołap się tam znajduje koło spiżarni a wc (chyba?).Jak dla mnie, to bym jeszcze raz przeanalizowała tą część wiatrołap-wc-garderoba-spiżarnia. Cytuj Odnośnik do komentarza https://forum.murator.pl/topic/239057-problem-z-zaplanowaniem-kuchni/#findComment-7543136 Udostępnij na innych stronach Więcej opcji udostępniania
Elfir 09.06.2018 11:52 Zgłoś naruszenie Udostępnij Napisano 9 Czerwca 2018 Kolejny przykład na to, że wnętrze należy wstępnie zaprojektować przed kupnem projektu (lub na etapie projektowania) Cytuj Odnośnik do komentarza https://forum.murator.pl/topic/239057-problem-z-zaplanowaniem-kuchni/#findComment-7543147 Udostępnij na innych stronach Więcej opcji udostępniania
anika1003 09.06.2018 15:31 Zgłoś naruszenie Udostępnij Napisano 9 Czerwca 2018 Cytuj Odnośnik do komentarza https://forum.murator.pl/topic/239057-problem-z-zaplanowaniem-kuchni/#findComment-7543200 Udostępnij na innych stronach Więcej opcji udostępniania
anika1003 09.06.2018 16:04 Zgłoś naruszenie Udostępnij Napisano 9 Czerwca 2018 A drzwi do spiżarni w kuchni, można ukryć w taki sposób: http://wesmar.eu/resources/images/2015/6/15/482/dom-150m2-rzeszow-00023.jpg http://i.deccoria.strefa.com.pl/files/43863/81911/bigdf72c431725c0b7ff3c54701d68fde2d.jpg Cytuj Odnośnik do komentarza https://forum.murator.pl/topic/239057-problem-z-zaplanowaniem-kuchni/#findComment-7543204 Udostępnij na innych stronach Więcej opcji udostępniania
sedrosx 09.06.2018 20:54 Autor Zgłoś naruszenie Udostępnij Napisano 9 Czerwca 2018 (edytowane) Wielkie dzięki za zainteresowanie. Niestety o ile nie ma jeszcze ścianek działowych to kanalizacja została poprowadzona wg projektu, wiec zmiana miejsca wc raczej odpada. Patrząc teraz na powyższe propozycje ehh szlag trafia że człowiek wcześniej nie pomyślał lub nie zwrócił się tutaj. Wcześniej zakładaliśmy że piekarnik będzie pod płytą i po przedłużeniu lewej ściany kuchni (zwężając korytarzyk o ok 10cm) side by side spokojnie nam wejdzie. Dlatego projekt nam odpowiadał w całości. Niestety jak to często bywa upodobania zmieniają się. Wrzucam jeszcze pełen plan parteru z wymiarami, być może jeszcze jakiś pomysł się pojawi bez zmiany lokalizacji wc. Anika dziękuję bardzo na podpowiedzi, gdyby nie fakt że rury są już pod betonem na pewno skorzystalibyśmy z pierwszej opcji i te ukryte drzwi..miodzio. [ATTACH=CONFIG]414640[/ATTACH] Edytowane 9 Czerwca 2018 przez sedrosx Cytuj Odnośnik do komentarza https://forum.murator.pl/topic/239057-problem-z-zaplanowaniem-kuchni/#findComment-7543238 Udostępnij na innych stronach Więcej opcji udostępniania
anika1003 10.06.2018 09:56 Zgłoś naruszenie Udostępnij Napisano 10 Czerwca 2018 Ale łazienka pod schodami pojawiła się właśnie ze względu, że masz możliwość podłączenia się tam rurami- z tego co patrzyłam, to na górze jest też łazienka w tym miejscu. Może nie do końca wszystko stracone, a zrobienie poprawek na tym etapie będzie mniej kosztowne, niż późniejsze funkcjonowanie w niefunkcjonalnym domu. Ludzie zwykle się boją zmian "jak już coś jest", bo deweloper tego nie zmieni- wszystko się powinno dać zrobić. Tylko to już jest kwestia nastawienia czy wybierasz to co się na bank sprawdzi czy weźmiesz coś co wiesz że nie do końca będzie Tobie pasowało, no ale... jakoś przeżyjesz. Tylko nie zapominaj, że budujesz dom, pewnie na resztę życia i lepiej żeby wszystko było zrobione pod jego użytkowników, a nie bo deweloper już wykonał kolejny etap. Na pewno warto popytać o takie zmiany. A dodatkowa łazienka (nie wc) na parterze na pewno spełniłaby lepszą funkcję- chociażby żeby przyjść brudnym z garażu czy ogrodu i się opłukać... nie trzeba lecieć na górę. Jeżeli nic się nie będzie dało już zrobić z tymi instalacjami, to przerobiłabym jedną z propozycji na 2 opcje. Cytuj Odnośnik do komentarza https://forum.murator.pl/topic/239057-problem-z-zaplanowaniem-kuchni/#findComment-7543352 Udostępnij na innych stronach Więcej opcji udostępniania
sedrosx 17.06.2018 16:01 Autor Zgłoś naruszenie Udostępnij Napisano 17 Czerwca 2018 Dziękuję bardzo za pomoc Cytuj Odnośnik do komentarza https://forum.murator.pl/topic/239057-problem-z-zaplanowaniem-kuchni/#findComment-7545986 Udostępnij na innych stronach Więcej opcji udostępniania
E-Rzecznik Śnieżka 30.06.2018 16:03 Zgłoś naruszenie Udostępnij Napisano 30 Czerwca 2018 Problem koncepcyjny został już prawdopodobnie rozwiązany, można więc przejść płynnie do aranżacji Podrzucamy kilka inspiracji Śnieżki, które w tej kuchni mogą znaleźć zastosowanie. Cytuj Odnośnik do komentarza https://forum.murator.pl/topic/239057-problem-z-zaplanowaniem-kuchni/#findComment-7550421 Udostępnij na innych stronach Więcej opcji udostępniania
Recommended Posts
Dołącz do dyskusji
Możesz dodać zawartość już teraz a zarejestrować się później. Jeśli posiadasz już konto, zaloguj się aby dodać zawartość za jego pomocą.