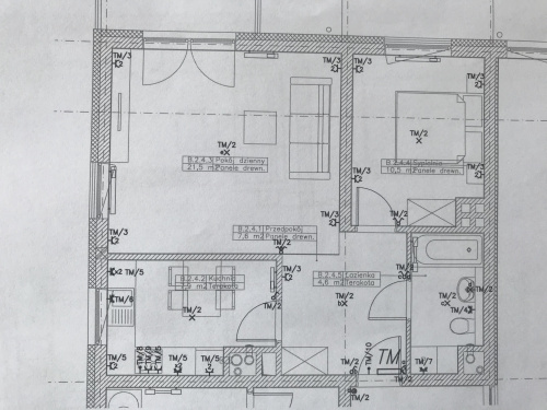
Teska 30.08.2018 16:24 Zgłoś naruszenie Udostępnij Napisano 30 Sierpnia 2018 (edytowane) Pomocy kochani, plan kuchni jak na zdjeciach...chce wymurować ścianke do konca drzwi, resztę scianki wyburzyć, lodówkę chciałabym własnie postawić tam gdzie sa na fotce drzwi, lodówka nie zabudowana, ale też obok niej we wnęce szafka 40 cm - nad lodówką szafka. Dziewczyny patrzac od komina w stronę okna...szafka 60 cm, szafka z piekarnikiem i płytą, szafka 60 cm, szafka narozna, szafka z małym zlewem - pod jego ociekaczem zmywarka i kawałek za oknem szafka 60 cm. - chciałam zrobic kuchnię z ikea Bobdyn szary...ale w ich planerze poległam na szafce nar óznej... Podpowiedzice jak zrobić zeby kuchnia była funkcjonalna, chciałabym zmiescic stół z krzesłami rozdzielający kuchnię od pokoju...myslałam też o wyspie..ale chyba nic z tego... od strony korytarza * tył lodówki i szafki w kuchni - bedzie szafa. Oto Plan... zastanawiałam się też nad takim rozwiązaniem...ale zupełnie nie wiem jak to zrobic...wspomnę ze mieszkanie jest budowane i wszystko mogę w nim zmienic.Wtedy musiałabym upchnać lodówkę piekarnik zmywarkę zlewozmywak na małej powierchni.. Pomocy poprosze!!!! Edytowane 30 Sierpnia 2018 przez Teska Cytuj Odnośnik do komentarza https://forum.murator.pl/topic/240960-kuchnia-i-salon/ Udostępnij na innych stronach Więcej opcji udostępniania
Elfir 30.08.2018 17:57 Zgłoś naruszenie Udostępnij Napisano 30 Sierpnia 2018 Spokojnie może być półwyspa i piekarnik w wysokiej zabudowie. Ale dodatkowo proponuję dodatkowe szafy, bo ta w sypialni jest malutka. Cytuj Odnośnik do komentarza https://forum.murator.pl/topic/240960-kuchnia-i-salon/#findComment-7570888 Udostępnij na innych stronach Więcej opcji udostępniania
Teska 30.08.2018 19:23 Autor Zgłoś naruszenie Udostępnij Napisano 30 Sierpnia 2018 Elfir, dziękuje za pomysł...masz rację szaf mało i miejsca na nie też... pomysł fajny jest - mam pytanie, ta szfa dodatkowa ( koło rogówki( jaki miałaby wymiar? i czy będzie wystarczające przejscie? nie miałam nigdy w takiej zabudowie lodówki blisko piekarnika, to się nie bedzie nagrzewało? tak myślę czy zamiast tej półwyspy - postawic tam tylko stół, wiesz tak w pzrejsciu.....ciekawa jestem czy meble z ikei dopasuje...czy jednak stolarza muszę szukac:) W sypialni miałam tam robić zabudowe - łózka tam nie bedzie tylko kanapa . Mieszkanie bedzie na wynajem Cytuj Odnośnik do komentarza https://forum.murator.pl/topic/240960-kuchnia-i-salon/#findComment-7570948 Udostępnij na innych stronach Więcej opcji udostępniania
E-Rzecznik Śnieżka 30.09.2018 16:32 Zgłoś naruszenie Udostępnij Napisano 30 Września 2018 Dodatkowa szafa może być też komodą (np. na buty) z wiszącym nad nią lustrem, a małe „coś” obok szafy -siedziskiem. Myślę, że projekt ciekawie pokazuje możliwość zagospodarowania przestrzeni, ale szczegóły można sobie dointerpretować Odległość lodówki od piekarnika jest ok, nowoczesne urządzenia są dobrze wyizolowane i bliskie sąsiedztwo im nie przeszkadza. Ikea ma program do projektowania zabudowy, jeśli znasz długości ścianek możesz spróbować zaprojektować tę kuchnię i od razu zobaczysz jaki będzie koszt zabudowy oraz wyposażenia. Jeśli mieszkanie ma być na wynajem to fajnie, gdyby nie tylko było funkcjonalne, ale także dobrze wyglądało. Jasna kolorystyka ścian i wyposażenia powiększy je optycznie i będzie rozwiązaniem bezpiecznym. Dla szukających jednak odważniejszych rozwiązań, poszukujących wskazówek i inspiracji polecamy artykuł: https://www.sniezka.pl/jak-wybrac-kolor/kolory-scian-w-kawalerce-inspirujace-aranzacje Cytuj Odnośnik do komentarza https://forum.murator.pl/topic/240960-kuchnia-i-salon/#findComment-7581905 Udostępnij na innych stronach Więcej opcji udostępniania
Recommended Posts
Dołącz do dyskusji
Możesz dodać zawartość już teraz a zarejestrować się później. Jeśli posiadasz już konto, zaloguj się aby dodać zawartość za jego pomocą.