Kudlaty1990 05.12.2018 22:47 Zgłoś naruszenie Udostępnij Napisano 5 Grudnia 2018 Na początku chciałbym się przywitać z członkami forum, jako że jest to mój pierwszy post Kupuję mieszkanie i mam możliwość przeprojektowania wnętrza, chciałbym się poradzić osób z doświadczeniem w projektowaniu. Załączam plan mieszkania. W skrócie opowiem nad jakimi zmianami się zastanawiam. 1. Łazienki - Nie potrzebujmy dwóch dużych w pełni wyposażonych łazienek. Nie chcemy mieć prysznica tylko dużą wannę z deszczownicą i prysznicem i parawanem nawannowym. Zastanawiam się czy łazienki na dole nie zmniejszyć do rozmiaru toalety (ubikacja i zlew, ewentualnie pralka), powiększając salon a zwiększyć łazienkę na górze kosztem pokoju 3. Pytanie pierwsze - czy przestrzeń o którą powiększony będzie salon da się sensownie wykorzystać, czy po prostu skończy się tylko na tym, że salon będzie szerszy i telewizor który prawdopodobnie byłby na ścianie oddzielającej salon od łazienki będzie dalej od sofy. Nie wiem czy ma to znaczenie ale dodam, że duże okno w salonie jest przesuwne, nie rozwieralne. Pytanie drugie - czy przesuwając ścianę górnej łazienki "wgłąb" pokoju 3 spowoduje, że łazienka będzie bardziej funkcjonalna czy tylko, że będzie bardziej przestronna? I czy nie spowoduje to, że pokój 3 będzie zupełnie niefunkcjonalny? Czy może usunąć wnękę na prysznic i tym samym powiększyć pokój 1? W obecnym projekcie salon ma szerokość 352cm, łazienka na dole 220cm(szersza we wnęce na prysznic) a długość od okna do drzwi 244cm, pokój 3 szer. 274cm (364cm do ramy drzwi), łazienka na górze szer. 211cm, długość od okna do drzwi 272cm. A może kompletnie inne rozwiązanie - zrobić bardzo dużą łazienkę na dole przesuwając ścianę po lewej stronie o 130cm w stronę pomieszczenia gospodarczego, kosztem powierzchni "komunikacji" (wtedy drzwi wejściowe do pokoju 1 zrobiłbym z korytarza wejściowego), łazienka miałaby 8,86m2, a zmniejszyć łazienkę na górze zwiększając przy tym pokój 3? 2. Okna w łazience są do samej ziemi - czy to znacząco wpłynie negatywnie na funkcjonalność łazienek i możliwość zagospodarowania przestrzeni? Pomyślałem np., że gdyby udało się wstawić krótsze okno, byłaby możliwość wstawienia długiej wanny wzdłuż ściany z oknem, tak żeby wchodziła pod okno. 3. Wnęka wzdłuż drzwi wejściowych w korytarzu jest głęboka tylko na 40cm. Czy przesunięcie ściany wgłąb pokoju 1 o 20cm tak, żeby wnęka była głębokości 60cm pozwoli mi wstawić w korytarzu zabudowaną szafę z przestrzenią na powieszenie kurtek (tak żeby rurka na wieszaki biegła wzdłuż ściany), czy byłaby potrzeba przesunąć ścianę jeszcze bardziej? Będę bardzo wdzięczny za wszelką pomoc i porady, dziękuję! Cytuj Odnośnik do komentarza https://forum.murator.pl/topic/243504-zmiany-w-projekcie-mieszkania-potrzebuj%C4%99-porady/ Udostępnij na innych stronach Więcej opcji udostępniania
Elfir 06.12.2018 11:50 Zgłoś naruszenie Udostępnij Napisano 6 Grudnia 2018 Okno do ziemi w łazience ma sens, jeśli nie trzeba będzie go wiecznie zasłaniać, bo sąsiedzi lub goście w ogrodzie nie mają wglądu kto siedzi na sedesie Górna łazienka jest rudna do zaaranżowania. Jak chcesz rozplanować sypialnie? Gdzie dzieci, gdzie wy? Cytuj Odnośnik do komentarza https://forum.murator.pl/topic/243504-zmiany-w-projekcie-mieszkania-potrzebuj%C4%99-porady/#findComment-7615539 Udostępnij na innych stronach Więcej opcji udostępniania
Kudlaty1990 06.12.2018 14:01 Autor Zgłoś naruszenie Udostępnij Napisano 6 Grudnia 2018 My w sypialni na górze, w pokoju 2. Chcemy tam wstawić tylko duże łóżko, szafki nocne i niedużą komodę naprzeciwko łóżka. Dzieciaków jeszcze nie ma i narazie jeszcze nie planujemy Jeżeli chodzi o pokój 3, tam myśleliśmy żeby wstawić zabudowaną szafę i rozkładaną kanapę dla gości. Pokój na parterze prawdopodobnie stanie się pokojem hobbistycznym dla naszej dwójki. Miał być stół bilardowy ale jednak pokój okazał się troszkę za mały Ale jestem otwarty na sugestie i porady, to jest moje pierwsze mieszkanie, które będę urządzał. Dzięki! Cytuj Odnośnik do komentarza https://forum.murator.pl/topic/243504-zmiany-w-projekcie-mieszkania-potrzebuj%C4%99-porady/#findComment-7615617 Udostępnij na innych stronach Więcej opcji udostępniania
Elfir 06.12.2018 14:43 Zgłoś naruszenie Udostępnij Napisano 6 Grudnia 2018 (edytowane) W tej sytuacji, niech goście śpią w pokoju hobbystycznym a na piętrze zróbcie sobie master bedroom Jako pierwsza zrobiłabym przeróbkę pieca gazowego i przeniosła go na parter. Edytowane 6 Grudnia 2018 przez Elfir Cytuj Odnośnik do komentarza https://forum.murator.pl/topic/243504-zmiany-w-projekcie-mieszkania-potrzebuj%C4%99-porady/#findComment-7615644 Udostępnij na innych stronach Więcej opcji udostępniania
Kudlaty1990 06.12.2018 15:03 Autor Zgłoś naruszenie Udostępnij Napisano 6 Grudnia 2018 Jako pierwsza zrobiłabym przeróbkę pieca gazowego i przeniosła go na parter. Nie da się, pytałem o to. Komin nie sięga na parter... Cytuj Odnośnik do komentarza https://forum.murator.pl/topic/243504-zmiany-w-projekcie-mieszkania-potrzebuj%C4%99-porady/#findComment-7615653 Udostępnij na innych stronach Więcej opcji udostępniania
Elfir 06.12.2018 15:24 Zgłoś naruszenie Udostępnij Napisano 6 Grudnia 2018 Piec może ci hałasować Cytuj Odnośnik do komentarza https://forum.murator.pl/topic/243504-zmiany-w-projekcie-mieszkania-potrzebuj%C4%99-porady/#findComment-7615660 Udostępnij na innych stronach Więcej opcji udostępniania
Elfir 06.12.2018 15:43 Zgłoś naruszenie Udostępnij Napisano 6 Grudnia 2018 Proponuje taki układ sypialni: w ciemnym kącie garderoba. Z połączenia dwóch pokoi sypialnia z kącikiem do pracy lub toaletką. Wejście do łazienki przeniesione, aby łazienka była bardziej foremna. Wydzielone małe pomieszczenie z piecem CO (w takim układzie musi być kondensacyjny) i pralką, osłonięte od sypialni suwanymi drzwiami. Cytuj Odnośnik do komentarza https://forum.murator.pl/topic/243504-zmiany-w-projekcie-mieszkania-potrzebuj%C4%99-porady/#findComment-7615668 Udostępnij na innych stronach Więcej opcji udostępniania
Elfir 06.12.2018 15:46 Zgłoś naruszenie Udostępnij Napisano 6 Grudnia 2018 Albo użyć pompy ciepła i wówczas nie musisz się przejmować kominami. Cytuj Odnośnik do komentarza https://forum.murator.pl/topic/243504-zmiany-w-projekcie-mieszkania-potrzebuj%C4%99-porady/#findComment-7615670 Udostępnij na innych stronach Więcej opcji udostępniania
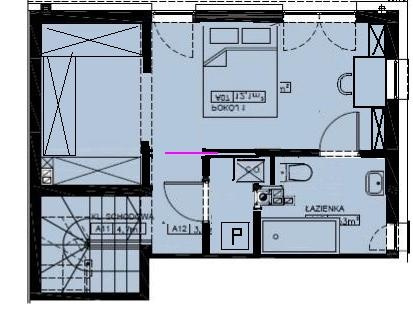
E-Rzecznik Śnieżka 31.12.2018 12:41 Zgłoś naruszenie Udostępnij Napisano 31 Grudnia 2018 A dół może tak? Cytuj Odnośnik do komentarza https://forum.murator.pl/topic/243504-zmiany-w-projekcie-mieszkania-potrzebuj%C4%99-porady/#findComment-7627572 Udostępnij na innych stronach Więcej opcji udostępniania
Recommended Posts
Dołącz do dyskusji
Możesz dodać zawartość już teraz a zarejestrować się później. Jeśli posiadasz już konto, zaloguj się aby dodać zawartość za jego pomocą.