Karamel 10.02.2019 17:21 Zgłoś naruszenie Udostępnij Napisano 10 Lutego 2019 Witam wszystkich, to mój pierwszy post.Nie znalazłem na forum tematu z tym projektem. Od jakiegoś czasu szukam dla siebie projektu domu jednorodzinnego, który zamierzam zacząć budować w tym roku. Jednym z takich, co do którego jestem przekonany w 90% to Mokka 6 z poniższego linkuhttps://www.extradom.pl/projekt-domu-mokka-6-WOF1100 Projekt ten spełnia moje zamierzenia, czyli ok 100m2, prosty i tani w budowie oraz min 3 pokoje. Oczywiście zdaje sobie sprawę, że te pokoje to takie klitki po 9m2 ale nie robi mi to różnicy. W pokoju się sypia, a od czynności dziennych to mam działkę - ponad 2 ha.Na pewno chciałbym aby architekt zmienił drzwi do spiżarki tak by nie zamykały się do wewnątrz i zastanawiam się jak rozwiązać sprawę z toaletą, która ma ledwo 5 m2. Czy da się to jakoś sensownie zamienić z pomieszczeniem gospodarczym w którym miałby stać piec na ekogroszek/pellet? Po głowiechodzi mi jeszcze myśl aby zainwestować w budowę kominka z systemem DGP. Prosiłbym o porady znawców tematu. Czy ten projekt ma rację bytu? Cytuj Odnośnik do komentarza https://forum.murator.pl/topic/245099-projekt-mokka-6-pracownia-archand/ Udostępnij na innych stronach Więcej opcji udostępniania
Elfir 10.02.2019 18:40 Zgłoś naruszenie Udostępnij Napisano 10 Lutego 2019 Tworzenie projektu małego domu z kotłownią na węgiel w dobie współczesnych wymagań energetycznych, świadczy o lekceważącym stosunku architekta do kieszeni inwestora.W dodatku kto umieszcza pomieszczenie gospodarcze od najbardziej reprezentacyjnej (w domyśle najlepiej nasłonecznionej) strony domu: od ogrodu? Kominek z GP w małym domu to też machanie motyką na słońce. Cytuj Odnośnik do komentarza https://forum.murator.pl/topic/245099-projekt-mokka-6-pracownia-archand/#findComment-7650851 Udostępnij na innych stronach Więcej opcji udostępniania
Karamel 10.02.2019 18:55 Autor Zgłoś naruszenie Udostępnij Napisano 10 Lutego 2019 Niekoniecznie na węgiel Działka nie ma możliwości przyłączenia gazu, więc jeśli odrzuciłbym piec na jakieś paliwo stałe to pozostaje mi elektryka a ta w kosztach utrzymania chyba najtańsza nie będzie - robiłem swego czasu obliczenia za pomocą tej strony http://cieplowlasciwie.pl/ Chyba, że użyjemy pompy gruntowej lub czegoś za podobne pieniądze - ok.40-50 tys. a niestety nie mogę wyłożyć tyle, dom będzie budowany gotówką, nie kredytem. Z pomieszczeniem gospodarczym to chyba pozostaje zamienić jakoś układ z łazienką. Cytuj Odnośnik do komentarza https://forum.murator.pl/topic/245099-projekt-mokka-6-pracownia-archand/#findComment-7650866 Udostępnij na innych stronach Więcej opcji udostępniania
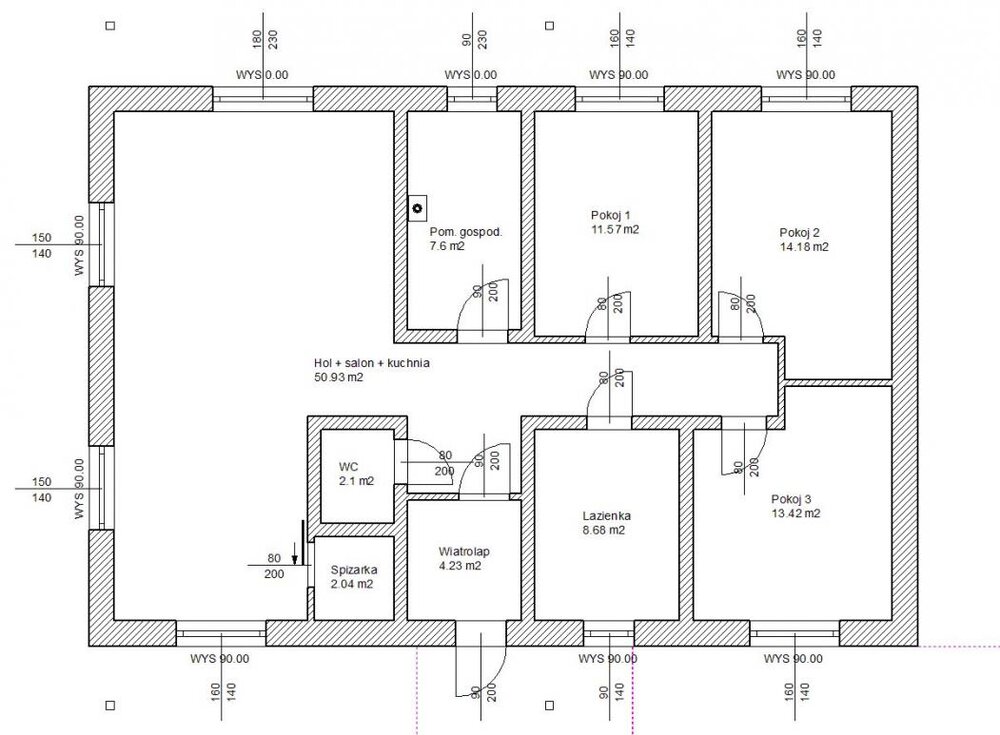
Elfir 10.02.2019 19:04 Zgłoś naruszenie Udostępnij Napisano 10 Lutego 2019 (edytowane) A pompa powietrzna? Po co gruntówki w takim małym domku? Elektryka jest tania w instalacji. Różnicę w kosztach instalacji ładujesz w bardzo dobre docieplenie domu, rekuperację i koszt ogrzewania jest jak przy gazie. Przy węglu musisz i tak czymś wodę do mycia grzać w sezonie letnim. Będziesz rozpalał kocioł gdy na zewnątrz panuje upał? Na dodatek jesteś uwiązany do domu całą zimę - na ferie nie pojedziesz. Do tego w okresach przejściowych większość ciepła wypuścisz kominem, bo przecież nie da się regulować na piecu temperatury na jakieś minimalne wartości. Policz koszty - kotłownia na węgiel może być tylko węglowa. Nic nie można tam przechować, bo brudno. A tak masz jedno zapasowe pomieszczenie do przechowywania. Do tego komin - przy PC lub elektryce nie potrzebujesz kominów. Plus dodatkowy - nie trujesz własnoręcznie własnych dzieci, fundując im powietrze ze smogiem. Zmiana kilku ścianek działowych: Oczywiście wywalasz też schody na podeście wejściowym. Edytowane 10 Lutego 2019 przez Elfir Cytuj Odnośnik do komentarza https://forum.murator.pl/topic/245099-projekt-mokka-6-pracownia-archand/#findComment-7650872 Udostępnij na innych stronach Więcej opcji udostępniania
Elfir 10.02.2019 19:23 Zgłoś naruszenie Udostępnij Napisano 10 Lutego 2019 albo: Cytuj Odnośnik do komentarza https://forum.murator.pl/topic/245099-projekt-mokka-6-pracownia-archand/#findComment-7650880 Udostępnij na innych stronach Więcej opcji udostępniania
Karamel 10.02.2019 19:40 Autor Zgłoś naruszenie Udostępnij Napisano 10 Lutego 2019 Ta druga wersja projektu wygląda ciekawie. Co do tej pompy ciepła, wiadome, że będzie czyściej, zyskam pomieszczenie na pralkę itd a do tego roboty przy tym prawie nic, ale nadal mam obawy, że popłynę z kosztami. Nie widzi mi się płacić za sam sezon grzewczy 2-3 tys zł. Cytuj Odnośnik do komentarza https://forum.murator.pl/topic/245099-projekt-mokka-6-pracownia-archand/#findComment-7650898 Udostępnij na innych stronach Więcej opcji udostępniania
Elfir 10.02.2019 19:57 Zgłoś naruszenie Udostępnij Napisano 10 Lutego 2019 Przy pompie ciepła za sezon pewnie zapłacisz max 1000 zł.Chyba, że mieszkasz wysoko w górach? Cytuj Odnośnik do komentarza https://forum.murator.pl/topic/245099-projekt-mokka-6-pracownia-archand/#findComment-7650913 Udostępnij na innych stronach Więcej opcji udostępniania
Karamel 10.02.2019 21:48 Autor Zgłoś naruszenie Udostępnij Napisano 10 Lutego 2019 Świętokrzyskie Cytuj Odnośnik do komentarza https://forum.murator.pl/topic/245099-projekt-mokka-6-pracownia-archand/#findComment-7651011 Udostępnij na innych stronach Więcej opcji udostępniania
Nurek_ 10.02.2019 22:02 Zgłoś naruszenie Udostępnij Napisano 10 Lutego 2019 W dodatku kto umieszcza pomieszczenie gospodarcze od najbardziej reprezentacyjnej (w domyśle najlepiej nasłonecznionej) strony domu: od ogrodu? Np. ja. Celowo - pomieszczenie gospodarcze będzie jednocześnie pralną i suszarnią i chciałem (a w zasadzie żona) móc wyjść z niego bezpośrednio na ogród. Nie widzi mi się płacić za sam sezon grzewczy 2-3 tys zł. Tona dobrego węgla kosztuje już pod 1000 zł, nawet w małym domu te 2 tony minimum przepalisz - inna sprawa że dużo z tego pójdzie w komin. Za tą kasę na pompie oblecisz cały sezon ogrzewania i CWU. Zresztą skoro korzystałeś z cieplowlasciwe to tam masz mniej-więcej porównanie. Na pewno chciałbym aby architekt zmienił drzwi do spiżarki tak by nie zamykały się do wewnątrz i zastanawiam się jak rozwiązać sprawę z toaletą, która ma ledwo 5 m2. W tym wypadku zamykanie drzwi jak w projekcie jest chyba najbardziej sensowne. Można zrobić takie: https://d-gr.ppstatic.pl/kadry/k/r/gr-ogl/36/34/225964_180632824_producent-drzwi-skladane-lamane-na-wymiar-montaz-gliwice-od-470-zl_xlarge.jpg Po co Ci więcej niż 5m2 w toalecie? Cytuj Odnośnik do komentarza https://forum.murator.pl/topic/245099-projekt-mokka-6-pracownia-archand/#findComment-7651025 Udostępnij na innych stronach Więcej opcji udostępniania
Elfir 10.02.2019 22:17 Zgłoś naruszenie Udostępnij Napisano 10 Lutego 2019 Nurek - na ogród można wyjść bocznymi drzwiami i z boku domu, w osłoniętym miejscu, zorganizować miejsce do suszenia prania, a nie przy tarasie i pod oknami salonu. Szkoda tracić doskonale nasłonecznioną elewację, z ładnym widokiem na ogród, na pomieszczenie używane sporadycznie. Cytuj Odnośnik do komentarza https://forum.murator.pl/topic/245099-projekt-mokka-6-pracownia-archand/#findComment-7651031 Udostępnij na innych stronach Więcej opcji udostępniania
Nurek_ 11.02.2019 08:15 Zgłoś naruszenie Udostępnij Napisano 11 Lutego 2019 Nurek - na ogród można wyjść bocznymi drzwiami i z boku domu, w osłoniętym miejscu, zorganizować miejsce do suszenia prania, a nie przy tarasie i pod oknami salonu. Szkoda tracić doskonale nasłonecznioną elewację, z ładnym widokiem na ogród, na pomieszczenie używane sporadycznie. Nie zawsze się da wszystko tak ustawić, żeby wyjście było bokiem - w naszym wypadku średnio by się to sprawdzało. Nie czuję, żebym coś tracił z tego powodu, co mam mieć nasłonecznione to mam. Z perspektywy czasu widzę też, że takie centralne położenie pomieszczenia gospodarczego bardzo dobrze sprawdza się jeśli chodzi różnego rodzaju instalacje - z reguły PG jest takim centrum dowodzenia gdzie zbiegają się instalacje wodna, elektryczna, sieci, alarmu, wentylacji, odkurzacza centralnego itp. I np.odkurzacz centralny to u mnie będzie dosłownie kilkanaście metrów rurek, wody tez niewiele więcej. Wentylacja też dała się super rozplanować. Da się to odczuć, szczególnie u samoroba. Po co Ci więcej niż 5m2 w toalecie? Załapałem, nie chodzi o toaletę, a łazienkę. Jako, że też się wzorowaliśmy na mocce, przerabiałem ten sam temat. Chcieliśmy mieć i wannę, prysznic i podwójną umywalkę w łazience a miejsca mało. Jednym ze sposobów jest zmniejszenie przedpokoju, robisz wnękę w łazience, w którą wciskasz prysznic, pralkę czy co tam potrzebujesz. W końcu jednak stanęło na czymś takim Cytuj Odnośnik do komentarza https://forum.murator.pl/topic/245099-projekt-mokka-6-pracownia-archand/#findComment-7651099 Udostępnij na innych stronach Więcej opcji udostępniania
Karamel 11.02.2019 08:23 Autor Zgłoś naruszenie Udostępnij Napisano 11 Lutego 2019 Nurek_, tu akurat widać, że wzorowane na Mokce Ja jednak z kolei planuje tylko prysznic i standardowo jedną umywalkę więc może i te 5m2 wystarczyłoby. W zasadzie to cały projekt Mokka 6 mi odpowiada, parę zmian tam dokonam, ale rozchodzi się tylko o to co tam zamontować jako ogrzewanie. Przejrzałem multum tematów i artykułów i każdy zachwala to co ma osobiście. Czasami ludzie polecają coś mimo tego, że sami wiedzą o swojej wtopie ale z uporem maniaka próbują dowieść słuszności swojej decyzji. Cytuj Odnośnik do komentarza https://forum.murator.pl/topic/245099-projekt-mokka-6-pracownia-archand/#findComment-7651103 Udostępnij na innych stronach Więcej opcji udostępniania
ig0r- 11.02.2019 09:32 Zgłoś naruszenie Udostępnij Napisano 11 Lutego 2019 Nurek_, tu akurat widać, że wzorowane na Mokce Ja jednak z kolei planuje tylko prysznic i standardowo jedną umywalkę więc może i te 5m2 wystarczyłoby. W zasadzie to cały projekt Mokka 6 mi odpowiada, parę zmian tam dokonam, ale rozchodzi się tylko o to co tam zamontować jako ogrzewanie. Przejrzałem multum tematów i artykułów i każdy zachwala to co ma osobiście. Czasami ludzie polecają coś mimo tego, że sami wiedzą o swojej wtopie ale z uporem maniaka próbują dowieść słuszności swojej decyzji. Tak jak pisali poprzednicy przy takiej wielkości domu nie ma najmniejszego sensu iść w węgiel czy pellet. Jeżeli ocieplisz dom wg. aktualnych standardów tj. 20 cm styro na ścianę, 20 w podłogę i z 30 na stropie, przy pompie ciepła nie wiem czy zapłaciłbyś 1500 zł za cały rok tj. grzanie i CWU. Jak dobrze docieplisz możesz iść w kable grzejne w wylewce i grzać prądem w taniej taryfie. Sam mam gaz w niewiele większym domu niż ty planujesz i cały rok wychodzi poniżej 2 tyś, a w pomieszczeniu gdzie znajduje się kocioł mam pralnie i składzik. Przy kotle na paliwo stałe, nie wykorzystasz tej przestrzeni na nic innego. Cytuj Odnośnik do komentarza https://forum.murator.pl/topic/245099-projekt-mokka-6-pracownia-archand/#findComment-7651133 Udostępnij na innych stronach Więcej opcji udostępniania
Nurek_ 11.02.2019 09:53 Zgłoś naruszenie Udostępnij Napisano 11 Lutego 2019 Powiem Ci jak ja podszedłem do sprawyNie mam gazu, średnio widzi mi się jakikolwiek piec, czy to ekogroszek, czy pellet. Zostaje prąd lub pompa ciepła - zdecydowałem się na to drugie w wersji powietrznej.Myślałem też o prądzie, ale jak sobie to przemyślałem - zaoszczędzone na instalacji 10 czy 15 tyś szybko by się rozeszło na budowie, a wyższe rachunki do końca życia - nie tędy droga. Kosztowo wcale nie wychodzi źle - za pompę z montażem i kotłownia zapłacę 28 tyś zł. Mógłbym mniej, (22 -24 tyś) ale wybrałem pompę dobrej firmy, jak zapewnia sprzedawca "z górnej półki". Co nie znaczy, ze te po 22 to było badziewie, tez przyzwoita pompa znanego producenta.30% tej kwoty dostanę zwrotu z programu czyste powietrze - czyli pompa z kotłownią wyniesie mnie jakieś 20 tyś. zł. Dobry piec na węgiel kosztuje ok 10 tyś zł. Kotłownia, zbiornik CWU, komin - kolejne 10. Więc wychodzi na to samo. Gratis mam pomieszczenie do wykorzystania na pralnię. Co do kosztów ogrzewania i CWU - wg. ciepłowlasciwe wychodzi mi 1000 zł rocznie. Nie bardzo mi się chce wierzyć, jak będzie 2x tyle będzie bosko, nawet jak wyjdzie 3000 będzie OK - to jest 300 zł miesięcznie za ogrzewanie i CWU, Teraz w bloku za mieszkanie 50 m2 płacę tyle i to bez CWU. Co prawda widziałem na forum takich, co twierdzili, że 600 czy 800 zł ich kosztował sezon grzewczy - ale to dla mnie jakieś ekstremum musi być, tania taryfa, w domu 19 stopni itp. Chociaż może się mile rozczaruję.Na początku miałem jeszcze obawy co do pracy pompy w niskich temperaturach. Ale nowe pompy pracują spokojnie do -20 stopni, nie przypominam sobie większych mrozów, nawet jeśli to przez te kilka godzin najwyżej załączą się grzałki i dogrzeje prądem. Ogólnie - czym byś nie grzał - zwróć uwagę na docieplenie domu. Rożnica między 15 zwykłego styropianu na ściany a 20 grafitowego 0,32 na mój dom to było jakieś 2-2,5 tys zł. Grosze w porównaniu do całości elewacji. Podobnie - za 20 cm EPS-a na podłodze dałem ok 5 tyś. Dałbym 10 -zaoszczędziłbym te 2.5 tyś - czy to tak dużo? Za przyzwoite trzyszybowe okna z U= ok. 0.8 dałem o 2 tyś. więcej niż wyceniali mi zwykłe, dwuszybowe. Tak więc jak widzisz, za stosunkowo niewielkie pieniądze można zbudować dom o bardzo przyzwoitych parametrach energetycznych i wtedy będzie zawsze tanio. I nie słuchaj w tym względzie "fachofców" którzy powiedzą "ło panie, a po co 20 cm styro? My zawsze dawali 10 i dobrze było, toć ściana musi łoddychać". Jeśli byś się decydował na pompę - zaplanuj to kompleksowo. Podłogówka 100% (niech do głowy Ci nie przychodzą jakieś grzejniki w sypialniach), dobre ocieplenie, rezygnacja z komina. Nie ma co kombinować na zasadzie "a może wrócę do węgla" bo nie wrócisz. Jak nie jesteś przekonany - poszukaj w okolicy kogoś z taką pompą i popytaj o doświadczenia. Firmy montażowe często dają namiary do klientów, czasem tez widzę przy domach jednostki zewnętrzne - można zapukać i popytać jak się sprawdza. Swoją droga jak zaczynałem myśleć o domu i pierwszy raz trafiłem na forum, to myślałem dokładnie tak jak Ty - ogrzewanie węglem, grzejniki bo tanio i podłogówka się nie sprawdza itp. A teraz buduję dom dokładnie odwrotnie niż na początku planowałem.... Cytuj Odnośnik do komentarza https://forum.murator.pl/topic/245099-projekt-mokka-6-pracownia-archand/#findComment-7651149 Udostępnij na innych stronach Więcej opcji udostępniania
Karamel 11.02.2019 12:13 Autor Zgłoś naruszenie Udostępnij Napisano 11 Lutego 2019 Tak to liczy strona cieplowlasciwehttp://cieplowlasciwie.pl/wynik/59pv Cytuj Odnośnik do komentarza https://forum.murator.pl/topic/245099-projekt-mokka-6-pracownia-archand/#findComment-7651215 Udostępnij na innych stronach Więcej opcji udostępniania
Nurek_ 11.02.2019 14:18 Zgłoś naruszenie Udostępnij Napisano 11 Lutego 2019 Dałeś do wyliczeń temperaturę w domu 19 stopni - nie za mało? Nie wiem czy dobrze wybrałeś poddasze - moim zdaniem masz poddasze nieogrzewane i tak powinieneś ten dom liczyć. Ale nawet - masz porównanie ile wychodzi ogrzewanie węglem a ile PC. Na twoim miejscu dorzuciłbym jeszcze 10 cm styropianu w podłogę i 5 na ścianę - jak pisałem nie są to znaczące koszty, a zrobi różnice - zwłaszcza podłoga, tam już nie będziesz miał możliwości dołożenia styro nigdy. Weź pod uwagę również, że jeśli chciałbyś skorzystać z dopłat czyste powietrze to dom musi spełniać WT2021 A czy węgiel czy pompa - to już musisz sam podjąć decyzję. Cytuj Odnośnik do komentarza https://forum.murator.pl/topic/245099-projekt-mokka-6-pracownia-archand/#findComment-7651278 Udostępnij na innych stronach Więcej opcji udostępniania
Elfir 11.02.2019 14:59 Zgłoś naruszenie Udostępnij Napisano 11 Lutego 2019 Podobny dom to Aros II Cytuj Odnośnik do komentarza https://forum.murator.pl/topic/245099-projekt-mokka-6-pracownia-archand/#findComment-7651294 Udostępnij na innych stronach Więcej opcji udostępniania
Recommended Posts
Dołącz do dyskusji
Możesz dodać zawartość już teraz a zarejestrować się później. Jeśli posiadasz już konto, zaloguj się aby dodać zawartość za jego pomocą.