Hontsi 03.05.2021 11:52 Zgłoś naruszenie Udostępnij Napisano 3 Maja 2021 Witam, zakupiłam mieszkanie w stanie deweloperskim i chciałabym przenieść pralkę do garderoby, niestety nie ma w niej podłączenia.. Czy jest możliwość pociągnięcia wody oraz odpływu z łazienki w podłodze? Cytuj Odnośnik do komentarza https://forum.murator.pl/topic/262286-przeniesienie-pralki/ Udostępnij na innych stronach Więcej opcji udostępniania
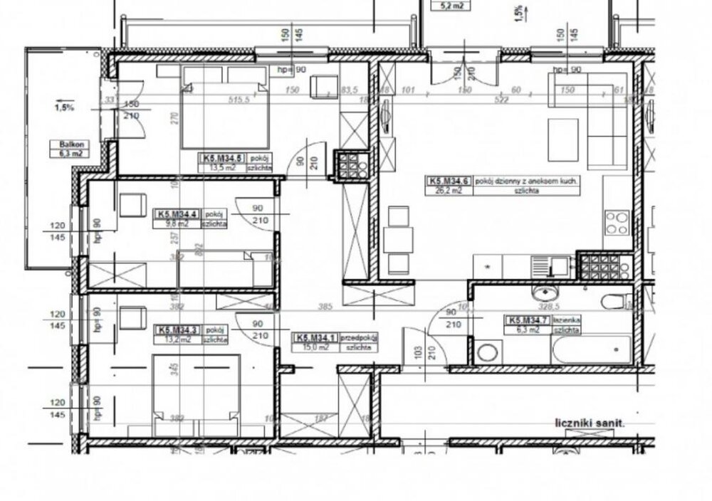
Hontsi 03.05.2021 11:55 Autor Zgłoś naruszenie Udostępnij Napisano 3 Maja 2021 Rzut mieszkania:PRT00000000000004160.jpg Cytuj Odnośnik do komentarza https://forum.murator.pl/topic/262286-przeniesienie-pralki/#findComment-7918144 Udostępnij na innych stronach Więcej opcji udostępniania
Elfir 03.05.2021 17:02 Zgłoś naruszenie Udostępnij Napisano 3 Maja 2021 błąd w linku Cytuj Odnośnik do komentarza https://forum.murator.pl/topic/262286-przeniesienie-pralki/#findComment-7918218 Udostępnij na innych stronach Więcej opcji udostępniania
ariater 03.05.2021 17:21 Zgłoś naruszenie Udostępnij Napisano 3 Maja 2021 link zaczyna sie od https, a potem jak zwykle, prawy klik mysza Cytuj Odnośnik do komentarza https://forum.murator.pl/topic/262286-przeniesienie-pralki/#findComment-7918225 Udostępnij na innych stronach Więcej opcji udostępniania
jajmar 03.05.2021 17:23 Zgłoś naruszenie Udostępnij Napisano 3 Maja 2021 link zaczyna sie od https, a potem jak zwykle, prawy klik mysza to może wklej to co sie otworzyło bo mi też wyskakuje błąd Cytuj Odnośnik do komentarza https://forum.murator.pl/topic/262286-przeniesienie-pralki/#findComment-7918227 Udostępnij na innych stronach Więcej opcji udostępniania
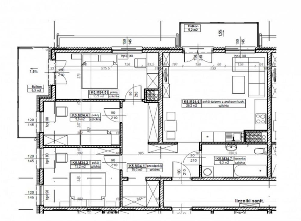
ariater 03.05.2021 17:24 Zgłoś naruszenie Udostępnij Napisano 3 Maja 2021 rzut Cytuj Odnośnik do komentarza https://forum.murator.pl/topic/262286-przeniesienie-pralki/#findComment-7918228 Udostępnij na innych stronach Więcej opcji udostępniania
CityMatic 03.05.2021 17:34 Zgłoś naruszenie Udostępnij Napisano 3 Maja 2021 Na przedpokoju jeszcze by dało radę w tej małej garderobie tak daleko oddalonej od pionów bym nie kombinował. Chociaż niektórzy projektanci tworzą "cuda"...może i się da? Cytuj Odnośnik do komentarza https://forum.murator.pl/topic/262286-przeniesienie-pralki/#findComment-7918233 Udostępnij na innych stronach Więcej opcji udostępniania
ariater 03.05.2021 17:39 Zgłoś naruszenie Udostępnij Napisano 3 Maja 2021 poprawilam rzut Cytuj Odnośnik do komentarza https://forum.murator.pl/topic/262286-przeniesienie-pralki/#findComment-7918236 Udostępnij na innych stronach Więcej opcji udostępniania
ariater 03.05.2021 18:02 Zgłoś naruszenie Udostępnij Napisano 3 Maja 2021 Wydaje mi sie, ze ta mala garderoba nie jest tak bardzo daleko, doplyw i odplyw juz sa, kwestia troche dluzszych rurek Cytuj Odnośnik do komentarza https://forum.murator.pl/topic/262286-przeniesienie-pralki/#findComment-7918247 Udostępnij na innych stronach Więcej opcji udostępniania
Elfir 03.05.2021 18:04 Zgłoś naruszenie Udostępnij Napisano 3 Maja 2021 bardzo daleko od pionu, wątpię czy da się uzyskać spadek kanalizacji w posadzce. Przy sypialni i korytarzyku chyba jest drugi pion, więc można pralkę schować w tej szafie w korytarzu. Na rysunku dwa warianty - z pralką wydzieloną poza obrys łazienki oraz na czerwono zaznaczona w korytarzu. Cytuj Odnośnik do komentarza https://forum.murator.pl/topic/262286-przeniesienie-pralki/#findComment-7918248 Udostępnij na innych stronach Więcej opcji udostępniania
Recommended Posts
Dołącz do dyskusji
Możesz dodać zawartość już teraz a zarejestrować się później. Jeśli posiadasz już konto, zaloguj się aby dodać zawartość za jego pomocą.