Miesięcznik Murator ONLINE

Skocz do zawartości

JAKI PROJEKT DOMU WYBRAĆ? - wątek dla zmagających się z wątpliwościami


Który projekt wybrać ?  

18 użytkowników zagłosowało

  1. 1. Który projekt wybrać ?

    • Agnieszka
      8
    • D88 Reprezentacyjny
      10


Recommended Posts

Dzięki Elfir. W większości projektów, kiedy ustawię dom na działce 1 z sypialni czasem nawet 2 mają okna na północy (patrząc od wejścia do domu znajdują się za garażem). Wiem, że działka ciut wąska, ale jeśli przyjdzie mi stawiać domek z poddaszem użytkowym kalenica wzdłuż drogi, to nie będzie mi nic łatwiej:( W moje okolicy na więcej mnie nie stać :( Dlatego szukałem tych projektów, które jak Z207 mają wszystkie wyjścia ogrodowe za dom (patrząc od frontu) i są nieco rozciągnięte wzdłuż (w głąb działki w moim przypadku) jak M106a
  • Odpowiedzi 12,5k
  • Utworzony
  • Ostatnia odpowiedź

Najaktywniejsi w wątku

Najaktywniejsi w wątku

Dodane zdjęcia

Przepraszam za dublet, ale jestem nowy na forum i wysłałem odpowiedź nim poprawiłem błędy (no i nie zorientowałem się, że to zrobiłem:)
Próbujemy coś kombinować z wjazdem od północy, ale raz, że nie podoba mi się dzielenie tak dużej powierzchni ściany garażowej z wnętrzem (chłodno, jeśli garaż będzie minimalnie ogrzewany), dwa nie podoba mi się ten długawy korytarz :)

[ATTACH=CONFIG]168657[/ATTACH]

 

Czy ty nie chciałeś kotłowni na paliwo stałe?

Po co ci okno w garażu? Lepiej jedna ściana ślepa i jak najbliżej granicy sąsiada.

Czy ty nie chciałeś kotłowni na paliwo stałe?

Po co ci okno w garażu? Lepiej jedna ściana ślepa i jak najbliżej granicy sąsiada.

 

Chciałem. A co jest nie tak z tą na prawo od wejścia? Z okna można niby zrezygnować, ale przy wejściu od północy nie ma to odejście od granicy aż takiego znaczenia (moim zdaniem). No i zawsze jest opcja z wejściem z boku i kombinowaniem z wjazdem po łuku, wtedy to ma sens, ale propozycje mają okna na obu ścianach. Oto one:

projekt3.JPGprojekt2.jpg

A może tak:

http://images40.fotosik.pl/1940/09aa36c96564a085gen.jpg

 

Dodałam jedynie parterową przybudówkę przy wejściu, żeby urozmaicić elewację frontową, ale mozna z niej zrezygnować.

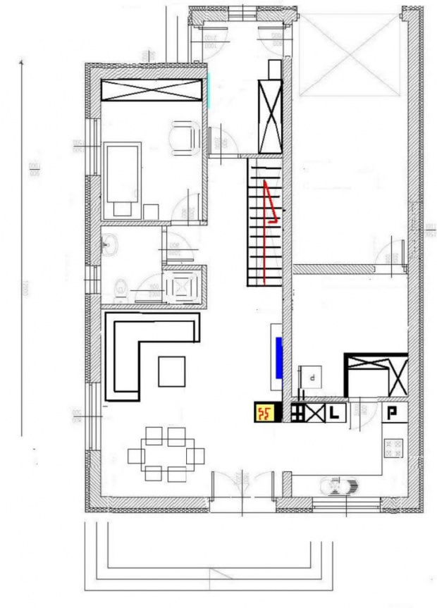
Dzięki przeniesieniu sypialni babcia nie musi biegać przez salon do łazienki. Łazienka jest blisko i wejście jest dyskretne. Wielkośc łazienki dostosowana jest do osoby w wózku. Otwarte schody jednobiegowe zajmują niej miejca a pod nimi można zrobić schowki.

 

W zasadzie można byłoby zrobić połączenie garażu z kuchnią poprzez spiżarkę - wysiadasz z samochodu i zakupy odnosisz do spiżarki.

 

Niech architekt pomysli jedynie nad zmniejszeniem piętra.

Kuchnię zamykamy w małym mieszkanku .

 

Takie planujemy zmiany:

 

z187.jpg

 

Kotłownia na paliwo stałe.

Edytowane przez Muftika
nie planujecie piekarnika w słupku?

 

Szczerze mówiąc nad rozplanowaniem sprzętów się jeszcze nie zastanawiałam, ale to dobry pomysł. Jednak nie chciałabym oddzielać kuchni od salonu w tym większym mieszkaniu.

A może tak:

 

Trafiłaś na parę upierdliwców i pewnie braknie Ci wkrótce cierpliwości, ale żona ma ma w głowie kuchnię przy wejściu. Mnie się układ dość podoba, tylko nie wiem czy kuchnia nie będzie zbyt mała :)

 

Niech architekt pomysli jedynie nad zmniejszeniem piętra.

 

W jaki sposób? Loggię wykluczyliśmy :)

Bazyl - w waszym projekcie i tak nie ma kuchni jakoś specjalnie blisko wejścia.

Co do wielkości kuchni - masz większa kotłownię niż oryginalnie, ale możesz ja pomniejszyć powiększając kuchnię. Dodatkowo wrysowałam spiżarkę

 

Zmniejszenie piętra - zrobienie domu parterowego z nadbudówką nad częscią domu. Jak u mnie - ta też nie mam piętra nad całym parterem.

Szczerze mówiąc nad rozplanowaniem sprzętów się jeszcze nie zastanawiałam, ale to dobry pomysł. Jednak nie chciałabym oddzielać kuchni od salonu w tym większym mieszkaniu.

 

 

Zanim zaczniesz stawiać ściany, umebluj wstępnie dom.

przy takiej różnicy poziomów najlepiej zrobić garaż w piwnicy (+ kotłownia).

 

Nie wolno ci nawieźć ziemi w taki sposób, że zakłócone zostaną warunki wodne na działkach sąsiednich.

Od końca. :) Wprawdzie z opisu wynika, że grunt dobry, ale projektant będzie wiedział, jaka jest głębokość przemarzania gruntu i od tego m.in uzależni zagłebienie w ziemię.

 

Co do spadzistości działki. Określ jaki jest mniej więcej spad w tej części działki, gdzie stanie dom - jaka jest różnica na tych 8-10 metrach. U mnie na przykład jest to 35 cm i nie robiliśmy nic celem wyrównania - po prostu z przodu jest troszkę wyżej, a z tyłu niżej.

 

Projekty mogę podsunąć, ale doprecyzuj wymagania. Czy garaż ma mieć połączenie z domem, czy tylko przylegać przez ścianę. Ilu będzie stałych mieszkańców (tylko ojciec?), dlaczego 100m2 - z czego wynika takie ustalenie? Mój dom ma 107m2 powierzchni użytkowej i ma 4 sypialnie. Czy ojciec potrzebuje tyle? Skoro będzie liczył każdą wydaną stówkę, to czy ekonomiczne będzie dla niego ogrzewanie i ogólnie utrzymanie (podatki, bieżące remonty, sprzątanie) domu tej wielkości?

Poszukujemy pomocy, niby już wybraliśmy projekt domu ale nie do konca jestem przekonany do Tulipia z garażem HB Studio, zależy nam na duzym salonie powyżej 30m2 i wejsciem od południa oraz małym pokojem na parterze może macie jakieś propozycje?
Niech architekt pomysli jedynie nad zmniejszeniem piętra.

 

Coś tam buczał przy schodach i ma jakiś inny plan. W Twojej propozycji nie ma niestety zewnętrznych drzwi do kotłowni, ale z tym nie ma problemu, bo przy wjeździe od płn. nie musi być to 3 m. Zobaczymy jego propozycję i nie omieszkam skonsultować :D

A ja cały czas myślę nad tym drugim wariantem (wjazd po łuku) i ze ślepą ścianą od wschodu. Ale co wezmę kartkę i narysuję prostokąt - utykam :(

W Twojej propozycji nie ma niestety zewnętrznych drzwi do kotłowni,

 

W twojej też nie.

W twojej też nie.

 

Jeśli coś mogłoby potwierdzić moje bycie kompletnym laikiem, niech będzie to fakt wzięcia okna za drzwi :(

PS. Elfir wiem, że to ma być mój dom, ale jak zakomponowałabyś dół, z tym co wiesz, na prostokącie 9x12 z wjazdami od wschodu?

Dołącz do dyskusji

Możesz dodać zawartość już teraz a zarejestrować się później. Jeśli posiadasz już konto, zaloguj się aby dodać zawartość za jego pomocą.

Gość
Odpowiedz w tym wątku

×   Wklejono zawartość z formatowaniem.   Usuń formatowanie

  Dozwolonych jest tylko 75 emoji.

×   Odnośnik został automatycznie osadzony.   Przywróć wyświetlanie jako odnośnik

×   Przywrócono poprzednią zawartość.   Wyczyść edytor

×   Nie możesz bezpośrednio wkleić grafiki. Dodaj lub załącz grafiki z adresu URL.




×
×
  • Dodaj nową pozycję...