Miesięcznik Murator ONLINE

Skocz do zawartości

JAKI PROJEKT DOMU WYBRAĆ? - wątek dla zmagających się z wątpliwościami


Który projekt wybrać ?  

18 użytkowników zagłosowało

  1. 1. Który projekt wybrać ?

    • Agnieszka
      8
    • D88 Reprezentacyjny
      10


Recommended Posts

Witam wszystkich w Nowym Roku.

Mam na oku 3 projekty domow, chcialbym poznac Wasze zdanie, ktory dom jest najtanszy w budowie, nie sugerujac sie kosztorysami bo wiadomo jak to jest z nimi. A wiec:

1.http://archon.pl/projekty-domow/projekt-dom-w-mekintoszach-m4f9aa578007db

 

2.http://archon.pl/projekty-domow/projekt-dom-w-zielistkach-g-m511a17f08861c

 

3.http://projekty.muratordom.pl/projekt_codzienny-wariant-ix,2977,0,0.htm

 

Prosze o Wasze opinie i wszystkiego naj... w 2016 r. zycze.

  • Odpowiedzi 12,5k
  • Utworzony
  • Ostatnia odpowiedź

Najaktywniejsi w wątku

Najaktywniejsi w wątku

Dodane zdjęcia

Darkat:

 

ten projekt ma wewnątrz pomniejszone rozmiary mebli. Spójrz na kanapę i szafki w kuchni. Albo szerokośc stołu.

 

W rzeczywistości tam jest o wiele mniej miejsca.

 

W dodatku schody zabiegowe....

 

 

Dom o pow. 100 m2 piętrowy. kompletnie bez sensu. Chyba, że lubisz dużo wydawać pieniędzy. Sama klatka schodowa i związana z nią komunikacja zajmie ci wówczas 1/5 pow. całego domu.

Edytowane przez Elfir

Być może tak jest ale patrzę głównie na powierzchnię poszczególnych pomieszczeń i nie jest źle jeśli idzie o kuchnię i salon. Bardziej mi chodziło o układ. Nawet w tym projekcie pisze "Projekt z kuchnią od strony ogrodu" . Mi tu bardziej chodzi o to, że będzie w moim przypadku od strony Północno wschodniej, oczywiście od strony ogrodu też ;)

Co do ogólnego metrażu, piętra i schodów. Dla mnie jeśli idzie o ilość pomieszczeń i ich wielkość jest w sam raz. Więc te schody w niczym mi nie przeszkadzają. Tylko, że w takim układzie jeśli zbuduję dom to będzie to raczej 120 m2 niż 100 m2.

 

Prosze o Wasze opinie i wszystkiego naj... w 2016 r. zycze.

 

Tutaj jest temat do opiniowania projektów.

 

1. Jeśli tylko masz takie możliwości działkowe - TYLKO PARTERÓWKA. Tylko powyżej pow. ok. 120 m2 nie będzie tańsza od domku z dachem dwuspadowym. Im większa powierzchnia tym parterówka wychodzi mniej korzystnie.

 

2. Żaden z powyższych projektów.

Mekintosze mają nieciekawy układ z tym garażem w okolicach sypialni

Zielistki - w sumie fajne, ale salon za mały (20 m2 - tyle co w bloku!)

Codzienny - problematyczny w urządzeniu

 

Tania parterówka na bazie projektu Aspen IV Lipińskich:

 

http://images75.fotosik.pl/200/a942983a0bd39eecgen.gif

 

Można za garażem dobudować kotłownie na paliwo stałe, jeśli się na nią upieracie i wówczas przestawić kominek.

 

Zwróć uwagę, że garaż jest oddzielony od domu ociepleniem. To bardzo ważny detal!

Edytowane przez Elfir
Być może tak jest ale patrzę głównie na powierzchnię poszczególnych pomieszczeń i nie jest źle jeśli idzie o kuchnię i salon. Bardziej mi chodziło o układ. Nawet w tym projekcie pisze "Projekt z kuchnią od strony ogrodu" . Mi tu bardziej chodzi o to, że będzie w moim przypadku od strony Północno wschodniej, oczywiście od strony ogrodu też ;)

Co do ogólnego metrażu, piętra i schodów. Dla mnie jeśli idzie o ilość pomieszczeń i ich wielkość jest w sam raz. Więc te schody w niczym mi nie przeszkadzają. Tylko, że w takim układzie jeśli zbuduję dom to będzie to raczej 120 m2 niż 100 m2.

 

Patrzysz na powierzchnię użytkową a nie całkowitą. Te dodatkowe metry różnicy za darmo się nie wybudują.

Małe domy tylko parterowe! Chyba, że działka bardzo mała jest

 

Układ może i jest fajny (sama mam kuchnię z tyłu domu a nie od frontu), ale jak zaczniesz wstawiać większe meble to okaże się, ze przy tej wielkości domu jest nieustawny. I trzeba będzie powiększać dom w projekcie. A to od razu rosną m2.

Tutaj jest temat do opiniowania projektów.

 

1. Jeśli tylko masz takie możliwości działkowe - TYLKO PARTERÓWKA. Tylko powyżej pow. ok. 120 m2 nie będzie tańsza od domku z dachem dwuspadowym. Im większa powierzchnia tym parterówka wychodzi mniej korzystnie.

 

2. Żaden z powyższych projektów.

Mekintosze mają nieciekawy układ z tym garażem w okolicach sypialni

Zielistki - w sumie fajne, ale salon za mały (20 m2 - tyle co w bloku!)

Codzienny - problematyczny w urządzeniu

 

Tania parterówka na bazie projektu Aspen IV Lipińskich:

 

http://images75.fotosik.pl/200/a942983a0bd39eecgen.gif

 

Można za garażem dobudować kotłownie na paliwo stałe, jeśli się na nią upieracie i wówczas przestawić kominek.

 

Zwróć uwagę, że garaż jest oddzielony od domu ociepleniem. To bardzo ważny detal!

 

A co jesli chodzi o koszt budowy tego mekintosza i codziennego ? Gdzie by bylo taniej? Dzialke mam szerokosci 22m na 60m dluga, wiec jesli by muala byc parterowka to musialaby stac szczytem (z garazem)do wjazdu na dzialke a na drugim szczycie chce salon, cos na podobe jak wyglada makintosz. Jesli chodzi o dom z poddaszem uzytkowym to na dzialke 22m duzo projektow pasuje. Wymogi domu to dach 2-spadowy, 4 sypialnie, kotlownia, garaz.

do tego metrażu to taniej wychodzi parterówka pod warunkiem, ze nie będzie was kusiło robienie poddasza użytkowego i okien narożnych.

Ale naprawdę lepiej poszukać innego projektu niż mekintosz.

 

Od jakiej strony świata masz wjazd?

do tego metrażu to taniej wychodzi parterówka pod warunkiem, ze nie będzie was kusiło robienie poddasza użytkowego i okien narożnych.

Ale naprawdę lepiej poszukać innego projektu niż mekintosz.

 

Od jakiej strony świata masz wjazd?

 

Od polnocy mam wjazd. Moze znasz jakis projekt?

ale mekitnosze są wieksze o zakładana przez ciebie powierzchnie.

 

Poza tym będzie cięzko znaleźć dom o pow. do 120 m2 z 4 sypialniami.

Spójrz na taki projekt:

http://www.studioatrium.pl/projekty-domow/S-GL-1072-Ibis-II,1086.html

 

ale konieczna dylatacja cieplna między garażem a domem - bo projektant oczywiście zapomniał.

I warto by przejrzał ten projekt konstruktor, by go uprościć. Ale to akurat bolączka niemal każdego gotowca.

W pokojach 5 i 7 dzieci - są doskonale doświetlone cały dzień. Wy w którymś z mniejszych pokoi bliżej garażu.

 

Na przykład można tak pozmieniać w adaptacji (to małe zmiany, nie wpływające na konstrukcję domu - układ okien, ściany działowe):

 

http://images76.fotosik.pl/201/7c0d906e1de79b92gen.png

 

Koniecznie bez schodów przy wejściu!

Edytowane przez Elfir

Ciekawy projekt, ale w sumie dwie sprawy

1. Nie potrzebuje garażu 2-stanowiskowego (po co pakować się w koszty). Można jedno stanowisko wyciąć?

2. Trochę niepokojące duże wg kosztorysu koszta budowy. Aczkolwiek ktoś z opiniujących ten projekt na stronie pisze ze SSZ wyniósł go 130tyś.

 

Znalazłem też taki projekt:

http://projekty.lipinscy-projekty.pl/Pyszny/

 

Porównując Pyszny i Ibis II jeśli chodzi o koszta budowy? Nie ukrywam, że to dla mnie dość ważne kryterium.

bez problemu można zmniejszyć garaż.

BTW. podczas adaptacji starałabym się usunąć garaż z bryły budynku i dostawić go do budynku w lekkiej konstrukcji i pod własnym dachem - sporo taniej.

 

SSZ jest z oknami i drzwiami - a tam jest suwanka, wyjścia tarasowe, okno narożne i podwójna brama garażowa. Dlatego pozmniejszałam okna i zamieniłam suwankę na normalnie otwierane.

 

 

Pyszny nie ma czwartego pokoju.

Jeśli nie zależy ci na dodatkowym pokoju, to atrium ma inne wąskie parterówki z trzema sypialniami i pojedynczym garażem.

 

Nie patrz sztywno na projekty. I tak gotowca musisz dać do adaptacji. O ile zmiany nie naruszają konstrukcji budynku, nie są drogie.

Edytowane przez Elfir
Troszke ciezko mi sobie wyobrazic garaz dostawiony z boku budynku, gdyz z jednej strony kuchnia i salon a z drugiej sypialnie. Jesli chodzi o projekt Pyszny to czy z ostatniego pokoju, garderoby i lazienki zrobic dwoch pokoi, a mala lazienke wstawic w miejsce pom. gosp.?
Troszke ciezko mi sobie wyobrazic garaz dostawiony z boku budynku, gdyz z jednej strony kuchnia i salon a z drugiej sypialnie. Jesli chodzi o projekt Pyszny to czy z ostatniego pokoju, garderoby i lazienki zrobic dwoch pokoi, a mala lazienke wstawic w miejsce pom. gosp.?

 

Ten dodatkowy pokój to dla dziecka czy gościnny?

 

Pyszny chyba będzie nieco droższy, ze względu na dach - jest też nieco większy:

http://images76.fotosik.pl/201/5a93651e0e3902a0.gif

Dziękuję bardzo za wstępną adaptację projektu :)

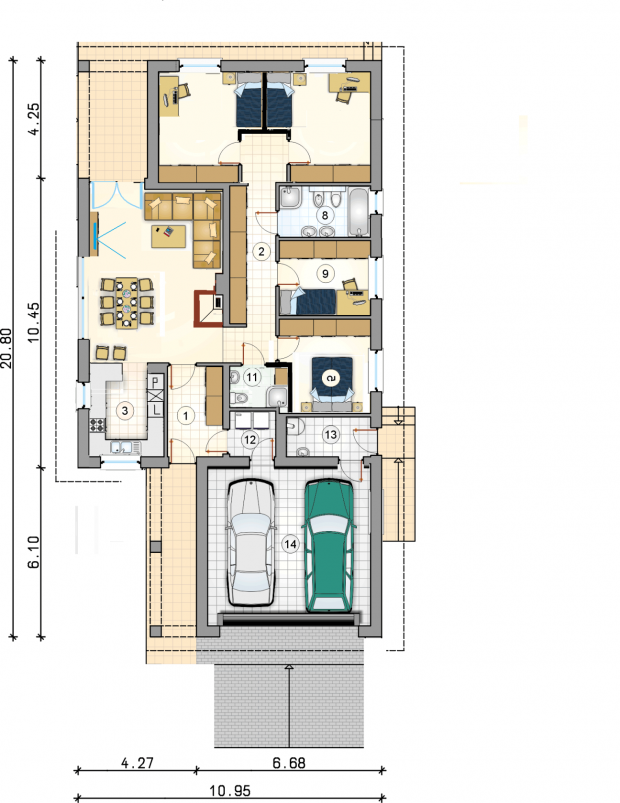
Ten czwarty pokój to miałby być gościny (rodzina 2+2). Ibis II jest fajny po tych zmianach, tylko że pierwotna wersja ma powierzchnie zabudowy 211,90 m2, a w warunkach zabudowy mam napisane "budynek mieszkalny murowany o powierzchni zabudowy do 190m2." Czy zmniejszenie garażu coś pomoże?

Ten zapis stawia też znak zapytania czy można by było postawić ten garaż z lekkim szkieletem drewnianym?

Jeśli chodzi o WZ to one są wydane na budowę budynku mieszkalnego z garażem w bryle budynku oraz budynku gospodarczego. Czy projekty, o których teraz mówimy (codzienny, Ibis II) mają garaż w bryle budynku czy to już się nazywa inaczej np "garaż dostawiony z boku/z przodu" ?

 

Była mowa wcześniej o projekcie Codzienny wersja IX - "problematyczny w urządzeniu". Co autor miał na myśli ?

Do pow. zabudowy wchodzą tarasy a ten dom niepotrzebnie miał je wrysowane ogromne.

Tarasy sobie dorobisz później, na gruncie (z kostki lub drewna) a nie wylewane z betonu. To ci zjedzie dobre 30 m2.

Moim zdaniem Pyszny ma większa powierzchnię zabudowy samym budynkiem niż Ibis

 

Z resztą, bierzesz kilka projektów (ze zmianami, które rysowaliśmy) do architekta adaptującego i dyskutujecie co obciąć lub zmienić, by wpasować się do MPZP.

 

Garaż jest w bryle budynku, nawet jak jest z innego materiału i wystaje z bryły.

Edytowane przez Elfir

Problemy Codziennego:

1. sypialnia na dole - nie wstawisz normalnej szafy

2. na poddaszu też problem z wstawieniem szaf, bo są skosy a pokoje nie sa duże - jeden z nich ma tylko 8 m2

3. Małe domy z poddaszem są droższe w budowie od prostych parterowych. Rożnica finansowa na korzyść poddasza pojawia się gdzieś w okolicy 120 m2

znalazłam jeszcze taki:

http://www.projektyzwizja.pl/projekty-domow/ekonomiczny-2a

 

Garaż doprojektowujesz z prawej strony z przejściem przez kotłownię (tam, gdzie kotłownia ma okno, zrobisz drzwi). Nad garażem osobny dach np. pulpitowy kryty papą (gontem bitumicznym).

 

Np. takie zmiany (przestawiłam kominek, by ograniczyć ilość kominów. trzeba też pozamieniać wyjścia balkonowe w pokojach i kuchni na zwykłe okna):

 

http://images78.fotosik.pl/202/ab7f90ba75521d3bgen.png

Edytowane przez Elfir

Dołącz do dyskusji

Możesz dodać zawartość już teraz a zarejestrować się później. Jeśli posiadasz już konto, zaloguj się aby dodać zawartość za jego pomocą.

Gość
Odpowiedz w tym wątku

×   Wklejono zawartość z formatowaniem.   Usuń formatowanie

  Dozwolonych jest tylko 75 emoji.

×   Odnośnik został automatycznie osadzony.   Przywróć wyświetlanie jako odnośnik

×   Przywrócono poprzednią zawartość.   Wyczyść edytor

×   Nie możesz bezpośrednio wkleić grafiki. Dodaj lub załącz grafiki z adresu URL.




×
×
  • Dodaj nową pozycję...