Miesięcznik Murator ONLINE

Skocz do zawartości

Recommended Posts

Witam,

czy mogłabym prosić o zerknięcie w projekt mojej kuchni? Czy idę w dobrą stronę?

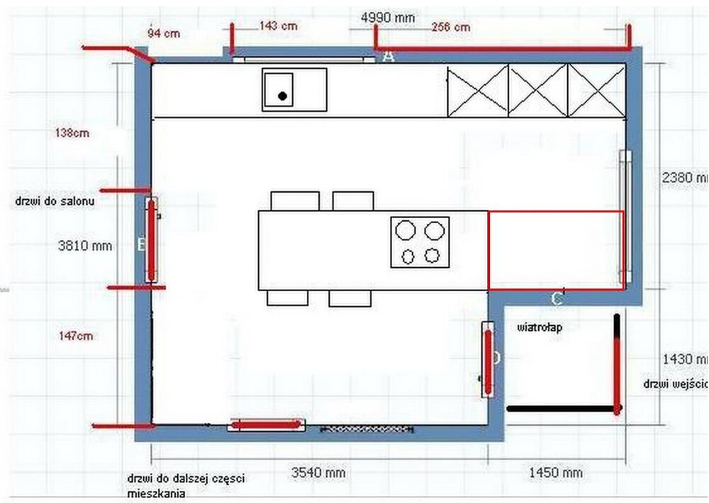
Układ pomieszczenia jest następujący:

http://images63.fotosik.pl/1101/1debddd6727c6add.jpg

 

zaplanowałam coś takiego:

http://images61.fotosik.pl/1101/a31c195eb8ed46fb.jpg

 

http://images65.fotosik.pl/1104/b6bbd455c30070cf.jpg

 

wyzwaniem jest dla mnie także ukrycie piecyka gazowego i doprowadzenie gazu do płyty grzewczej. Założyłam już osobny temat na forum, tutaj jednak wrzucę jeszcze mój wstępny schemat :

http://images65.fotosik.pl/1104/f9703c0524856f77.jpg

 

Meble marzą mi się białe - prawdopodobnie będzie to LAXARBY z ikea. Podłoga już wybrana (Kasztan Bakersfield), lampy - 3 zwisy nad częścią roboczą przy oknie (średnie HEKTAR z ikea), 1 zwis nad stołem i 2 punkty na ścianie naprzeciwko zlewu. Na ścianie za lodówką chciałbym jeszcze ustawić witrynę/kredens, jednak układ całości spędza mi sen z powiek. Przyjmę z chęcią wszelkie sugestie :)

 

Rura od gazu.Z tego co wiem to nie można jej zabudowywać na stałe na przykłąd płytami k-g. Za meblemi, które można odsunąć jak najbardziej.

 

http://images64.fotosik.pl/1108/00e7345479c29be8gen.jpg

Odnośnik do komentarza
https://forum.murator.pl/topic/127930-projekt-kuchni-wizualizacje/page/483/#findComment-6496816
Udostępnij na innych stronach

  • Odpowiedzi 12,2k
  • Utworzony
  • Ostatnia odpowiedź

Najaktywniejsi w wątku

Najaktywniejsi w wątku

Dodane zdjęcia

[1]

To chyba nie jest dobry pomysł. Praktycznie nie masz więcej blatu a masz zlew zaraz przy krawędzi. Ja bym miała zachlapaną całą podłogę przy drzwiach a to niebezpieczne.

[2]

Pierwszy układ dobry jak na ta przestrzeń i chyba dlatego nikt się nie odezwał. Dałabym tylko zwykły blat a nie rozkładany, na rozkładanym czułabym się chyba niepewnie. No chyba że sprawdzałeś i będzie za wąskie przejście ze stałym blatem do samego przejścia.

 

Podglądałem i przymierzałem się do blatów, jednak w tej drugiej opcji jest to 40% ekstra (80cm vs 110-115cm). Zlew mógłbym nieco przesunąć w kierunku narożnika. Z drugiej strony zmywarka w drugiej opcji jest kawałek dalej (a nie bezpośrednio przy zlewie) no i otwiera się na środek kuchni (w pierwszej opcji ta zmywarka 45cm pod ścianą to na mój gust lepsza opcja). Wizualnie ta opcja z nie-złamaną linią szafek (mniejszy blat) bardziej mi się podoba.

 

Jeśli chodzi o stolik, to ściśle mówiąc rozważam stałą część plus ewentualnie rozkładane poszerzenie (to przerywaną linią). Albo tylko stała część (szersza, np. do linii wnęki okiennej) Przejście do salonu 110cm jest OK.

 

No i nie wiem co z tymi półkami "na przestrzał", czy takie cuś (na widoku przy wejściu) nie przysłania tej niewielkiej przestrzeni (mimo że "na przestrzał").

 

Dziękuję Ci Doriko za głos w sprawie :)

 

PS.

Czy dla szafek górnych takie spore (60 x ca.90cm) skrzydła drzwi jak u @oliwkiwawa nie są w praktyce uciążliwe. Bo ładne są :)

Odnośnik do komentarza
https://forum.murator.pl/topic/127930-projekt-kuchni-wizualizacje/page/483/#findComment-6496827
Udostępnij na innych stronach

''półki "na przestrzał"" nie bardzo wiem co masz na myśli. A ogólnie jestem przeciwnikiem półek otwartych. Jak już coś chcesz wyeksponować to witrynka lepsza.

 

Chodzi mi o półki mocowane tylko na 2 krawędziach - tej od ściany i tej po lewej stronie (od zabudowy z piekarnikiem). Stojąc w wejściu przez ów "przestrzał" widać co nieco ten róg kuchni (w okolicy zlewu). Do ca. 90cm od podłogi oczywiście szafka zamknięta/pełna.

Odnośnik do komentarza
https://forum.murator.pl/topic/127930-projekt-kuchni-wizualizacje/page/483/#findComment-6496848
Udostępnij na innych stronach

Jeśli można jeszcze z własnym pytaniem, tym z wczoraj... Zrobiłem jeszcze jeden szkic, ze zlewem "zawiniętym" na krótszą ścianę, teraz blat między płytą a zlewem ma 110cm. Można liczyć na jakąś waszą opinię...?

 

Witaj Grzeniu666

 

Widać,że przemyślałeś swoją kuchnię. Pewnie czymś się sugerowałeś zaznaczając blat dodatkowy. Możesz pokazać jak widzisz rozwiązanie tego składanego blatu? Na jakiej wysokości jest w tym miejscu parapet?? Czy ten blat ma wyjeżdżać czy się łamać i być podnoszony tylko wtedy kiedy brakuje blatu roboczego? Stół zwykle jest niżej niż blat roboczy więc czy ten blat pod oknem jest niżej a narożnik z magic-cornerem jest zaślepiony płytą do której przystawiony jest ten blat niżej czy też blat na całym ciągu kuchennym włącznie z tym pod oknem jest na jednej wysokości a stołki to półhokery?

 

Ja też proszę o sprecyzowanie co znaczą półki na przestrzał

 

I jak myślisz podłączyć wyciąg? masz już zrobione wyjście? Na jakiej wysokości?

Odnośnik do komentarza
https://forum.murator.pl/topic/127930-projekt-kuchni-wizualizacje/page/483/#findComment-6496911
Udostępnij na innych stronach

Chodzi mi o półki mocowane tylko na 2 krawędziach - tej od ściany i tej po lewej stronie (od zabudowy z piekarnikiem). Stojąc w wejściu przez ów "przestrzał" widać co nieco ten róg kuchni (w okolicy zlewu). Do ca. 90cm od podłogi oczywiście szafka zamknięta/pełna.

 

Tak myślałam. Ale takie regały widziałam tylko w kuchniach klasycznych Bo te półki trzyma jeden pilaster 50x50. Możesz pokazać jakąś realizację w kuchni nowoczesnej? W sumie zaintrygowałeś mnie ;)

Odnośnik do komentarza
https://forum.murator.pl/topic/127930-projekt-kuchni-wizualizacje/page/483/#findComment-6496920
Udostępnij na innych stronach

Tak myślałam. Ale takie regały widziałam tylko w kuchniach klasycznych Bo te półki trzyma jeden pilaster 50x50. Możesz pokazać jakąś realizację w kuchni nowoczesnej? W sumie zaintrygowałeś mnie ;)

 

Już chyba wiem co to jest pilaster :) Nie planowałem tego prawego-dolnego (patrząc na rzut z góry, czerwona kropka) narożnika półek w żaden sposób mocować. Domyślam się że w ten sposób te półki muszą być mocne i dobrze zamocowane i/lub nie przesadnie obciążane.

Rozważam też skrócenie tych półek i/lub ścięcie tych "wolnych" narożników (rzut z góry, załącznik na szybko). Jednak lubię proste formy i tutaj mam obawy.

Nie mam niestety żadnych realizacji czy vizek takiego rozwiązania :(

 

Pewnie czymś się sugerowałeś zaznaczając blat dodatkowy. Możesz pokazać jak widzisz rozwiązanie tego składanego blatu? Na jakiej wysokości jest w tym miejscu parapet?? Czy ten blat ma wyjeżdżać czy się łamać i być podnoszony tylko wtedy kiedy brakuje blatu roboczego? Stół zwykle jest niżej niż blat roboczy więc czy ten blat pod oknem jest niżej a narożnik z magic-cornerem jest zaślepiony płytą do której przystawiony jest ten blat niżej czy też blat na całym ciągu kuchennym włącznie z tym pod oknem jest na jednej wysokości a stołki to półhokery?

 

I jak myślisz podłączyć wyciąg? masz już zrobione wyjście? Na jakiej wysokości?

 

Nie mam gotowego rozwiąznia rozkładanego blatu (jakieś tam mgliste pomysły), zakładam że ludzkość zna takie przypadki, znajdę/opracuję jeśli się zdecyduję. Przyjmuję że ta ew. dodatkowa część byłaby mocowana do ściany (zawias) i opuszczana (a więc widoczna w stanie "nieczynne"). O ile będę ten stół wogóle dzielił.

 

To pod oknem to stół, możliwie płytki, zakładam 50cm. Blaty będą dość wysokie ca. 95-100cm, natomiast stół niższy o jakieś 15-20cm. Będzie się "wcinał" w rząd z szafkami, ta przestrzeń (ca. 15cm) między stołem a blatem będzie raczej pusta (wiem, głęboka, cóż począć), bo szuflada nie bardzo (do otwierania na stole nie może przy niej nic stać) otwierana do góry też nie (bo tam będą leżakować np. czajnik, toster itp). Wysokości parapetu nie pamiętam, coś chyba w okolicy 90-95cm.

 

ALE! Właśnie sobie wrzuciłem poduszkę z fotela na biurowe krzesełko. 70cm. Nieźle! Półhoker (kolejne nowe słówko :rolleyes: ) to może być pomysł!

 

EDIT:

Regał o którym myslę wygląda jak to tylko bez szyb tak że widać półki

 

OK, ale jednak jest to "ciężkie" rozwiązanie, te "moje" półki mogą (mam nadzieję) nie zabierać dużo powietrza. Byłyby to jedyne otwarte półki, reszta (raczej) z drzwiami pełnymi.

 

EDIT2:

Rura okapu będzie do samego sufitu (podwieszanego, opuszczenie ca. 10-15cm) i tam pójdą kanały went. Ale jeszcze nie jestem pewien czy będzie działał jako wyciąg czy pochłaniacz.

 

Dzięki za rady i pomysły!

kuchnia-G6.jpg

Edytowane przez grzeniu666
Odnośnik do komentarza
https://forum.murator.pl/topic/127930-projekt-kuchni-wizualizacje/page/483/#findComment-6497007
Udostępnij na innych stronach

Rozumiem :) Coś się wymyśli. Daj wymiary ścian.

 

Mła? Wymiary wrzuciłem w projektach, 330x265cm (wys. 255cm po obniżeniu sufitu). Ale nie chciałbym Ci zanadto

zabierać czasu, najbardziej chodzi mi o praktyczne uwagi dot. powierzchni blatów, stołu, i układu sprzętów, ew. odczucia dot. moich pomysłów. Wizkę sobie może dopracuję (w planerze ikei, jak znajdę kompa na którym mogę trochę pośmiecić i go zainstalować), natomiast te półeczki coś czuję wykonam i przymierzę już w realu, i wyrzucę lub zostawię.

 

Na marginesie, gorąco wszystkim polecam wykonywanie pseudo-aranżacji (makiet) 1:1 z np. styropianów itp. budowlanych gratów, sporo w projektach dopracowałem dzięki temu.

 

Jak znam życie i tak tu wrócę już z projektem 3D ubranym w tekstury i będę męczył :)

Odnośnik do komentarza
https://forum.murator.pl/topic/127930-projekt-kuchni-wizualizacje/page/483/#findComment-6497093
Udostępnij na innych stronach

Mła? Wymiary wrzuciłem w projektach, 330x265cm (wys. 255cm po obniżeniu sufitu). Ale nie chciałbym Ci zanadto

zabierać czasu, najbardziej chodzi mi o praktyczne uwagi dot. powierzchni blatów, stołu, i układu sprzętów, ew. odczucia dot. moich pomysłów. Wizkę sobie może dopracuję (w planerze ikei, jak znajdę kompa na którym mogę trochę pośmiecić i go zainstalować), natomiast te półeczki coś czuję wykonam i przymierzę już w realu, i wyrzucę lub zostawię.

 

Na marginesie, gorąco wszystkim polecam wykonywanie pseudo-aranżacji (makiet) 1:1 z np. styropianów itp. budowlanych gratów, sporo w projektach dopracowałem dzięki temu.

 

Jak znam życie i tak tu wrócę już z projektem 3D ubranym w tekstury i będę męczył :)

 

Ja bardzo lubię projekty gdzie jest coś czego się mogę nauczyć a czego jeszcze nie robiłam. Uwielbiam patrzeć na meble pod kontem ich konstrukcji, długości dostępnych na rynku płyt, laminatów... I tutaj jest kwestia tego wysuwanego lub składanego blatu. Co do wymiarów to widziałam wymiary frontów, może w tekście podałeś wymiary, jeśli tak to sorry.

Widziałam w sumie 2 odcinki Bitwy o dom, muszę przeszukać sieć. W jednej kuchni był taki blat który można była dowolnie ustawiać. Rozwiązanie dla Ciebie :)

Odnośnik do komentarza
https://forum.murator.pl/topic/127930-projekt-kuchni-wizualizacje/page/483/#findComment-6497103
Udostępnij na innych stronach

Do projektu 4kropki niech ktos się wypowie gdzie powinien być zlew. Bo już sama nie wiem :/

 

http://images63.fotosik.pl/1106/44355bc2bc1f691agen.jpg

 

Czy ten układ nie wydaje ci się co najmniej dziwny,moim znaniem najgorszy z możliwych,kuchnia wielka z wszystko upchnięte na siłę.

Ja proponuję tak

http://images63.fotosik.pl/1107/2a7b6e28f65c68ce.jpg

4kropki,czy istnieje możliwość przesunięcia bądź poszerzenia drzwi do salonu lub zmiany położenia tych drugich........? Trochę mi się to dziwne wydaje że przechodzi się przez kuchnię do dalszych pomieszczeń.

Edytowane przez kinka
Odnośnik do komentarza
https://forum.murator.pl/topic/127930-projekt-kuchni-wizualizacje/page/483/#findComment-6497243
Udostępnij na innych stronach

@Baska_st, dzięki!

 

Co do kuchni @4kropki to układ z "półwyspem" @Baski też mi się nie widzi. Jak tak na szybko patrzę to chyba o tyle ciężki temat że to jest zaraz za wiatrołapem. Na co lepiej "wchodzić", jadalnię czy kuchnię?

 

Czy była rozważana płyta (zamiast kuchenki gazowej)?

 

O ile wiem (i zamierzam), to rury z gazem w pewnych warunkach można zakryć tynkiem (chyba muszą być stalowe? i może cośtamjeszcze?) lub zabudować (musi to być chyba zabudowa "otwieralna" i wentylowana?). Do wyguglania lub podpytania u gazowników.

 

Że tak wtrącę z biegu (sory jak powtarzam), może kierunek jak w załączniku?

4k1a.jpg

4k1b.jpg

Odnośnik do komentarza
https://forum.murator.pl/topic/127930-projekt-kuchni-wizualizacje/page/483/#findComment-6497260
Udostępnij na innych stronach

Nie mogę przełączyć na dokładnie takie uchwyty, bo robiąc projekt wzięłam inną bazę frontów (żeby znaleźć ładny front z frezem) i bez robienia nowego projektu nie pokażę, ale masz taki ramiak :)

 

http://images61.fotosik.pl/1106/e565280fae456524gen.jpg

 

Extra. O to mi właśnie chodziło, mniejsza o uchwyty. Jest super. Podoba mi się też ta roleta na lewym oknie i do tego zupełnie inna firana w drugim. Ładnie to wygląda. Pomyślę tylko czy górnych szafek nie podzielić na dwudrzwiowe, żeby było wygodniej otweirać.

BARDZO Ci dziękuję!

Odnośnik do komentarza
https://forum.murator.pl/topic/127930-projekt-kuchni-wizualizacje/page/483/#findComment-6497352
Udostępnij na innych stronach

...

Ja proponuję tak

http://images63.fotosik.pl/1107/2a7b6e28f65c68ce.jpg...

ooooo super układ ten drugi!

ale czemu bez szafek do końca?

taka dziura powstaje pod ścianą... ja bym dosunęła dalej: rzut4.JPG

Odnośnik do komentarza
https://forum.murator.pl/topic/127930-projekt-kuchni-wizualizacje/page/483/#findComment-6497440
Udostępnij na innych stronach

Trochę mi się to dziwne wydaje że przechodzi się przez kuchnię do dalszych pomieszczeń.

 

 

Bo czasami tak po prostu jest. Wysokość pomieszczenia i właśnie ta masa drzwi sugeruje stare budownictwo , kamienicę?? Nie każdy buduje sobie nowe gniazdko, niektórzy dostosowują sobie stare.

Odnośnik do komentarza
https://forum.murator.pl/topic/127930-projekt-kuchni-wizualizacje/page/483/#findComment-6497516
Udostępnij na innych stronach

Czy ten układ nie wydaje ci się co najmniej dziwny,moim znaniem najgorszy z możliwych,kuchnia wielka z wszystko upchnięte na siłę.

Ja proponuję tak

http://images63.fotosik.pl/1107/2a7b6e28f65c68ce.jpg

4kropki,czy istnieje możliwość przesunięcia bądź poszerzenia drzwi do salonu lub zmiany położenia tych drugich........? Trochę mi się to dziwne wydaje że przechodzi się przez kuchnię do dalszych pomieszczeń.

 

Super pomysł jak zwykle :)

lukasz69karolina dobrze gada, można pociągnąć szafki do końca. Tylko kwestia finansów bo w ten sposób super dużo szafek wejdzie.

I jeszcze jedno ale, nie znam się ale jak rozwiązać instalację gazową przy wyspie? Przy pierwszym to jeszcze jakoś widzę ale przy drugiej opcji to bardzo dużo trzeba by ciągnąć skoro teraz jest tam gdzie piecyk.

O przesunięcie drzwi też już pytałam ale właścicielka się nie odezwała jeszcze.

Edytowane przez Doriko
Odnośnik do komentarza
https://forum.murator.pl/topic/127930-projekt-kuchni-wizualizacje/page/483/#findComment-6497533
Udostępnij na innych stronach

Dołącz do dyskusji

Możesz dodać zawartość już teraz a zarejestrować się później. Jeśli posiadasz już konto, zaloguj się aby dodać zawartość za jego pomocą.

Gość
Odpowiedz w tym wątku

×   Wklejono zawartość z formatowaniem.   Usuń formatowanie

  Dozwolonych jest tylko 75 emoji.

×   Odnośnik został automatycznie osadzony.   Przywróć wyświetlanie jako odnośnik

×   Przywrócono poprzednią zawartość.   Wyczyść edytor

×   Nie możesz bezpośrednio wkleić grafiki. Dodaj lub załącz grafiki z adresu URL.




×
×
  • Dodaj nową pozycję...