adrian2002002 24.03.2013 14:38 Zgłoś naruszenie Udostępnij Napisano 24 Marca 2013 (edytowane) Moi rodzice wykończyli już cały dom oprócz jednego pomieszczenia. Jest to łazienka. Jestem w 3 klasie gimnazjum i planuję rozwijać się w kierunku właśnie architektowania wnętrz. Tutaj pokazuje Wam projekt, który wykonałem w programie net+ 2012. Co o nim sądzicie? Edytowane 24 Marca 2013 przez adrian2002002 Cytuj Odnośnik do komentarza https://forum.murator.pl/topic/201803-projektowanie-%C5%82azienki/page/236/#findComment-5853837 Udostępnij na innych stronach Więcej opcji udostępniania
Megiska 24.03.2013 15:30 Zgłoś naruszenie Udostępnij Napisano 24 Marca 2013 moniss dzięki Może teraz bedzie lepiej? http://img577.imageshack.us/img577/3429/azienkadolnawymiar.jpg Szerokość 1 ściany z oknem 288cm Szerokość 2 ściany 265cm Drzwi szerokość 90cm Drzwi od pieca 80cm, ale chyba można mniejsze łamane? Ścianka za zlewem 89cm Ściana 2 z planu ma 265, a po dodaniu wymiarów 2 x drzwi i ścianki ze zlewem wychodzi 259cm, ale chyba lepiej, że wychodzi więcej niż mniej Nie mogę znaleść na jakiej wysokości jest okno, ale i tak nie ma to większego znaczenia...najwyżej pogapię sie w gwiazdy Już mam, okno jest chyba na wysokości 90cm. W planie jest oznaczone jako h=90cm. Dziękuję!! Cytuj Odnośnik do komentarza https://forum.murator.pl/topic/201803-projektowanie-%C5%82azienki/page/236/#findComment-5853899 Udostępnij na innych stronach Więcej opcji udostępniania
grzeniu666 24.03.2013 18:32 Zgłoś naruszenie Udostępnij Napisano 24 Marca 2013 asiazett, moniss, dziękuję bardzo za uwagi! Faktycznie szafka/półki wysokie po przeciwnej stronie chyba słabo. Troszkę dłubnąłem wersję 1, załączam co powychodziło. Można pod blatem (pod umywalką) dać szuflady (w 2 rzędach po jakieś 15-20cm), a brudy wrzucać do jakiegoś kosza (niskiego, względnie lekkiego w formie, i może kolorze nie czuję jak rymuję) po przeciwnej stronie przy drzwiach. Szafka do samej podłogi robi się trochę ciężka, no chyba że kolorem tych szafek i ew. podłogi odciążyć...? Lustro - w tym układzie również można pociągnąć po całości, czy tak lepiej? Reasumując wymiary, wychodzi mi (od prawej): - 80 cm na wannę (z tą półką od ściany) - 80 cm na zabudowę wc, - 90 cm pod blat umywalki (ta część między wiszącą szafką a zabudową wc, umywalka centralnie na tej szerokości), - 65 cm na szafkę wiszącę i pralkę. Trzyma się to... (pardon my french)? Pozdrawiam Cytuj Odnośnik do komentarza https://forum.murator.pl/topic/201803-projektowanie-%C5%82azienki/page/236/#findComment-5854186 Udostępnij na innych stronach Więcej opcji udostępniania
asiazett 24.03.2013 21:45 Zgłoś naruszenie Udostępnij Napisano 24 Marca 2013 Moi rodzice wykończyli już cały dom oprócz jednego pomieszczenia. Jest to łazienka. Jestem w 3 klasie gimnazjum i planuję rozwijać się w kierunku właśnie architektowania wnętrz. Tutaj pokazuje Wam projekt, który wykonałem w programie net+ 2012. Co o nim sądzicie? [ATTACH=CONFIG]178834[/ATTACH] [ATTACH=CONFIG]178835[/ATTACH] [ATTACH=CONFIG]178836[/ATTACH] Witaj Adrian Nie jestem żadną specjalistką w tej dziedzinie, ale rzuciło mi się w oczy parę miejsc, nad którymi może warto by się pochylić... 1) pokombinowała bym, żeby ukryć w jakiejś zabudowie pralkę. Cała łazienka jest dość harmonijna, powiedziała bym nawet, że lekko "nowocześnie romantyczna" więc ta kanciasta pralka psuje krakobraz całe pomieszczenie nie wygląda na małe, więc można tam poszaleć 2) Lustro i mozaikę warto by było pociągnąć do jakiegoś wspólnego wymiaru z czymś. Lustro wystaje poza obręb szafki z umywalką, a jak dla mnie to te dwie linie mozna by połączyć, żeby były spójne. Mozaika też mam wrażenie, że urywa się w połowie 3) Czy rodzice są swiadomi decyzji o wannie wolnostojącej? Jest to bardzo ładny element, ale też wymaga innej obsługi, według mnie jest mniej praktyczna, bo się więcej wokół niej chlapie. Oczywiście nie oznacza to, że to zły pomysł, tylko trzeba rozważyć, czy się faktycznie takie coś chce mieć. Bo przecież ludzie to sobie instalują i pewnie są zadowoleni, ale przed podjęciem decyzji warto by było zdrążyć temat 4) Co kolejne wynika z wanny - ten róg za nią będzie trudno dostępny, np. do sprzątania, a jednocześnie podatny na chlapanie - też rzecz warta przemyślenia. Poza tym dość bliska okolica wanny pomalowana jedynie farbą też może być ryzykowna w kwestii utrzymania czystości 5) Nie widzę nigdzie prysznica - ma go nie być? 6) te fioletowe pasy to jak sądzę tapeta? - wzór też urwany w połowie ściany. To tyle tak na szybko wyhaczyłam. Mam nadzieję, że nie zniechęcam Cię tymi uwagami, a motywuję do dalszej pracy, bo ogólnie łazienka sprawia miłe wrażenie. Mam też nadzieję, że inni tez pomogą Ci ulepszać Twój projekt i 3mam kciuki za jego powodzenie. Fajny prezent dla rodziców taka inicjatywa Pozdrawiam i działaj chłopaku Cytuj Odnośnik do komentarza https://forum.murator.pl/topic/201803-projektowanie-%C5%82azienki/page/236/#findComment-5854642 Udostępnij na innych stronach Więcej opcji udostępniania
asiazett 24.03.2013 21:51 Zgłoś naruszenie Udostępnij Napisano 24 Marca 2013 grzeniu666 Zdecydowanie lustro na całej długości i "odelżona", wisząca półka pod umywalką. Kosz na pranie po przeciwnej może sobie spokojnie stać, tylko żeby jakiś był" fajny", a nie brzydki hihi - ale porada Kolory chyba zostawiła bym te ciemniejsze, bo o ile jaśniejsze może i świeższe, to już z drzwiami sie gryzą. Chyba, że drzwi będą inne? Cytuj Odnośnik do komentarza https://forum.murator.pl/topic/201803-projektowanie-%C5%82azienki/page/236/#findComment-5854658 Udostępnij na innych stronach Więcej opcji udostępniania
grzeniu666 24.03.2013 22:37 Zgłoś naruszenie Udostępnij Napisano 24 Marca 2013 Kosz na pranie po przeciwnej może sobie spokojnie stać, tylko żeby jakiś był" fajny", a nie brzydki hihi - ale porada Kolory chyba zostawiła bym te ciemniejsze, bo o ile jaśniejsze może i świeższe, to już z drzwiami sie gryzą. Chyba, że drzwi będą inne? Okej, kosz będzie fajny Jaką głębokość dla niego przyjąć, bo aby nie stał w świetle drzwi muszę właściwie wymurować tę działówkę. Im mniej tym lepiej ze względu na użytkowanie tego wejścia, szybkie spojrzenie do ynterneta i wychodzi mi że 35, max 40 cm powinno być wystarczające? To by było tak jak na tym moim załączonym rzucie. Otwór drzwiowy, drzwi, ich stronność jeszcze wirtualne. Docelowe ubieranie tego "projektu" w płytki kolory itp w drugim etapie, jeszcze przede mną, najpierw muszę wygospodarować weekend na tour po salooonach z płytkami etc. obejrzeć co oferuje rynek i dlaczego aż tyle Pozdrawiam, dzięki! Cytuj Odnośnik do komentarza https://forum.murator.pl/topic/201803-projektowanie-%C5%82azienki/page/236/#findComment-5854751 Udostępnij na innych stronach Więcej opcji udostępniania
asiazett 25.03.2013 06:52 Zgłoś naruszenie Udostępnij Napisano 25 Marca 2013 Jeden weekend to za zdecydowanie mało :/ Nadzieją dla Ciebie jest tylko fakt, że jedeś facetem... Cytuj Odnośnik do komentarza https://forum.murator.pl/topic/201803-projektowanie-%C5%82azienki/page/236/#findComment-5854899 Udostępnij na innych stronach Więcej opcji udostępniania
bpestka 25.03.2013 08:07 Zgłoś naruszenie Udostępnij Napisano 25 Marca 2013 (edytowane) A to moja nieudolna wizualizacja dolnej łazienki o wymiarach 290*150. W płytkach (szary gres ) maja być dwie ściany: na przeciwko wejścia i z oknem. Ściana z drzwiami pomalowana na biało. Ściana obok umywalki - biała cegła na niej grzejnik simple biały (już wisi). Obudowa stelaża WC pociągnięta do samej góry i przedłużona do ściany z cegłą. Nad tą częścią obniżony sufit. Obok wc kabina walk in. Umywalka umieszczona na szafce (ok90cm) z drewna (przepraszam za zapożyczenie z forum) troszkę z przesunięciem w prawo. nad nią lustro. Wpierw myślałam o lampach zwisających z obu stron lustra, ale wczoraj w gazecie zobaczyłam zdjęcie z lampami z boku i fajnie to wyglądało. Prysznic o wymiarach 100 *150. Tylko podpowiedzcie, jak zostawię ścianę tylko pomalowana to czy nie będzie na nią chlapało? Aby zlagodzić surowośc planuję zakup armatury roca: bol i meridian .Czy jest to dobry kierunek? Mam do Was jeszcze prośbę o poradę. w zwiazku z tym, że lazienka ma wymiary 290*150 nie wiem na ktory wc powinnam zdecydować się. Meridian ma 56 cm dlugości co z obudowa wyniesie ok 77 cm zaś compacto 48 cm (69 cm). Czyli zostanie mi wolnej przestrzeni w pierwszym przypadku ok 73 cm zaś w drugim ok 81 cm. Co wybrać większy wygodniejszy wc czy szersze przejście? A taki jest plan łazienki I wogóle czy to wszystko ma jakiś sens? dzięki a może tak: Edytowane 25 Marca 2013 przez bpestka Cytuj Odnośnik do komentarza https://forum.murator.pl/topic/201803-projektowanie-%C5%82azienki/page/236/#findComment-5854991 Udostępnij na innych stronach Więcej opcji udostępniania
moniss 25.03.2013 11:19 Zgłoś naruszenie Udostępnij Napisano 25 Marca 2013 (edytowane) Megiska, czy chodzi Ci o taki układ prysznic-wanna? Prysznic to tylko ścianka z luksferów o dł. 100cm, wejście oczywiście otwarte. Gdyby zamiast luxferów dać szkło, to byłoby więcej miejsca pod prysznicem (teraz poniżej 80cm) Wanna asymetryczna i o dł. 180cm, coby Twój małż się pomieścił Wc i bidet: - stelaże schowane w ścianie - muszle można dać krótsze (na wizu 61cm) i będzie wówczas więcej miejsca aby dojśc do schowka Umywalka z szafką wiszącą z szufladami o szer. 90 i gł. 40cm Edytowane 25 Marca 2013 przez moniss Cytuj Odnośnik do komentarza https://forum.murator.pl/topic/201803-projektowanie-%C5%82azienki/page/236/#findComment-5855343 Udostępnij na innych stronach Więcej opcji udostępniania
Sylwia_LBN 25.03.2013 15:55 Zgłoś naruszenie Udostępnij Napisano 25 Marca 2013 I dzięki za gratulacje Czyli, że ktoś w ogóle na ten mój dziennik zagląda hihi A myślałaś, że co? Że dla siebie tylko piszesz? Cytuj Odnośnik do komentarza https://forum.murator.pl/topic/201803-projektowanie-%C5%82azienki/page/236/#findComment-5855781 Udostępnij na innych stronach Więcej opcji udostępniania
Megiska 25.03.2013 16:45 Zgłoś naruszenie Udostępnij Napisano 25 Marca 2013 MONISS Dzięki wielkie Wstawię rysunek tego o co mi chodziło, ale zdolności plastycznych nie mam, więc wybacz myślałam, żeby ścianka ta dłuższa była przeźroczysta, żeby optycznie nie zmniejszać jej, a żebyjakaś ścianka, np z luksferów była między wanną a prysznicem... ale nie wiem czy się da. można by kibelek i bidet przesunąć ciut w stronę drzwi od kotłowni jeśli drzwi były by przesuwane i chowane za ścianką ze zlewem?? Wtedy ciut więcej miejsca nam zostaje... nie śmiejcie sie z rysunku, jest baaardzo poglądowy tylko http://img18.imageshack.us/img18/5584/skanowanie0001bx.jpg Cytuj Odnośnik do komentarza https://forum.murator.pl/topic/201803-projektowanie-%C5%82azienki/page/236/#findComment-5855843 Udostępnij na innych stronach Więcej opcji udostępniania
adrian2002002 25.03.2013 17:39 Zgłoś naruszenie Udostępnij Napisano 25 Marca 2013 asiazett bardzo dziękuję za opinię i pokazanie co jest źle. Oczywiście, że jest to dla mnie motywacja do dalszej pracy, ponieważ dopiero zaczynam przygodę z tą dziedziną. Nie byłem jeszcze na żadnych naukach ani nic, a jest to tylko mój pierwszy wytwór. Posiedzę nad tym jeszcze trochę i po poprawkach jeśli coś wyjdzie to wstawię zdjęcia. A co do samego wykonania to mam dużo więcej pomysłów na fajne projekty nie tylko łazienek, lecz ze względu na to, że robię to w programie net + 2012 to mam bardzo okrojone możliwości co odbiło się chociażby na tym, że pralka nie jest zabudowana. Jeśli chodzi o prysznic to tak, nie ma go tam być. Moja mama też wspominała o tym, że chciałaby mieć w tej łazience bio kominek. Może znalazłby się jakiś program w którym mógłbym popracować trochę bardziej "abstrakcyjnie" ? Cytuj Odnośnik do komentarza https://forum.murator.pl/topic/201803-projektowanie-%C5%82azienki/page/236/#findComment-5855927 Udostępnij na innych stronach Więcej opcji udostępniania
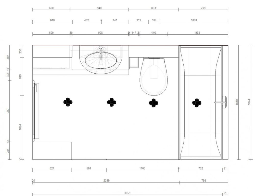
BubuEcierecie 25.03.2013 18:05 Zgłoś naruszenie Udostępnij Napisano 25 Marca 2013 (edytowane) Też będę bardzo wdzięczna za polecenie jakiegoś darmowego, ale bardziej profesjonalnego programu- Wasze wizualizacje są piękne, a to co ja "tworzę" nie przypomina Waszych wizualizacji nawet odrobinę Ogólny projekt łazienki już mam, natomiast chciałabym zobaczyć jak będą w niej wyglądały konkretne płytki, meble itp. Podłączenia już są. Marzy mi się szara łazienka, taka lekko betonowa, ale jasna z zielonymi dodatkami i ewentualnie zielonymi listwami szklanymi w roli dekorów. Takie płytki, mniej więcej (Signum Nowa Gala) http://www.cmb.com.pl/_uploads/thumb/uploadsBoksyzastepszy152152e-jpg_669_372_normal_1.jpg Listwa szklana, np. Vivida Zefir Paradyż http://www.lazienki24.pl/cache/images/e/9/5/e9515d61ef959d360b886987b4d1de88.jpg ogólnie coś takiego Myślałam też o drewnianych meblach i podłodze- płytki imitujące drewno. Pralka oczywiście w zabudowie- prawdopodobnie żaluzja drewniana. Może komuś udałoby się przenieść moje pomysły na projekt? Wrzucę rozmieszczenie sprzętów z wymiarami Edytowane 25 Marca 2013 przez BubuEcierecie Cytuj Odnośnik do komentarza https://forum.murator.pl/topic/201803-projektowanie-%C5%82azienki/page/236/#findComment-5855978 Udostępnij na innych stronach Więcej opcji udostępniania
moniss 25.03.2013 18:09 Zgłoś naruszenie Udostępnij Napisano 25 Marca 2013 (edytowane) Megiska, nie chodzi o to czy drzwi do schowka się otworzą czy nie, bo zawsze znajdzie się rozwiazanie na jakieś zamknięcie. Problemem jest po prstu ilość miejsca aby wejśc do tego pomieszczonka, no i aby móc cokolwiek tam wtaszczyć (jaki tam będzie piec z zasobnikiem?) Nie możesz zrobić kabiny o szer. 90cm, bo będzie trzeba wyrzucić bidet. Inne rozwiązanie: - wejście do pomieszczenia gospodarczego przez garderobę. Co do ścianek kabiny Na początku też zrobiłam ściankę przy wannie, lecz po przemyśleniu tego, doszłam do wniosku, że jest zbędna (chyba nikt nie będzie aż na takie odległości chlapać Dałam ściankę z luxferów przy wc, ponieważ: - po pierwsze chciałaś gdzieś je dać - po drugie, pisałaś, że niechcesz non stop czyścić szklanych drzwi kabiny (moje rozumowanie: szklane drzwi i wszelkie szklane przegrody wymagają utrzymania wzorowej czystości, czyli nie stosować szklanych ścianek w łazience) Wanna asymetryczna Myślałam o takiej, ale o 10cm dłuższej (i szerszej): Edytowane 25 Marca 2013 przez moniss Cytuj Odnośnik do komentarza https://forum.murator.pl/topic/201803-projektowanie-%C5%82azienki/page/236/#findComment-5855986 Udostępnij na innych stronach Więcej opcji udostępniania
moniss 25.03.2013 19:08 Zgłoś naruszenie Udostępnij Napisano 25 Marca 2013 Wrzucę rozmieszczenie sprzętów z wymiarami [ATTACH=CONFIG]179098[/ATTACH] Nie zgadzają mi się wymiary Twojej łazienki, bagatela o jakieś 100cm Ile ma ściana z wc (160)? Ile ma ściana z wanną (310)? A może to ścianka prostopadła do drzwi ma inny wymiar niż 50cm? Ścianka z drzwiami ma 90, czy tylko drzwi? Czy już nic sie nie da zrobić aby przenieść wc w inne miejsce? Gdzie dokładnie masz pion kanalizacyjny? P.S. Wybrane przez Ciebie płytki bardzo mi się podobają Cytuj Odnośnik do komentarza https://forum.murator.pl/topic/201803-projektowanie-%C5%82azienki/page/236/#findComment-5856110 Udostępnij na innych stronach Więcej opcji udostępniania
BubuEcierecie 25.03.2013 19:18 Zgłoś naruszenie Udostępnij Napisano 25 Marca 2013 moniss rzeczywiście ściana 310cm ma w rzeczywistości 210 już poprawiam ściana z wanną 160 z wc 210 z drzwiami 90 (drzwi 80cm) Pion kanalizacyjny jest właśnie tam gdzie wc Cytuj Odnośnik do komentarza https://forum.murator.pl/topic/201803-projektowanie-%C5%82azienki/page/236/#findComment-5856124 Udostępnij na innych stronach Więcej opcji udostępniania
Megiska 25.03.2013 20:00 Zgłoś naruszenie Udostępnij Napisano 25 Marca 2013 Moniss! Dzięki! Obawiam się tego chlapania właśnie Ale wanna jest obłędna !! Super!! Te kafle Signum Nowa Gala są cudne !! Cytuj Odnośnik do komentarza https://forum.murator.pl/topic/201803-projektowanie-%C5%82azienki/page/236/#findComment-5856213 Udostępnij na innych stronach Więcej opcji udostępniania
Megiska 25.03.2013 20:06 Zgłoś naruszenie Udostępnij Napisano 25 Marca 2013 Ścianka 1 może być, nie chciałam tylko drzwi bo teraz mam półokrągłą Cytuj Odnośnik do komentarza https://forum.murator.pl/topic/201803-projektowanie-%C5%82azienki/page/236/#findComment-5856228 Udostępnij na innych stronach Więcej opcji udostępniania
adrian2002002 25.03.2013 21:01 Zgłoś naruszenie Udostępnij Napisano 25 Marca 2013 Tutaj jest trochę poprawiona moja łazienka. Cytuj Odnośnik do komentarza https://forum.murator.pl/topic/201803-projektowanie-%C5%82azienki/page/236/#findComment-5856380 Udostępnij na innych stronach Więcej opcji udostępniania
asiazett 25.03.2013 21:32 Zgłoś naruszenie Udostępnij Napisano 25 Marca 2013 Tutaj jest trochę poprawiona moja łazienka. [ATTACH=CONFIG]179129[/ATTACH] [ATTACH=CONFIG]179130[/ATTACH] [ATTACH=CONFIG]179131[/ATTACH] No jak dla mnie już jest lepiej. Zrezygnowała bym z pasa mozaiki pod gazetownikiem. I być może z tego koło wanny. Lustro jeszcze trochę szersze, tak, żeby po bokach lustra zostały z jedynie 2 rzędy kosteczek z mozaiki. Albo jeszcze inaczej - żeby mozaika była ramą dla lustra, np. na 4 kosteczki z każdej strony, a nad lustrem nie ma sensu ciągnąć jej do sufitu - rozumiem, że to nawiązanie do tych pionowych pasów z mozaiki, ale mam wrażenie, że w tym miejscu to taki "kloc" się z tego dekoru robi... Podaj jeszcze wymiary łazienki, żeby zobaczyć, czy nie da się czegoś lepiej ustawić lub, czy w zaplanowanej wersji wszędzie jest wygodnie. Rozumiem, że wszystkie przyłącza już są w łazience i to w tych mmiejscach, gdzie wszystko poustawiałeś? No i nie ma miejsca na biokominek Taka zabdowa stelaży pod WC i bidet, jaką narysowałeś na projekcie oznacza, że cała ścianka, na której stoją wysunie się trochę do wnętrza łazenki (żeby zlicować wystające stelaże z resztą ściany)... Cytuj Odnośnik do komentarza https://forum.murator.pl/topic/201803-projektowanie-%C5%82azienki/page/236/#findComment-5856465 Udostępnij na innych stronach Więcej opcji udostępniania
Recommended Posts
Dołącz do dyskusji
Możesz dodać zawartość już teraz a zarejestrować się później. Jeśli posiadasz już konto, zaloguj się aby dodać zawartość za jego pomocą.