nk 04.01.2017 11:10 Zgłoś naruszenie Udostępnij Napisano 4 Stycznia 2017 Okna mają być fix, a właściwie to pakiety szybowe, więc przez nie nic nie wejdzie. Jestem zwolenników fiksów gdzie tylko się da. Sam w domu mam ich kilka, ALE.... przyjęliśmy zasadę, że w każdym pomieszczeniu MUSI być przynajmniej jedno otwierane skrzydło. To jest sprawa bezpieczeństwa i psychologicznego poczucia, że jest taka możliwość ucieczki z pomieszczenia. Przemyśl to i zapytaj przyszłych domowników i osoby, które mogą potencjalnie spędzić więcej czasu w tym domu (rodzice/dziadkowie?) czy widzą konieczność otwierania okien. Weź pod uwagę także ekstremalne sytuacje, których oczywiście Ci nie życzę, ale one mogą się zdarzyć... Fakt, są młotki do rozbijania fixów, ale czy każdy będzie czuł się spokojny, że w "chwili próby" będzie wiedział jak go użyć? Sorry za takie czarne wizje, ale wg mnie poczucie bezpieczeństwa we własnym domu to jedna z podstawowych spraw. Cytuj Odnośnik do komentarza https://forum.murator.pl/topic/224494-dom-z-pytaniami/page/4/#findComment-7259569 Udostępnij na innych stronach Więcej opcji udostępniania
nk 04.01.2017 11:11 Zgłoś naruszenie Udostępnij Napisano 4 Stycznia 2017 no faktycznie słabo to wygląda jak już się wejdzie w szczegóły A przy śniegu, nawet niewielkim 0 lumenów... Cytuj Odnośnik do komentarza https://forum.murator.pl/topic/224494-dom-z-pytaniami/page/4/#findComment-7259570 Udostępnij na innych stronach Więcej opcji udostępniania
Marek.M 04.01.2017 12:29 Autor Zgłoś naruszenie Udostępnij Napisano 4 Stycznia 2017 Pakiety mają niepodważalne dla mnie zalety, cenę i jakość (energooszczędność). A przy śniegu, nawet niewielkim 0 lumenów... No nie przesadzajmy, warstwa śniegu z 10 cm spokojnie przepuszcza światło. Wystarczy popatrzyć przez okna dachowe jak są zasypane. Jednak przepuszczają światło. Cytuj Odnośnik do komentarza https://forum.murator.pl/topic/224494-dom-z-pytaniami/page/4/#findComment-7259867 Udostępnij na innych stronach Więcej opcji udostępniania
nk 04.01.2017 13:01 Zgłoś naruszenie Udostępnij Napisano 4 Stycznia 2017 Pakiety mają niepodważalne dla mnie zalety, cenę i jakość (energooszczędność). No nie przesadzajmy, warstwa śniegu z 10 cm spokojnie przepuszcza światło. Wystarczy popatrzyć przez okna dachowe jak są zasypane. Jednak przepuszczają światło. Dla mnie te zalety też są ważne i jak pisałem, dlatego też wybrałem fixy. Ale równie ważne jest poczucie bezpieczeństwa, acz to indywidualna sprawa, dlatego piszę - porozmawiaj z przyszłymi domownikami. Nie będę dyskutował o oknach dachowych i śniegu, skoro przy Twoje 10 cm śniegu (może bardziej lodu?) przepuszcza tyle światła, że to jest dla Ciebie zadowalające... dla mnie to stanowczo za mało. Cytuj Odnośnik do komentarza https://forum.murator.pl/topic/224494-dom-z-pytaniami/page/4/#findComment-7259911 Udostępnij na innych stronach Więcej opcji udostępniania
Marek.M 04.01.2017 13:10 Autor Zgłoś naruszenie Udostępnij Napisano 4 Stycznia 2017 Nie będę dyskutował o oknach dachowych i śniegu, skoro przy Twoje 10 cm śniegu (może bardziej lodu?) przepuszcza tyle światła, że to jest dla Ciebie zadowalające... dla mnie to stanowczo za mało. Nie jest moim celem wykłócanie się o coś, po prostu napisałem, że jednak śnieg jakieś światło przepuszcza. Nie oceniałem ile tego światła jest, dementowałem tylko Twoje 0 lumenów, bo to jednak nieprawda. Tak czy siak już i tak ustaliłem, że takie świetliki są jednak ekonomicznie nieuzasadnione. Cytuj Odnośnik do komentarza https://forum.murator.pl/topic/224494-dom-z-pytaniami/page/4/#findComment-7259927 Udostępnij na innych stronach Więcej opcji udostępniania
nk 04.01.2017 13:27 Zgłoś naruszenie Udostępnij Napisano 4 Stycznia 2017 Nie jest moim celem wykłócanie się o coś, po prostu napisałem, że jednak śnieg jakieś światło przepuszcza. Nie oceniałem ile tego światła jest, dementowałem tylko Twoje 0 lumenów, bo to jednak nieprawda. Tak czy siak już i tak ustaliłem, że takie świetliki są jednak ekonomicznie nieuzasadnione. OK, masz racje to może nie być 0 lumenów, ale dla mnie zima to taki okres kiedy każdy kwant światła słonecznego, zwłaszcza jasnych promieni, jest bardzo cenna - znowu subiektywne odczucie. Tak czy inaczej masz teraz świetny czas na dopracowanie projektu. Nam te zajęło prawie rok. Każda dyskusja na ten temat jest wartościowa. Jeśli planujesz portfenetry, to najlepiej porozmawiaj z ludźmi, którzy je mają czy są zadowoleni, zwiedź parę takich domów, żeby się przekonać czy do Ci odpowiada. Ja mimo mody zawsze byłem im przeciwny, ale to będzie Twój dom, może Ty będziesz zadowolony. Teraz u nas po montażu drzwi wewnętrznych widzę błąd architektoniczny - mamy kilka otworów drzwiowych bez węgarków, zaraz przy poprzecznej ścianie. Radziłbym tego unikać a u Ciebie widzę coś takiego w jednej z sypialni. Myślę też, że warto zrobić większy wiatrołap, choć wyobrażam sobie,że będzie Ci szkoda miejsca, żeby je zabrać z innych pomieszczeń. Sam bardzo pilnowałem siebie i moją Lepszą Połowę, żeby nie powiększać założonej powierzchni domu. Projektowanie to kompromisy, a sztuką jest, żeby w ostatecznym projekcie było jak najwięcej tego, co faktycznie się sprawdzi i z czego będziecie zadowoleni. Powodzenia! Cytuj Odnośnik do komentarza https://forum.murator.pl/topic/224494-dom-z-pytaniami/page/4/#findComment-7259946 Udostępnij na innych stronach Więcej opcji udostępniania
Marek.M 05.01.2017 13:43 Autor Zgłoś naruszenie Udostępnij Napisano 5 Stycznia 2017 Jeśli planujesz portfenetry, to najlepiej porozmawiaj z ludźmi, którzy je mają czy są zadowoleni, zwiedź parę takich domów, żeby się przekonać czy do Ci odpowiada. Ja mimo mody zawsze byłem im przeciwny, ale to będzie Twój dom, może Ty będziesz zadowolony. Pisząc o portfenetrach co masz na myśli? Okna do podłogi czy co właściwie? Teraz u nas po montażu drzwi wewnętrznych widzę błąd architektoniczny - mamy kilka otworów drzwiowych bez węgarków, zaraz przy poprzecznej ścianie. Radziłbym tego unikać a u Ciebie widzę coś takiego w jednej z sypialni. Myślę też, że warto zrobić większy wiatrołap, choć wyobrażam sobie,że będzie Ci szkoda miejsca, żeby je zabrać z innych pomieszczeń. Sam bardzo pilnowałem siebie i moją Lepszą Połowę, żeby nie powiększać założonej powierzchni domu. Projektowanie to kompromisy, a sztuką jest, żeby w ostatecznym projekcie było jak najwięcej tego, co faktycznie się sprawdzi i z czego będziecie zadowoleni. Powodzenia! Pisząc o węgarkach chodzi Ci o miejsce na ewentualną opaskę? Wiem, że w sypialni na końcu po lewej może być ten problem, zdaję sobie z niego sprawę. Jedynym rozwiązaniem jest przesunięcie ścianki sypialni głównej do tyłu, żeby w tej drugiej wydłużyć ścianę z drzwiami. Cytuj Odnośnik do komentarza https://forum.murator.pl/topic/224494-dom-z-pytaniami/page/4/#findComment-7260870 Udostępnij na innych stronach Więcej opcji udostępniania
nk 05.01.2017 14:53 Zgłoś naruszenie Udostępnij Napisano 5 Stycznia 2017 Pisząc o portfenetrach co masz na myśli? Okna do podłogi czy co właściwie? Tak, pionowe okno do podłogi, bo wyobraziłem sobie, że takie właśnie planujesz okna w pokojach i że mają to być fixy. Tak, otwory drzwiowe najłatwiej wykończyć opaską, tzw. ościeżnicą regulowaną i wtedy potrzebny jest węgarek. Cytuj Odnośnik do komentarza https://forum.murator.pl/topic/224494-dom-z-pytaniami/page/4/#findComment-7260928 Udostępnij na innych stronach Więcej opcji udostępniania
Barth3z 16.01.2017 10:59 Zgłoś naruszenie Udostępnij Napisano 16 Stycznia 2017 Rurki w podłodze jak pisałem chciałbym kłaść ze względu na to, że mogę mieć dostęp do bardzo taniego drewna... ale... Pytanie Bartek ile wydałeś na te "rurki"? Bo czy będzie się to w ogóle opłacać, rurki + piec, jaki to może być koszt? Już nie pamiętam ile te rurki kosztowały, bo jeszcze jeden zwój 200metrów mi został. To są rurki fi18 BlueFloor firmy Kan http://pl.kan-therm.com/landing/sierpien/nowosc_w_ogrzewaniu_podlogowym.html Sam musisz policzyć i zdecydować. Ja jestem zagorzałym przeciwnikiem jakiegokolwiek paleniska w domu, nawet gazowego. Mam jeszcze do was pytanie o zbiornik do CWU+CO (jakbym te rurki zalał). Chciałbym do niego podłączyć albo tą PC albo piec na drewno, a oprócz tego poza sezonem własnej roboty solar. Dałoby się to zrobić jedną wężownicą? Moim zdaniem szkoda czasu i pieniędzy na taką zabawę. A dać się zapewne da - zawór 4-drożny. W domu chciałbym również zrobić zbiornik na deszczówkę, którą chciałbym użyć nie tylko do kibelków, ale również do mycia, prania. Można tak, czy jednak zbyt "brudna"? Zbyt brudna. @Iscra z tym korytarzem, to może i fakt, ale jak zamknę go drzwiami (i tak te drzwi byłyby za tą pierwszą łazienką) to dopiero będzie ciemny korytarz. Muszę te drzwi przemyśleć. Co do korytarza. To zgadzam się, że 100 cm to troszkę wąsko, Moim zdaniem też. Mam 120 i nawet 5cm bym nie zwężał. Pomyśl nad tym raz jeszcze. Cytuj Odnośnik do komentarza https://forum.murator.pl/topic/224494-dom-z-pytaniami/page/4/#findComment-7270887 Udostępnij na innych stronach Więcej opcji udostępniania
Barth3z 16.01.2017 11:13 Zgłoś naruszenie Udostępnij Napisano 16 Stycznia 2017 [ATTACH=CONFIG]377476[/ATTACH] Co do powyższego projektu, to mam zasadnicze pytanie, czy garaż musi być w tym miejscu ? Nie możesz go przestawić na północ ? Bo takie usytuowanie trochę zaburza wejście i układ domu. Tutaj masz inną pasywną parterówkę. Może z niej podpatrzysz inny układ funkcjonalny: http://www.dom-pasywny.com/projekty-pracowni/dom-pasywny-w-bielawie/ Cytuj Odnośnik do komentarza https://forum.murator.pl/topic/224494-dom-z-pytaniami/page/4/#findComment-7270897 Udostępnij na innych stronach Więcej opcji udostępniania
Marek.M 17.01.2017 09:03 Autor Zgłoś naruszenie Udostępnij Napisano 17 Stycznia 2017 Co do powyższego projektu, to mam zasadnicze pytanie, czy garaż musi być w tym miejscu ? Nie możesz go przestawić na północ ? Bo takie usytuowanie trochę zaburza wejście i układ domu. Nie upieram się, że garaż musi być w tym miejscu. Jednak jak dawałem go z tyłu, to ciężko było mi to sensownie wymyślić. Jak pokazałem w pierwszym poście, działka front ma na południe, a wjazd po prawej stronie, dlatego ten garaż dałem tak jak teraz jest. Co jeszcze ważne, taras chciałbym od północy, a na pewno nie od południa, bo byłby od frontu. Co za tym idzie wejście na taras byłoby przez kuchnie. Dając garaż z tyłu nie bardzo mam miejsce na taras i sensowne zrobienie wejścia na ten taras. Cytuj Odnośnik do komentarza https://forum.murator.pl/topic/224494-dom-z-pytaniami/page/4/#findComment-7271724 Udostępnij na innych stronach Więcej opcji udostępniania
Barth3z 17.01.2017 09:44 Zgłoś naruszenie Udostępnij Napisano 17 Stycznia 2017 Nie upieram się, że garaż musi być w tym miejscu. Jednak jak dawałem go z tyłu, to ciężko było mi to sensownie wymyślić. Jak pokazałem w pierwszym poście, działka front ma na południe, a wjazd po prawej stronie, dlatego ten garaż dałem tak jak teraz jest. Co jeszcze ważne, taras chciałbym od północy, a na pewno nie od południa, bo byłby od frontu. Co za tym idzie wejście na taras byłoby przez kuchnie. Dając garaż z tyłu nie bardzo mam miejsce na taras i sensowne zrobienie wejścia na ten taras. To może odbicie lustrzane? Wyjdzie coś takiego: W takim układzie możesz zrobić wiatrołap jak u mnie - pomiędzy garażem a budynkiem domu. Dodatkowo przedłużając garaż możesz na jego tyłach zrobić pomieszczenie na narzędzia ogrodnicze. Taki układ pozwoli Ci też lepiej zaaranżować przestrzeń salonu (wiatrołap nie zabierze pow. użytk.), a wejście zrobić po środku budynku rozdzielając strefe prywatną od salonowej. Cytuj Odnośnik do komentarza https://forum.murator.pl/topic/224494-dom-z-pytaniami/page/4/#findComment-7271768 Udostępnij na innych stronach Więcej opcji udostępniania
Marek.M 17.01.2017 10:04 Autor Zgłoś naruszenie Udostępnij Napisano 17 Stycznia 2017 To może odbicie lustrzane? Wyjdzie coś takiego: [ATTACH=CONFIG]378762[/ATTACH] W takim układzie możesz zrobić wiatrołap jak u mnie - pomiędzy garażem a budynkiem domu. Dodatkowo przedłużając garaż możesz na jego tyłach zrobić pomieszczenie na narzędzia ogrodnicze. Taki układ pozwoli Ci też lepiej zaaranżować przestrzeń salonu (wiatrołap nie zabierze pow. użytk.), a wejście zrobić po środku budynku rozdzielając strefe prywatną od salonowej. No ale w którym miejscu to wejście miało by być? Po za tym spiżarnia byłaby daleko od wejścia. Tak jak już pisałem, próbowałem ten garaż dać z tyłu i nic sensownego nie umiałem wymyślić, ale jeszcze się zastanowię, a nóż. Cytuj Odnośnik do komentarza https://forum.murator.pl/topic/224494-dom-z-pytaniami/page/4/#findComment-7271792 Udostępnij na innych stronach Więcej opcji udostępniania
Barth3z 17.01.2017 10:21 Zgłoś naruszenie Udostępnij Napisano 17 Stycznia 2017 No ale w którym miejscu to wejście miało by być? Po za tym spiżarnia byłaby daleko od wejścia. Tak jak już pisałem, próbowałem ten garaż dać z tyłu i nic sensownego nie umiałem wymyślić, ale jeszcze się zastanowię, a nóż. Wejście zrobiłbym pomiedzy łazienką a pom. gosp. a kuchnie zamienił miejscami ze spiżarką. Spiżarkę zrobiłbym wówczas jako wnęka. Zyskałbyś trochę pow. użytk. a nie straciłbyś miejsca na półki. Ja mam połaczone pom. techn. ze spiżarką. Cytuj Odnośnik do komentarza https://forum.murator.pl/topic/224494-dom-z-pytaniami/page/4/#findComment-7271814 Udostępnij na innych stronach Więcej opcji udostępniania
Marek.M 17.01.2017 12:20 Autor Zgłoś naruszenie Udostępnij Napisano 17 Stycznia 2017 Wejście zrobiłbym pomiedzy łazienką a pom. gosp. a kuchnie zamienił miejscami ze spiżarką. Spiżarkę zrobiłbym wówczas jako wnęka. Zyskałbyś trochę pow. użytk. a nie straciłbyś miejsca na półki. Ja mam połaczone pom. techn. ze spiżarką. Tylko, że ja front działki mam do góry, patrząc na projekt jak teraz jest, a Ty chcesz żebym drzwi wejściowe zrobił o tyłu... Cytuj Odnośnik do komentarza https://forum.murator.pl/topic/224494-dom-z-pytaniami/page/4/#findComment-7271956 Udostępnij na innych stronach Więcej opcji udostępniania
Barth3z 18.01.2017 18:19 Zgłoś naruszenie Udostępnij Napisano 18 Stycznia 2017 Tylko, że ja front działki mam do góry, patrząc na projekt jak teraz jest, a Ty chcesz żebym drzwi wejściowe zrobił o tyłu... A co za różnica ? Musi być od frontu ? Tu jest jeszcze fajna opcja - sypialnia i prywatna łazienka z drugiej strony salonu: http://images.adsttc.com/media/images/52cf/3cf0/e8e4/4e30/c800/00c2/large_jpg/Floor_Plan_copia.jpg Taki układ powoduje, że skracasz korytarz i zyskujesz m2 na rzecz salonu. Cytuj Odnośnik do komentarza https://forum.murator.pl/topic/224494-dom-z-pytaniami/page/4/#findComment-7273523 Udostępnij na innych stronach Więcej opcji udostępniania
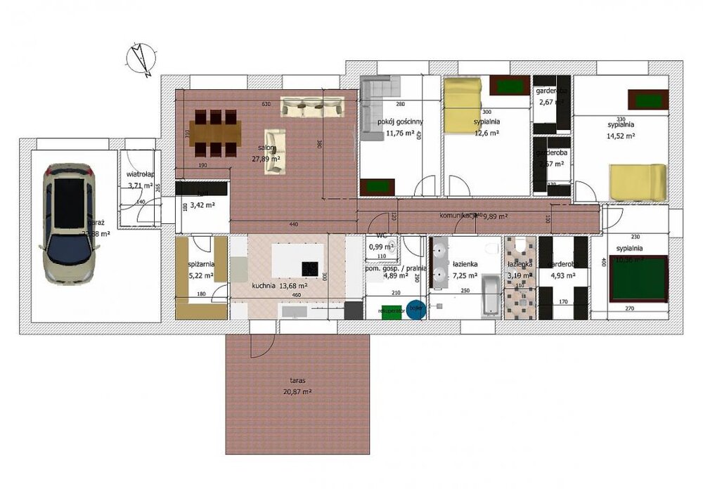
Marek.M 20.01.2017 13:30 Autor Zgłoś naruszenie Udostępnij Napisano 20 Stycznia 2017 A co za różnica ? Musi być od frontu ? Tu jest jeszcze fajna opcja - sypialnia i prywatna łazienka z drugiej strony salonu: Taki układ powoduje, że skracasz korytarz i zyskujesz m2 na rzecz salonu. Taki układ już kiedyś (w lipcu) próbowałem: nie umiałem go wtedy do końca dopracować... teraz zgodnie z Twoimi zaleceniami, urodziło mi się coś takiego: Jednakże ten projekt ma pewne minusy: - spiżarnia daleko od wejścia - garaż zasłania taras od strony wschodniej (brak porannej kawki na tarasie dla żony) - brakuje mi trochę miejsca na telewizor w salonie, wolałbym żeby nie był oświetlany przez zachodzące słońce - łazienki nie są już razem, aczkolwiek wszystkie po jednej stronie budynku - nie bardzo wiem gdzie dać tą ubikację, póki co ją tu "położyłem" Cytuj Odnośnik do komentarza https://forum.murator.pl/topic/224494-dom-z-pytaniami/page/4/#findComment-7275399 Udostępnij na innych stronach Więcej opcji udostępniania
Barth3z 20.01.2017 13:50 Zgłoś naruszenie Udostępnij Napisano 20 Stycznia 2017 To może coś takiego?: Spiżarkę możesz przenieść do pom. gosp. Kibelek masz przy wejściu, z dala od salonu. Dodatkowo możesz podzielić go na pół i w dalszej częsci zrobić prysznic. A z tym tarasem rzeczywiście nie da się zrobić od strony południowej ? Nie mógłbyś się odciąć wysokim i gęstym żywopłotem ? Cytuj Odnośnik do komentarza https://forum.murator.pl/topic/224494-dom-z-pytaniami/page/4/#findComment-7275415 Udostępnij na innych stronach Więcej opcji udostępniania
kamilb1987b 25.03.2017 22:21 Zgłoś naruszenie Udostępnij Napisano 25 Marca 2017 Jak już się zbliżałem do końca czytania wątku to też pomyślałem o tym co napisał barth. Pierwsza rzecz to hasło "dom pasywny". Piszesz że taki chcesz ale w nim zarazem dałbyś wiele różnych możliwości co do ogrzewania. Żeby było sensownie ekonomicznie to jedynie ogrzewanie bezpośrednie elektryczne plus klima w salonie i to wystarczy. Bez sensu jest kombinować z innymi pierdołami bo po co? Liczą się proste rozwiązania które sam zrobisz. Najłatwiej jest powiesić promiennik podczerwieni na ścianie czy suficie i już masz ogrzewanie. Nie musisz się kichać z rurkami w wylewce czy kablami. U Ciebie przy ociepleniu od środka to może być z tym różnie ale taki jeden panel nie wazy nie wiadomo ile. Według mnie to jest najprostsze i najtańsze rozwiązanie. Jak się panel zepsuje to bez problemu się go wymieni na nowy. Na allegro koszt jednego podają ok.600-700zł plus sterownik. Może i kable wyszłyby podobnie cenowo ale za to więcej roboty. Przy okazji też łatwo sterować ogrzewaniem i dogrzewać tylko wtedy gdy chcesz. Do cwu ja bym wziął PC, na allegro koszt 5-6k. Na pewno fajnie mieć punkty poboru cieplej wody blisko siebie by za długo nie czekać na ciepłą wodę. Taras lepiej zrobić sobie od południa, można domek dać głębiej w działce i jakoś odgrodzić się tujami czy coś takiego. Wtedy w kuchni dasz sobie okno/pakiet 250x55cm(szer.x wys.) lub węższy. Dzięki temu od północy będziesz miał tylko to okno. Pakiet do 3,5m2 powierzchni będzie z szybą o gr.4mm a większe już musi iść grubsza szyba więc wyższa cena. Lepiej tak dobrać pakiety by w tych 3,5m2 się mieściły. Sypialnia według mnie trochę bezsensu, ale jak Tobie się podoba to nie ma problemu. W końcu nie ja będę mieszkał. Od południa podobnie jak barth musisz mieć okap min.1,2-1,5m aby skutecznie zatrzymać słońce w okresach cieplejszych by nie przegrzewało Ci pomieszczeń. Jak możesz to zamieść rzut na działce jakby Ci to wyglądało z drogą dojazdową do garażu i drzwi wejsciowych oraz w którym dokładnie miejscu jest gminna droga. Cytuj Odnośnik do komentarza https://forum.murator.pl/topic/224494-dom-z-pytaniami/page/4/#findComment-7322753 Udostępnij na innych stronach Więcej opcji udostępniania
Elfir 26.03.2017 10:40 Zgłoś naruszenie Udostępnij Napisano 26 Marca 2017 Moim zdaniem jeśli to ma być pasywniak to od pracowni specjalizującej się w takich projektach. Druga rzecz - wejście do domu nie musi być od frontu działki. Może być z boku. Po trzecie - ograniczaj koszty a nie je mnóż. im prostszy system grzewczy, tym mniejsze koszty budowy i mniejsza powierzchnia pom. gospodarczych. Czwarta kwestia - dom nie musi być prostopadłościanem. Załamania murów, kąty pozwalają lepiej wykorzystać światło dzienne. Cytuj Odnośnik do komentarza https://forum.murator.pl/topic/224494-dom-z-pytaniami/page/4/#findComment-7322926 Udostępnij na innych stronach Więcej opcji udostępniania
Recommended Posts
Dołącz do dyskusji
Możesz dodać zawartość już teraz a zarejestrować się później. Jeśli posiadasz już konto, zaloguj się aby dodać zawartość za jego pomocą.