pawnook 20.11.2017 17:19 Zgłoś naruszenie Udostępnij Napisano 20 Listopada 2017 Cześć wszystkim, jesteśmy z żoną na etapie wyboru projektu. założenia jak w większości, żeby było w miarę tanio w budowie - 350 tys do stanu deweloperskiego (odpłynąłem?) i jakieś 120m2, garaż w bryle domu, dość obszerny salon z kuchnią, pokój na parterze, 3 sypialnie, garderoba i jakaś pralnio/szuarka na piętrze, wjazd od południa :/ budowa systemem gospodarczym, ekipy napewno weźmiemy na mury, tynki, dach, hydraulika, resztę myślę że z pomocą rodziny dam radę w większości sam ogarnąć. Przeglądając forum i czytając porady obecnych tu specjalistów nasuwa mi się kila pytań. 1. na co patrzeć przy wyborze projektu jeśli na metraż użytkowy? wiem, że pojawią się w Waszych wypowiedziach powierzchnia netto, tylko w niektórych porjektach nie jest to wyszczególnione więc jak się ma metraż użytkowy do powierzchni netto?2. biorąc np jeden z projektów https://projekty.muratordom.pl/projekt_dom-za-rogiem-wariant-v,3014,0%2C0.htm?c=54#parametry - dlaczego dach nad garażem zrobiony jest niżej? czy nie lepiej/taniej ze względu na piętro zrobić dach po całości na tej samej wysokości - wiele projektu właśnie tak jest przedstawionych3. jak mają się szacunkowe koszty podane w projektach do wartości rzeczywistych? przykładowy w/w projekt do ssz wychodzi 214 tys. jest to realne?4. Czy dom w stylu nowoczesnym, z takim samym metrażem użytkowym jak ten wyżej, wyjdzie dużo drożej, a może taniej? np ten https://www.archon.pl/projekty-domow/projekt-dom-w-mircie-5-m61422a878834a z góry dziękuje za odpowiedzi Cytuj Odnośnik do komentarza https://forum.murator.pl/topic/233938-pytania-na-pocz%C4%85tek/ Udostępnij na innych stronach Więcej opcji udostępniania
Kemotxb 20.11.2017 17:36 Zgłoś naruszenie Udostępnij Napisano 20 Listopada 2017 Chcesz tanio w budowie ? Szukaj prostego projektu, prosta bryła, prosty dach, na dużą działkę parterówka, na małą działkę z poddaszem, garaż w bryle hm ja teraz bym nie zrobił, ale mnie działka ograniczała. Metraż dostosowany do ilości osób, nie warto budować dużego domu, podążaj w coś energooszczędnego, dodaj sobie dodatki na czasie takie jak rekuperacja, pełna podłogówka, pompa ciepła, wybierz dobry materiał na ściany. Co do projektu ten nowoczesny będzie drogi w budowie, ma pełne piętro, skomplikowane okna. Gotowce mają to do siebie że ktoś już je budował ale ja teraz wybrałbym projekt indywidualny. Cytuj Odnośnik do komentarza https://forum.murator.pl/topic/233938-pytania-na-pocz%C4%85tek/#findComment-7436463 Udostępnij na innych stronach Więcej opcji udostępniania
CityMatic 20.11.2017 17:47 Zgłoś naruszenie Udostępnij Napisano 20 Listopada 2017 Odpowiem od tyłu 4. To inny dom wymaga innych warunków zabudowy(tzn ma dwie pełne kondygnacje)i nie wszędzie można taki dom wybudować. Dom jest droższy od tego co wyżej 3. Średnia liczona dla kilku województw (ogólnie przy zaangażowaniu własnym można policzyć 20-30% mniej) 2.Taki garaż łatwiej oddzielić od budynku(izolacja jako pomieszczenie nieogrzewane, nie trzeba robić stropu nad garażem-taniej, mniejsza powierzchnia dachu i obróbek-taniej nie ma niezagospodarowanego pomieszczenia nad garażem- dodatkowe koszty w ogrzewaniu garażu bo będzie zimna podłoga nad garażem przez co dodatkowe ocieplenie stropu garażu w celu uzyskania równej temperatury w pomieszczeniu nad nim - niższe koszty ogrzewania.Jeśli garaż ogrzewany a brak pomieszczeń nad nim możliwość utrzymania niższej temperatury w tym pomieszczeniu - oszczędności w ogrzewaniu. Atrakcyjniejsza wg projektanta i w założeniu bryła budynku. 1. Pow netto to powierzchnia domu to suma powierzchni użytkowych wszystkich pomieszczeń bez piwnicy, garażu, kotłowni i strychu. Na poddaszu, pod skosami dachu do powierzchni użytkowej uwzględniono powierzchnię wg zasady: - tam gdzie wysokość pomieszczenia ma powyżej 2,2m powierzchnia jest liczona w 100%, - pomiędzy 1,4m a 2,2m (wysokości pomieszczenia) w 50%, - poniżej 1,4m powierzchnia nie jest brana pod uwagę. Cytuj Odnośnik do komentarza https://forum.murator.pl/topic/233938-pytania-na-pocz%C4%85tek/#findComment-7436474 Udostępnij na innych stronach Więcej opcji udostępniania
pawnook 20.11.2017 18:33 Autor Zgłoś naruszenie Udostępnij Napisano 20 Listopada 2017 (edytowane) dzięki wielkie za pomoc. troche jestem mądrzejszy. generalnie wiem jak policzyć powierchnię użytkową, tylko na forum czasami trafiają się stwierdzenia, że dom 120m2 użytkowych może być droższy w budowie niż 140m2 ze wględu na skosy i większą powierzchnię netto. Teraz jeszcze się zastanawiamy czy wybierać gotowca i wrzucić kilka zmian czy projekt indywidualny. jakie koszty mogą być w drugim przypadku? spotkałem się z pewnym stwierdzeniem znajomej osoby, że narysuje sobie sama projekt np w sweet homie, i architekt na tej podstawie narysuje gotowy projekt z adaptacją. Kwota 5 tys złotych. Pytanie czy taka opcja jest możliwa, żeby w takich kosztach mieć projekt indywidaulny?a i jeszczd jedno pytanie, chciałbym możliwie jak najmneijszą liczbę okien dachowych, czy pójście w lukarny znacząco podniosą koszty? generalnie w moich przypadku lukarna miałaby być od fronu i najlepiej łączyć w jednym okna od dwóch pomieszczeń. Edytowane 20 Listopada 2017 przez pawnook Cytuj Odnośnik do komentarza https://forum.murator.pl/topic/233938-pytania-na-pocz%C4%85tek/#findComment-7436504 Udostępnij na innych stronach Więcej opcji udostępniania
Marcin34_Śl 20.11.2017 19:44 Zgłoś naruszenie Udostępnij Napisano 20 Listopada 2017 (edytowane) Prosty projekt indywiudalny możesz się zmieścić w granicach 5-6 tyś. Powierzchnia to nie wszystko, liczy się głównie bryłą budynku i dach, który generuje barfdzo dużo koszty i bardzo często 120 m2 może być droższe niż 140 m2. Główne pytanie - jaka powierzchnia i jaka działka. Jeśłi działka Ciebie nie ogranicza to domek 110-120 m2 najtaniej wyjdzie parterowy, później z doświadczenia parterowy dom już staje się coraz droższy ze względu na duże powierzchnie zabudowy i dach, gdzie czasami dach ma 300m2 i dom z poddaszem staje się tańszy. Z doświadczenia też powiem, że dom piętrowy ze śkośnym dachem wychodzi najdrożej, bo mamy dwa pięta, dwa stopy, dach, sporom2 elewacji, tynkowane okapy itp Przy 120m2 trudno Ci będzie spełnić wszystkie wymagania, dodająć pokój na parterze automatycznie zmniejszasz salon. Uwierz mi, że 20-25 m2 to malutki salonik. W tych projektach, które pokazałeś te stoliki mają chyba po 120 cm. Zwracaj uwagę na wymiary mebli, bo biura zmniejszają gabaryty i narysują CI stół na 6 osób, któty w rzeczywistości pomieści 4 osoby Edytowane 20 Listopada 2017 przez Marcin34_Śl Cytuj Odnośnik do komentarza https://forum.murator.pl/topic/233938-pytania-na-pocz%C4%85tek/#findComment-7436562 Udostępnij na innych stronach Więcej opcji udostępniania
Kemotxb 20.11.2017 19:48 Zgłoś naruszenie Udostępnij Napisano 20 Listopada 2017 Lukarny są droższe i zmieniają konstrukcję dachu, są dodatkowym źródłem nieszczelności i wbrew pozorom nie dają dużo światła ze względu na efekt tunelowy. Jeśli wybierzesz projekt indywidualny tzn taki z poddaszem to da się zrobić tak by nie było okien dachowych wcale a pokoje były doświetlone oknami w szczycie. Co do powierzchni hm liczy się też ta do zabudowy bo płacisz za każdy metr kwadratowy a czy on jest użytkowy, zabudowy, czy całkowity to już tylko kwestia czy będzie drogo, drożej czy bardzo drogo . Pytanie tylko czy i jak chcesz z tych metrów korzystać Cytuj Odnośnik do komentarza https://forum.murator.pl/topic/233938-pytania-na-pocz%C4%85tek/#findComment-7436564 Udostępnij na innych stronach Więcej opcji udostępniania
pawnook 21.11.2017 06:41 Autor Zgłoś naruszenie Udostępnij Napisano 21 Listopada 2017 Forumowicze, nawet nie wiecie jak wdzięczny jestem za porady. Dzięki temu wiem już jedno, napewno projekt indywidualny, salon z jadalnią musi mieć ok 30m2 conajniej. Generalnie, dodatkowy pokój na dole miałby służyć jako gabinet do popracowania, ewentualnie jakaś sofa dla gości do przenocowania. może jednak na piętrze zrobić 4 pokoje zamiast 3? jakby to wyszło kosztowo i powierzchniowo? urwie się coś wtedy na kosztach budowy w porównaniu z pokojem na parterze? i odpowiadając na pytanie czy nie parterówka, działkę mamy 850m2 , w miarę foremna = 24x35 więc teoretycznie parterówka mogłaby być, tylko że mamy obowiązującą linie zabudowy 10m2, i w związku z tym tracimy trochę działki. Z racji również tego że wjazd od południa, chcemy zrobić nie za szeroki budynek, aby od południowego zachodu zrobić taras no i chyba największy argument - żona uparła się na piętro Cytuj Odnośnik do komentarza https://forum.murator.pl/topic/233938-pytania-na-pocz%C4%85tek/#findComment-7436693 Udostępnij na innych stronach Więcej opcji udostępniania
Elfir 21.11.2017 15:32 Zgłoś naruszenie Udostępnij Napisano 21 Listopada 2017 (edytowane) Lukarna raczej daje przestrzeń na poddaszu niż doświetlenie. Przy domu 120 m2 gdy salon ma 30 m2 to zostaje 90 m2 na wiatrołap, kuchnię, trzy sypialnie, gabinet, dwie łazienki, kotłownię (z pralnią) i korytarze. A w przypadku domu z poddaszem musisz zmieścić także klatkę schodową. To bardzo mało. Chyba, że chcesz mieć ogromny salon i maleńkie sypialnie.Jak chcesz mały dom licz się z mniejszym salonem. Jak rozbudujesz parter powierzchniowo to przy prostym domu-stodole automatycznie rośnie ci wielkość poddasza. Edytowane 21 Listopada 2017 przez Elfir Cytuj Odnośnik do komentarza https://forum.murator.pl/topic/233938-pytania-na-pocz%C4%85tek/#findComment-7437074 Udostępnij na innych stronach Więcej opcji udostępniania
Robinson74 21.11.2017 21:57 Zgłoś naruszenie Udostępnij Napisano 21 Listopada 2017 Też najpierw chcieliśmy iść w nizbyt duży metraż, ale potem wyszło tak: - Salon z jadalnią 30m? Trzeba nam więcej. - Mały garaż? Jak tam postawię 2 auta albo auto + rowery. Trzeba większy. - 3 sypialnie na poddaszu? No jak? Dzieci muszą mieć osobne, a jak ktoś jeszcze chce przenocować? - Klatka schodowa o szerokości 90cm? Toż to ciasnota jak się mieszkało w kamienicy albo w bloku. - itd. I tak się już robi duża powierzchnia. Powodzenia. Cytuj Odnośnik do komentarza https://forum.murator.pl/topic/233938-pytania-na-pocz%C4%85tek/#findComment-7437333 Udostępnij na innych stronach Więcej opcji udostępniania
pawnook 22.11.2017 06:48 Autor Zgłoś naruszenie Udostępnij Napisano 22 Listopada 2017 hmm no niestety, ale macie rację i 120m2 będzie za mało dla moich założeń. ponawiam pytanie odnośnie 4 pokoju, czy lepiej zwiększyć metraż dołu i wcisnąć na parter czy lepiej na piętro (jak to wygląda ze względów w Waszej opinii oraz kosztów przy budowie?) wstępnie wyobrażałbym sobie to tak, że na dole, wiatrołap z szafą pod zabudowę, salon z jadalnia 30-32m2, kuchnia otwarta z wyspą - tu pewnie musi się zakręcić koło 10m2? mała łazienka na toaletę i umywalkę 2-3m2, kotłownia - jako chyba przedłużenie garażu, łącznik między "domem" a garażem mógłby robić za pralnię, Czy w takim układzie jest szansa na 4 pokoje na piętrze - ok 10-13m2 + garderoba w naszej sypialni? jeśli ktoś jest w stanie sobie to wyobrazić to czy będzie trzeba nad garażem wykorzystać przestrzeń na normalnie użytkową i grzać na full garaż, czy lepiej zrobić tam jakąś graciarnie? otwieranie bramy garażowej w zimie wywieje całe ciepłe powietrze z garażu, pytanie czy w pokoju nad garażem (zakładam wszędzie ogrzewanie podłogowe) będzie to bardzo odczuwalne? Cytuj Odnośnik do komentarza https://forum.murator.pl/topic/233938-pytania-na-pocz%C4%85tek/#findComment-7437406 Udostępnij na innych stronach Więcej opcji udostępniania
cypryski 22.11.2017 10:26 Zgłoś naruszenie Udostępnij Napisano 22 Listopada 2017 (edytowane) Miałem podobne założenia jak Ty i wyszedł dom ponad 160 m2 Dodam jeszcze, że kuchnia z wyspą 10 m2 to NIEREALNE. Miałem kuchnię 9 m2 w bloku, nie było szans na wyspę, teraz w domu kuchnia ma ok. 15m2 i nie widziałbym miejsca na wyspę. Może to kwestia kształtu, ale wg mnie wyspa jest funkcjonalna przy powierzchni kuchni 20 m2 i więcej. Edytowane 22 Listopada 2017 przez cypryski Cytuj Odnośnik do komentarza https://forum.murator.pl/topic/233938-pytania-na-pocz%C4%85tek/#findComment-7437532 Udostępnij na innych stronach Więcej opcji udostępniania
Marcin34_Śl 22.11.2017 11:32 Zgłoś naruszenie Udostępnij Napisano 22 Listopada 2017 Najlepiej jak chcesz się za wszystkim zmieścći to wywal garaż... ja tak zrobiłem i jestem zadowolony. Fajna kuchnia z wyspą, funkcjonalna to min. 20m2 jak pisał Cypryski.Jak nie będzie na parterze pokoju (gośninnego) to wystarczy WC bez łazienki.Jak rodzina 2+2 to konieczne dwie łazienki na piętrze.Garaż - masz słuszne uwagi, dlatego w domach energooszczędnych wogóle nie powinno być garaży albo dostawione do budynkuPamiętaj, że klatka schodowa zajmuje z 6-7 m2.Już ci się zrobiło: salon 30m, kuchnia 15, wiatrołap 5, pom. gos.5, WC2, komunikacja 5 i klatka schodowa 6, garaż 20m = 85 metrów parter bez pokoiku *2 czyli 170 metrów po podłogach. Cytuj Odnośnik do komentarza https://forum.murator.pl/topic/233938-pytania-na-pocz%C4%85tek/#findComment-7437574 Udostępnij na innych stronach Więcej opcji udostępniania
Elfir 22.11.2017 14:22 Zgłoś naruszenie Udostępnij Napisano 22 Listopada 2017 Dom pasywny (czyli grzany prądem, stąd brak kotłowni) o powierzchni +/- 120 m2:http://2.bp.blogspot.com/-gyF5EcJyEXw/UZvKV-a4LSI/AAAAAAAAAII/78X1ZWMT7RA/s1600/Dom_rzut.jpg Rzut może być punktem wyjścia do projektu indywidualnego. A tu nieco większy domek:http://4.bp.blogspot.com/-XwnGdkQTSOQ/UZvRYz0_sdI/AAAAAAAAAJs/LDftt2OsNJ8/s400/Dom_rzut_parter_blog.pnghttp://3.bp.blogspot.com/-US7hDP5n0sY/UZvRi0rckLI/AAAAAAAAAJ0/ybF4EPCGQkA/s400/Dom_rzut_pietro_blog.png Więcej szczegółów:http://budownictwo-pasywne.blogspot.in/2013/05/projekty-jednorodzinnych-domow.html Cytuj Odnośnik do komentarza https://forum.murator.pl/topic/233938-pytania-na-pocz%C4%85tek/#findComment-7437656 Udostępnij na innych stronach Więcej opcji udostępniania
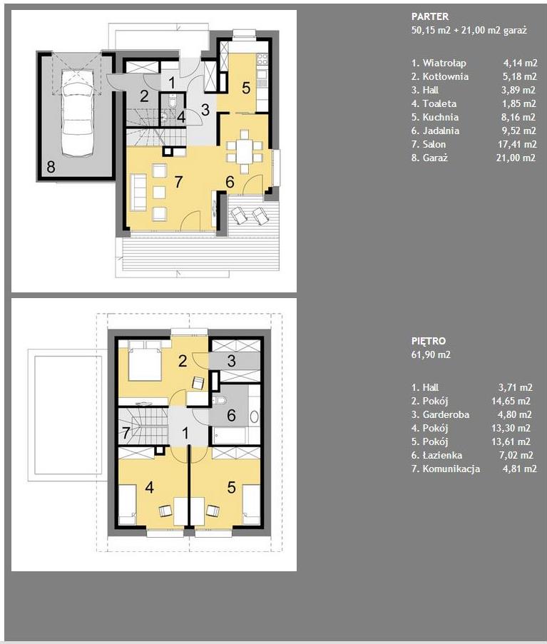
pawnook 23.11.2017 09:19 Autor Zgłoś naruszenie Udostępnij Napisano 23 Listopada 2017 Cześć, dzięki Elfir za projekty, ale proszę rzuć okiem na ten: https://pracownia-projekty.dom.pl/dl_pinczer_9_z_garazem_2_st_ce.htm plus naniesone moje zmiany ww piantcadzie powiększony trochę budynek aby zwiększyć salon oraz kuchnie, na zielono wówczas namalowałem pseudo wyspę. dodatkowo zwęziłbym garaż na jednostanowiskowy. teraz zostaje piętro - łazienka przydałaby się ciuć większa i nie ma garderoby - która musi być. dodatkowo zrezygnowalibyśmy chyba z lukarny, tam gdzie pójdzie okna szczytowe. przesłany projekt mógłby być moją bazą? oczywiście pod linkiem w projekcie jest błąd 2 to korytarz a 7 to kotłownia. Cytuj Odnośnik do komentarza https://forum.murator.pl/topic/233938-pytania-na-pocz%C4%85tek/#findComment-7438192 Udostępnij na innych stronach Więcej opcji udostępniania
jajmar 23.11.2017 09:54 Zgłoś naruszenie Udostępnij Napisano 23 Listopada 2017 Dom pasywny (czyli grzany prądem, stąd brak kotłowni) ] Dom pasywny to nie znaczy że jest grzany prądem !!!!!!!!!! Cytuj Odnośnik do komentarza https://forum.murator.pl/topic/233938-pytania-na-pocz%C4%85tek/#findComment-7438208 Udostępnij na innych stronach Więcej opcji udostępniania
dwiecegly 23.11.2017 10:17 Zgłoś naruszenie Udostępnij Napisano 23 Listopada 2017 Dom z pełnym piętrem lub parterowy wcale nie musi mieć dużej powierzchni żeby był funkcjonalny. Ja mam ledwo 108m2, mieszkam pare miesiecy i jest wszystko co chcialem i wiekszego nie potrzebuje przy dwojce dzieci. Podstawa to brak skosów. Jedyne co chciałbym większe to garaż, ten musi mieć min 4m szerokosci, najlepiej 4.5m. No i pomieszczenie gospodarcze zrobiłbym inne, teraz mam tylko 5m2 z czego część ścieta schodami. Poza tym nie zmieniłbym nic. Salon mam 23m2 i jest w sam raz. Wszystko zależy od kształu i miejsca gdzie sa okna i drzwi. Cytuj Odnośnik do komentarza https://forum.murator.pl/topic/233938-pytania-na-pocz%C4%85tek/#findComment-7438230 Udostępnij na innych stronach Więcej opcji udostępniania
Wojak65 23.11.2017 10:29 Zgłoś naruszenie Udostępnij Napisano 23 Listopada 2017 Proponuję poświęcić kilka dni, tygodni i spędzić trochę czasu na forum. Poczytać kilka/kilkanaście dzienników budowy (do wyboru projektu wystarczy kilka stron początkowych) i będziesz dużo mądrzejszy jeśli chodzi o wybór projektu. Dziesiątki tematów tutaj traktują o wyborze projektu, późniejszych kosztach i całej otoczce budowy. Jedna moja rada, na wszystkie wpisy patrz również ze swojej strony bo to ty będziesz tam mieszkał i to ty musisz sfinansować budowę Powodzenia Cytuj Odnośnik do komentarza https://forum.murator.pl/topic/233938-pytania-na-pocz%C4%85tek/#findComment-7438246 Udostępnij na innych stronach Więcej opcji udostępniania
Elfir 23.11.2017 17:00 Zgłoś naruszenie Udostępnij Napisano 23 Listopada 2017 Dom pasywny to nie znaczy że jest grzany prądem !!!!!!!!!! To pokaż mi kotłownię na załączonym planie. Cytuj Odnośnik do komentarza https://forum.murator.pl/topic/233938-pytania-na-pocz%C4%85tek/#findComment-7438439 Udostępnij na innych stronach Więcej opcji udostępniania
Elfir 23.11.2017 17:01 Zgłoś naruszenie Udostępnij Napisano 23 Listopada 2017 Cześć, dzięki Elfir za projekty, ale proszę rzuć okiem na ten: https://pracownia-projekty.dom.pl/dl_pinczer_9_z_garazem_2_st_ce.htm plus naniesone moje zmiany ww piantcadzie ] No super. Zrobiłeś 100 m parteru. Z poddaszem to jest dom 200m2. jak to ma się do posiadanego budżetu? Cytuj Odnośnik do komentarza https://forum.murator.pl/topic/233938-pytania-na-pocz%C4%85tek/#findComment-7438441 Udostępnij na innych stronach Więcej opcji udostępniania
pawnook 23.11.2017 18:23 Autor Zgłoś naruszenie Udostępnij Napisano 23 Listopada 2017 No super. Zrobiłeś 100 m parteru. Z poddaszem to jest dom 200m2. jak to ma się do posiadanego budżetu? możesz obajśnić skąd to 200m2? bo powierzchni użytkowej to będzie koło 120m2. rozumiem, że te 200 to pewnie po podłodze, ale skąd taka wartość? drugi pomysł, to zrezygnować z pokoju na dole, powierzchnie przeznaczyć na powiększenie kuchni i salonu, wówczas wykorzystać powierzchnie nad garażem na dodatkowy pokój na piętrze. kurna pomału to już głupieje. niby wg projektu dom 107m2 troszkę go powiększam i nagle robi 200m2 przez skosy i kosmiczne koszty budowy. jak te skosy tak bardzo szkodą bo nie dają powierzchni użytkowej, a koszty rosną tak samo, to może lepiej postawić klocka w stylu nowoczesnym? Cytuj Odnośnik do komentarza https://forum.murator.pl/topic/233938-pytania-na-pocz%C4%85tek/#findComment-7438478 Udostępnij na innych stronach Więcej opcji udostępniania
Recommended Posts
Dołącz do dyskusji
Możesz dodać zawartość już teraz a zarejestrować się później. Jeśli posiadasz już konto, zaloguj się aby dodać zawartość za jego pomocą.