obrzydliwy 21.08.2020 12:21 Zgłoś naruszenie Udostępnij Napisano 21 Sierpnia 2020 Bez obrazy, ale zmiany wprowadzone przez Ciebie to kompletne nieporozumienie. Zrobisz sobie tym krzywdę. Podział na pomieszczenia salono-jadalnie z kuchnio-salono-jadalnia o wielkości zwykłych pokoi, brak słów Oryginalny projekt jest lepszy, ale i tak nie ma fundamentalnych cech dobrego projektu. Projekt Elfir jest o niebo lepszy. A to moja propozycja na bazie pomysłu Elfir. https://zapodaj.net/e2f2847ffbef9.jpg.html Cytuj Odnośnik do komentarza https://forum.murator.pl/topic/252638-nowy-dom-parterowy-dla-22/page/3/#findComment-7831750 Udostępnij na innych stronach Więcej opcji udostępniania
DarekDawid 21.08.2020 16:11 Zgłoś naruszenie Udostępnij Napisano 21 Sierpnia 2020 (edytowane) Zgadzam sie obrzydliwy. Więcej przestrzeni. Ale ten kibelek dałbym na lewą stronę i może kuchnię na górę a wypoczynek na dół. Więcej słońca. Edytowane 21 Sierpnia 2020 przez DarekDawid Cytuj Odnośnik do komentarza https://forum.murator.pl/topic/252638-nowy-dom-parterowy-dla-22/page/3/#findComment-7831809 Udostępnij na innych stronach Więcej opcji udostępniania
ololek 21.08.2020 20:06 Autor Zgłoś naruszenie Udostępnij Napisano 21 Sierpnia 2020 (edytowane) Dlaczego ten dom jest tak położony na tej działce? Jest jakaś linia zabudowy? Czy mimo to nie można go wyciągnąć na południe, od zachodu wrzucić salon i sypialnie? Pokoje dla dzieci mają mieć 8m2? Straszne klitki. Szkoda dzieci. U mnie maja ponad 16m2, po dwa okna na południe i wschód/zachód i nie zamieniłbym tego na nic innego. W takim małym domku masz wydzieloną jakaś mityczną jadalnie dla gości? Za to salon ze ślepą kuchnią jak w mieszkaniu u developera. Cały czas stoisz tyłem do okna. a za ścianą duża jadalnia. Daj już tę kuchnię do jadalni! i tak ze środka domu , tyłem do ściany nie zobaczysz podjazdu? Zresztą spodziewasz sie od tej strony najazdu Hunów? Rozwiązanie Elfir jest idealne. 4 duże okna z 3 stron świata to gwarancja doskonałego doświetlenia. Sam tak mam i jest to idealne rozwiązanie. Te łazienki to jakiś koszmar. Rozumiem, że przed wejściem do wanny lecisz do drugiej z 1-ką. Dzięki za komentarz. Na południu są drzewa. Od zachodu nie chcemy okien. I tak postawimy sobie tam szopkę ogrodową. Poza tym będziemy mieć studnię, i biooczyszalnie więc są pewne ograniczenia co do posadowienia budynku. Na wschodzie ściętym narożniku i północy nieprzekraczalna linia zabudowy 5m od granicy. [ATTACH=CONFIG]444333[/ATTACH] Pokoje dzieci powiększymy do około 9m2. Mamy projekt 99m2 więc nie ma co porównywać metrażu z Twoim. Chcieliśmy mały ekonomiczny dom. Teraz mamy mieszkanie 49m2 więc te 99m2 to będzie dużo dla nas. Kuchnia 17m2 będzie od północy chyba. Będzie stół na 4 osoby w kuchni. . A od południa salon 19m2. Ale jeszcze się zastanawiamy nad kuchnia od południa. W salonie będzie rozkładany stół na jakieś większe rodzinne imprezy max 10 osób. Ten projekt nam się spodobał który mamy. Ten podcień co mamy w projekcie nam się też podoba. No i blisko z aut do wejścia. Też mamy podział na strefę dzienną i nocną z tym że się przechodzi przez strefę dzienną. Olek posłuchaj rady Elfirowej bo dobrze radzi. Wejście po środku budynku dzieli strefy domu na dzienna i nocną. Jest to bardzo zdrowe i funkcjonalne podejście. Otworzyłbym jeszcze kuchnie na część jadalnianą od strony Pn oczywiście. W twojej wersji domu brakuje mi tylko wyjścia ewakuacyjnego po lewej stronie. [ATTACH=CONFIG]447332[/ATTACH] Dzięki za komentarz ale projekt Elfirowej może i jest ergonomiczny ale my chcieliśmy pomieszczenie gospodarcze przy wejsciu. Z podcienia. Na starość będziemy sobie siadać na podcieniu i obserwować otoczenie Bez obrazy, ale zmiany wprowadzone przez Ciebie to kompletne nieporozumienie. Zrobisz sobie tym krzywdę. Podział na pomieszczenia salono-jadalnie z kuchnio-salono-jadalnia o wielkości zwykłych pokoi, brak słów Oryginalny projekt jest lepszy, ale i tak nie ma fundamentalnych cech dobrego projektu. Projekt Elfir jest o niebo lepszy. A to moja propozycja na bazie pomysłu Elfir. https://zapodaj.net/e2f2847ffbef9.jpg.html Dzięki za komentarz. Podcienia, wiatrołapu i pomieszczenia gospodarczego nie zmienimy. Zbliżamy się bardziej ku oryginałowi. Tylko nie wiem czy łazienka i WC oddzielnie czy nie. No i kuchnia czy północ czy południe. Zgadzam sie obrzydliwy. Więcej przestrzeni. Ale ten kibelek dałbym na lewą stronę i może kuchnię na górę a wypoczynek na dół. Więcej słońca. [ATTACH=CONFIG]447336[/ATTACH] Kuchnia będzie ze stołem na 4 osoby. A w salonie rozkładany stół. Kuchnia dół lub góra - jeszcze myślimy. A takie mamy teraz propozycje. Edytowane 25 Sierpnia 2020 przez ololek Cytuj Odnośnik do komentarza https://forum.murator.pl/topic/252638-nowy-dom-parterowy-dla-22/page/3/#findComment-7831872 Udostępnij na innych stronach Więcej opcji udostępniania
ololek 22.08.2020 05:57 Autor Zgłoś naruszenie Udostępnij Napisano 22 Sierpnia 2020 (edytowane) Dorzucam wiadomość jak wygląda 300m2 dojazdu z miejscami postojowymi. Całość kosztowała 15000 zł. Szerokość drogi to 3.5m. a placyk ma 10x7m. Edytowane 23 Sierpnia 2020 przez ololek Cytuj Odnośnik do komentarza https://forum.murator.pl/topic/252638-nowy-dom-parterowy-dla-22/page/3/#findComment-7831927 Udostępnij na innych stronach Więcej opcji udostępniania
DarekDawid 22.08.2020 06:23 Zgłoś naruszenie Udostępnij Napisano 22 Sierpnia 2020 (edytowane) Można jeszcze coś takiego pokombinować, ale to mi już pachnie rekuperacją. Zastanawia mnie jeszcze dlaczego dajesz ściany nośne? Czy nie można zrobić sufitu na wiązarach dachowych? Edytowane 22 Sierpnia 2020 przez DarekDawid Cytuj Odnośnik do komentarza https://forum.murator.pl/topic/252638-nowy-dom-parterowy-dla-22/page/3/#findComment-7831931 Udostępnij na innych stronach Więcej opcji udostępniania
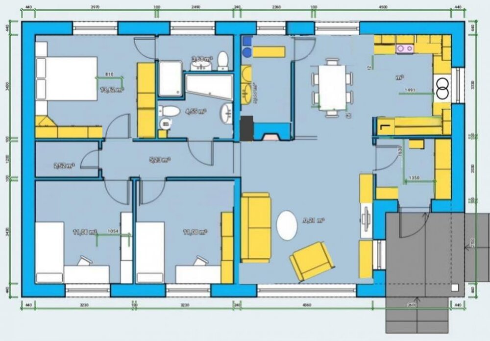
ololek 23.08.2020 13:46 Autor Zgłoś naruszenie Udostępnij Napisano 23 Sierpnia 2020 Można jeszcze coś takiego pokombinować, ale to mi już pachnie rekuperacją. [ATTACH=CONFIG]447350[/ATTACH] [ATTACH=CONFIG]447351[/ATTACH] [ATTACH=CONFIG]447354[/ATTACH] Zastanawia mnie jeszcze dlaczego dajesz ściany nośne? Czy nie można zrobić sufitu na wiązarach dachowych? Skłaniam się ku kuchni od północy. Te propozycje są ciekawe ale wykombinowałem coś takiego. Powiększyłem pokoje dzieci do 11m2, Łazienka jest z wanną i umywalka więc tam raczej nie potrzebny ustęp WC. Obok i tak jest WC z prysznicem i umywalką. Kuchnia z oknem tarasowym do wyjścia na północny taras letni. Umieściłem też komin przy łazienkach jakbyśmy się zdecydowali na dodatkowy kominek, czy piec. W pomieszczeniu gospodarczym dałem drugi WC jakby pierwszy był zajęty czy zachcialoby się przed wyjściem z domu czy podczas pracy w ogródku. A ściany konstrukcyjne wewnątrz do oddzielenia stref noc, dzień i wejście/pom.gospodarcze. Dach będzie w konstrukcji wiązarowej. Cytuj Odnośnik do komentarza https://forum.murator.pl/topic/252638-nowy-dom-parterowy-dla-22/page/3/#findComment-7832247 Udostępnij na innych stronach Więcej opcji udostępniania
DarekDawid 24.08.2020 13:26 Zgłoś naruszenie Udostępnij Napisano 24 Sierpnia 2020 (edytowane) Jak masz robić łazienkę bez miski ustępowej to lepiej popełnić coś takiego: Tak popatrzyłem na te zdjęcia i powiem że ładny kawałek parceli. Ale widzę tam dom z wejściem na przeciwko wjazdu w stylu dworkowym. To takie moje odczucie, albo po prostu nie widzę całości. I jeszcze coś takiego bez komentarza: Edytowane 24 Sierpnia 2020 przez DarekDawid Cytuj Odnośnik do komentarza https://forum.murator.pl/topic/252638-nowy-dom-parterowy-dla-22/page/3/#findComment-7832588 Udostępnij na innych stronach Więcej opcji udostępniania
ololek 28.08.2020 08:05 Autor Zgłoś naruszenie Udostępnij Napisano 28 Sierpnia 2020 Dzięki DarekDawid za propozycję. Ta kuchnia na prawo to fajny pomysł. Z łazienką dla sypialni również. Teraz mam takie rozplanowanie do wyboru. Cytuj Odnośnik do komentarza https://forum.murator.pl/topic/252638-nowy-dom-parterowy-dla-22/page/3/#findComment-7833813 Udostępnij na innych stronach Więcej opcji udostępniania
DarekDawid 28.08.2020 14:28 Zgłoś naruszenie Udostępnij Napisano 28 Sierpnia 2020 To mi się podoba. Nawet ten super integracyjny układ z salonem przechodnim. Nie wiem dlaczego te pomieszczenie gospodarcze jest takie duże? Może wygospodarować jakąś spiżarnie? Cytuj Odnośnik do komentarza https://forum.murator.pl/topic/252638-nowy-dom-parterowy-dla-22/page/3/#findComment-7833918 Udostępnij na innych stronach Więcej opcji udostępniania
ololek 04.09.2020 12:46 Autor Zgłoś naruszenie Udostępnij Napisano 4 Września 2020 [ATTACH=CONFIG]447602[/ATTACH] To mi się podoba. Nawet ten super integracyjny układ z salonem przechodnim. Nie wiem dlaczego te pomieszczenie gospodarcze jest takie duże? Może wygospodarować jakąś spiżarnie? Chcę tam do tego pomieszczenia upakować pralkę, suszarkę, sznurki na pranie, zamrażarkę, pompę ciepła CWU, skrzynkę elektryczną jakis regał, stację uzdatniania wody ze zmiękczaczem. Przyłacze wody i prądu. Cytuj Odnośnik do komentarza https://forum.murator.pl/topic/252638-nowy-dom-parterowy-dla-22/page/3/#findComment-7836281 Udostępnij na innych stronach Więcej opcji udostępniania
DarekDawid 08.09.2020 07:27 Zgłoś naruszenie Udostępnij Napisano 8 Września 2020 (edytowane) Jeszcze taka wersja: Zmniejszone pomieszczenie gospodarcze i sień na rzecz kuchni i salonu. Wersja z lepszym rozkładem łazienek. Edytowane 9 Września 2020 przez DarekDawid Cytuj Odnośnik do komentarza https://forum.murator.pl/topic/252638-nowy-dom-parterowy-dla-22/page/3/#findComment-7837474 Udostępnij na innych stronach Więcej opcji udostępniania
Kaizen 08.09.2020 11:24 Zgłoś naruszenie Udostępnij Napisano 8 Września 2020 Zdajesz sobie sprawę, że jak wyprostujesz bryłę likwidując to wcięcie przy wejściu, to nie poniesiesz dodatkowych kosztów (albo i taniej wyjdzie) a przybędzie m2? Cytuj Odnośnik do komentarza https://forum.murator.pl/topic/252638-nowy-dom-parterowy-dla-22/page/3/#findComment-7837561 Udostępnij na innych stronach Więcej opcji udostępniania
ololek 08.09.2020 20:07 Autor Zgłoś naruszenie Udostępnij Napisano 8 Września 2020 (edytowane) Zdajesz sobie sprawę, że jak wyprostujesz bryłę likwidując to wcięcie przy wejściu, to nie poniesiesz dodatkowych kosztów (albo i taniej wyjdzie) a przybędzie m2? Racja tak by było pewnie jak piszesz. Dodatkowe 7m2. Ale chcieliśmy właśnie taki podcień duży. Ławeczka tam będzie przy oknie. Taki minitaras. Jak to zlikwiduje to znowu trzeba robić zadaszenie nad wejściem. Mogłeś wcześniej pisać o tym My mamy już PNB na ten projekt z podcieniem więc musiałby być projekt zamienny zapewne. Edytowane 9 Września 2020 przez ololek Cytuj Odnośnik do komentarza https://forum.murator.pl/topic/252638-nowy-dom-parterowy-dla-22/page/3/#findComment-7837723 Udostępnij na innych stronach Więcej opcji udostępniania
ololek 09.10.2020 11:46 Autor Zgłoś naruszenie Udostępnij Napisano 9 Października 2020 (edytowane) Trochę się podziało w temacie. Po badaniach gruntu wyszło, że jest grunt twardoplastyczny. Decyzją projektanta robimy podbudowę na 80cm z piasku plus minimum 20cm obsypania ziemią aby strefa przemarzania była minimum 1m. Projekt płyty zakłada 2cm wykończenia, 7cm wylewki, 15cm eps, 30cm betonu b25 W8 S3/S4 zbrojonego włóknem. Brak stali zbrojeniowej. Pod płytą 10cm XPS a na burtach 10cm HydroEPS. Zero będzie 45cm nad ostatecznym poziomem gruntu. Wykop wykonany. 40m3 humusu i 80m3 rodzimegoi. A podbudowa już zagęszczana. W dniu tych prac akurat nie padało ale było mokro wokoło. Humus był lekko mokry. Rodzimy suchy. Trzeba było się jednak spieszyć aby zasypać piachem grunt rodzimy i zabezpieczyć przed uplastycznieniem od deszczu. Edytowane 9 Października 2020 przez ololek Cytuj Odnośnik do komentarza https://forum.murator.pl/topic/252638-nowy-dom-parterowy-dla-22/page/3/#findComment-7848239 Udostępnij na innych stronach Więcej opcji udostępniania
ololek 12.10.2020 13:12 Autor Zgłoś naruszenie Udostępnij Napisano 12 Października 2020 (edytowane) Kolejny etap - podbudowa 1 warstwa i druga częściowo wraz z burtami na obwodzie płyty wykonane. Po zagęszczeniu pierwszych 40cm wykonano próbę płytą dynamiczną. Pogoda w dniu prac - trochę przelotnego deszczyku co jakiś czas. Edit: W nocy solidnie padało. Miała być dokończona druga warstwa podbudowy. Jednak nie dało się zagęścić fragmentu od frontu działki. Piasek z drugiej warstwy za dużo wody przyjął. Wibrator się zapadał w rozgarniętej podbudowie. Trzeba zostawić aby woda wchłonęła się w grunt. Edytowane 12 Października 2020 przez ololek Cytuj Odnośnik do komentarza https://forum.murator.pl/topic/252638-nowy-dom-parterowy-dla-22/page/3/#findComment-7849332 Udostępnij na innych stronach Więcej opcji udostępniania
ololek 14.10.2020 08:10 Autor Zgłoś naruszenie Udostępnij Napisano 14 Października 2020 9 października było wszystko gotowe do położenia xps a potem do zalania betonem. Hurtownia poleciała w kulki i zamiast przywieźć rano to odwołali dostawę. Niestety xps organizował wykonawca i zamiast go przywieźć wcześniej na budowę to czekał z tym do dnia betonowania. Ponieważ zaczęło padać musiałem rozłożyć folię aby nie utopiło podbudowy. Ale dzięki temu wiem, że wykonawca nie zrobił ładnego poziomu. Różnice wynoszą do 5cm od poziomu planowanej podbudowy. Kilka kubików wody w środku a działka moczy się w wodzie. Cytuj Odnośnik do komentarza https://forum.murator.pl/topic/252638-nowy-dom-parterowy-dla-22/page/3/#findComment-7850070 Udostępnij na innych stronach Więcej opcji udostępniania
Neutral 16.10.2020 22:26 Zgłoś naruszenie Udostępnij Napisano 16 Października 2020 To jaką wersje w końcu budujesz? Cytuj Odnośnik do komentarza https://forum.murator.pl/topic/252638-nowy-dom-parterowy-dla-22/page/3/#findComment-7851186 Udostępnij na innych stronach Więcej opcji udostępniania
ololek 19.10.2020 08:51 Autor Zgłoś naruszenie Udostępnij Napisano 19 Października 2020 (edytowane) Spadło z 10 cm deszczu. Działka jak i wnętrze zalane były wodą. Ale motopompa trochę pomogła osuszać teren. To jaką wersje w końcu budujesz? Ostatecznie to wywaliliśmy podcień i tak będzie wg szkicu. Tak jak Kaizen pisał dzięki temu przybędzie m2. Koszt dodatkowy to projekt zamienny i wybetonowane dodatkowych m2 płyty. No cóż za niezdecydowanie się płaci. Edytowane 19 Października 2020 przez ololek Cytuj Odnośnik do komentarza https://forum.murator.pl/topic/252638-nowy-dom-parterowy-dla-22/page/3/#findComment-7852069 Udostępnij na innych stronach Więcej opcji udostępniania
Dawheron 29.10.2020 11:25 Zgłoś naruszenie Udostępnij Napisano 29 Października 2020 Witam, przepraszam za odejście od tematu. W przyszłości planuje również budowę parterówki o podobnym metrażu, dlaczego w takich domkach nikt nie robi piwnic przynajmniej pod połową domu? Cytuj Odnośnik do komentarza https://forum.murator.pl/topic/252638-nowy-dom-parterowy-dla-22/page/3/#findComment-7855232 Udostępnij na innych stronach Więcej opcji udostępniania
ololek 30.10.2020 09:17 Autor Zgłoś naruszenie Udostępnij Napisano 30 Października 2020 Witam, przepraszam za odejście od tematu. W przyszłości planuje również budowę parterówki o podobnym metrażu, dlaczego w takich domkach nikt nie robi piwnic przynajmniej pod połową domu? Wydaje mi się, że chodzi o koszty. Wykop, fundament, podłoga, hydroizolacja. Jak ktoś chce tam zrobić kotłownie spiżarnię kto to czemu nie. Ja planuję zrobić piwniczkę obok domu. Wykopać dół i wstawić taki bunkier betonowy. A wracając do budowy wykonano już izolacje xps pod planowaną płytą. Czekam na beton. 30cm betonu ze zbrojeniem rozproszonym. Cytuj Odnośnik do komentarza https://forum.murator.pl/topic/252638-nowy-dom-parterowy-dla-22/page/3/#findComment-7855491 Udostępnij na innych stronach Więcej opcji udostępniania
Recommended Posts
Dołącz do dyskusji
Możesz dodać zawartość już teraz a zarejestrować się później. Jeśli posiadasz już konto, zaloguj się aby dodać zawartość za jego pomocą.