ololek 30.03.2021 04:31 Autor Zgłoś naruszenie Udostępnij Napisano 30 Marca 2021 Mury rosną a człowiek się cieszy efekt 4 dni pracy murarzy. Cytuj Odnośnik do komentarza https://forum.murator.pl/topic/252638-nowy-dom-parterowy-dla-22/page/5/#findComment-7907060 Udostępnij na innych stronach Więcej opcji udostępniania
obrzydliwy 08.04.2021 08:31 Zgłoś naruszenie Udostępnij Napisano 8 Kwietnia 2021 Oj tam. Będzie dobrze NIe podoba Ci się oddzielna kuchnia i salon? My ściany grube chcieliśmy bo akumulują ciepło zimą lub utrzymują chłód latem. W projekcie mam 24cm mury. Jak będzie SSO to wtedy zobaczymy co z niektórymi działówkami bo to inaczej pewnie wejść do środka domu niż patrzeć na plan raczej będzie coś takiego. [ATTACH=CONFIG]453930[/ATTACH] Jak zjedzie Ci się rodzina to gdzie będziecie siedzieć, w kuchni przy stole, czy wszyscy na tej kanapie w ,,dużym pokoju'' bo salonem tego nie można nazwać. Korytarz długi i ciemny. Dom ponad 100m2, a podzielony na ciasne klitki. Tak się już nie projektuje od 20 lat. Rozkład pomieszczeń wygląda jak u babci Genowefy w Wólce Żabnej. Projekt rysowany na kolanie. Źle, źle, źle. Projektant do wymiany, a inwestor do lektury. Cytuj Odnośnik do komentarza https://forum.murator.pl/topic/252638-nowy-dom-parterowy-dla-22/page/5/#findComment-7910148 Udostępnij na innych stronach Więcej opcji udostępniania
ololek 28.04.2021 08:28 Autor Zgłoś naruszenie Udostępnij Napisano 28 Kwietnia 2021 Ściany nośne już są, wieniec zalany. Cytuj Odnośnik do komentarza https://forum.murator.pl/topic/252638-nowy-dom-parterowy-dla-22/page/5/#findComment-7916679 Udostępnij na innych stronach Więcej opcji udostępniania
ololek 08.06.2021 06:38 Autor Zgłoś naruszenie Udostępnij Napisano 8 Czerwca 2021 (edytowane) Studnia wykonana. Wydajność 6-7m3/h. Lustro wody na 8m. Koszt to 260zł/m. 40m odwiert, rura osłonowa, filtry, obsypka. W sumie za 11200 zł. Na razie tylko wystaje sama rura. Trzeba jeszcze obudowę studni, pompę, przyłącza itd. Szczyty, wieniec na szczytach też już zrobione. Zamontowane wiązary kratowe. 190m2 połaci dachowej że stryszkiem na całej długości i szerokości 3.12m. Nośność użytkowa strychu to 150kg/m2 także zrobię tam w przyszłości na połowie pokój gościnny/gabinet. Wiązar ma 7cm grubości. Całość konstrukcji wiazarowej z montażem za 24516zł. Edytowane 8 Czerwca 2021 przez ololek Cytuj Odnośnik do komentarza https://forum.murator.pl/topic/252638-nowy-dom-parterowy-dla-22/page/5/#findComment-7926756 Udostępnij na innych stronach Więcej opcji udostępniania
ololek 16.06.2021 06:36 Autor Zgłoś naruszenie Udostępnij Napisano 16 Czerwca 2021 Płyty mfp18 i papa podkładowa położone jako tymczasowe pokrycie bo zamówione dachówki nie wiem kiedy wyprodukuje fabryka. Dachu jest 190 M2. 66 płyt z transportem 7520 zł, papa podkładowa icopal w-pet sbs 2430 zł. Papiaki, wkręty do płyt 240zł. Montaż płyt i papy to 8000 zł. Cytuj Odnośnik do komentarza https://forum.murator.pl/topic/252638-nowy-dom-parterowy-dla-22/page/5/#findComment-7928846 Udostępnij na innych stronach Więcej opcji udostępniania
Ratpaw 16.06.2021 08:41 Zgłoś naruszenie Udostępnij Napisano 16 Czerwca 2021 Mam kilka pytan:1. ta gruba ściana pośrodku budynku do ściana nośna? Po co, skoro masz wiązary kratowe?2. czemu robiłeś szczytówki murowane, a nie przy jednej okazji wiązarowe i obite płytą? Cytuj Odnośnik do komentarza https://forum.murator.pl/topic/252638-nowy-dom-parterowy-dla-22/page/5/#findComment-7928868 Udostępnij na innych stronach Więcej opcji udostępniania
ololek 17.06.2021 08:11 Autor Zgłoś naruszenie Udostępnij Napisano 17 Czerwca 2021 (edytowane) 1) W środku ściana jest gruba ze względu na oddzielenie strefy nocnej od dziennej. Dodatkowo wpływa na stabilność ścian zewnętrznych - chociaż wieniec już sam robi robotę. Dodatkowo w tej ścianie będą rozprowadzone instalacje od CWU czy skrzynka rozdzielacza podłogowego także schowają się w grubości ściany.2) Pierwotnie chciałem szczyty z wiązara zabudowanego OSB ale jak mi wyjaśnił producent takie szczyty by pracowały bardziej niż murowane więc przy zatynkowaniu na granicy wieniec, szczyt mogłyby się pojawić pęknięcia na elewacji. Kosztowo to bez różnicy a wiązary i tak miałem na termin ustalony po wymurowaniu szczytów. Edytowane 17 Czerwca 2021 przez ololek Cytuj Odnośnik do komentarza https://forum.murator.pl/topic/252638-nowy-dom-parterowy-dla-22/page/5/#findComment-7929090 Udostępnij na innych stronach Więcej opcji udostępniania
Ratpaw 17.06.2021 10:26 Zgłoś naruszenie Udostępnij Napisano 17 Czerwca 2021 2) Pierwotnie chciałem szczyty z wiązara zabudowanego OSB ale jak mi wyjaśnił producent takie szczyty by pracowały bardziej niż murowane więc przy zatynkowaniu na granicy wieniec, szczyt mogłyby się pojawić pęknięcia na elewacji. Kosztowo to bez różnicy a wiązary i tak miałem na termin ustalony po wymurowaniu szczytów. Będziesz ocieplał od strony poddasza tę ściankę szczytową? Inaczej będzie tam potężny mostek cieplny. Cytuj Odnośnik do komentarza https://forum.murator.pl/topic/252638-nowy-dom-parterowy-dla-22/page/5/#findComment-7929123 Udostępnij na innych stronach Więcej opcji udostępniania
ololek 17.06.2021 11:08 Autor Zgłoś naruszenie Udostępnij Napisano 17 Czerwca 2021 Będziesz ocieplał od strony poddasza tę ściankę szczytową? Inaczej będzie tam potężny mostek cieplny. Tak planuję zrobić, Dodatkowo wykorzystałem na szczyty najlżejszy beton komórkowy co już trochę pomoże ograniczyć ucieczkę ciepła w nieogrzewanym strychu. Cytuj Odnośnik do komentarza https://forum.murator.pl/topic/252638-nowy-dom-parterowy-dla-22/page/5/#findComment-7929134 Udostępnij na innych stronach Więcej opcji udostępniania
ololek 22.06.2021 13:07 Autor Zgłoś naruszenie Udostępnij Napisano 22 Czerwca 2021 Okna zamontowanw na parterze. 2 czekają jeszcze na montaż na strychu ale nie ma dojścia na razie. Za wszystko z taśmami ilbruck, parapetami ciepłymi i montażem 26700 zł. Okna Prismatic z Oknoplastu. Cytuj Odnośnik do komentarza https://forum.murator.pl/topic/252638-nowy-dom-parterowy-dla-22/page/5/#findComment-7930321 Udostępnij na innych stronach Więcej opcji udostępniania
Ratpaw 22.06.2021 13:27 Zgłoś naruszenie Udostępnij Napisano 22 Czerwca 2021 Od której strony na ostatnim zdjęciu jest południe? Cytuj Odnośnik do komentarza https://forum.murator.pl/topic/252638-nowy-dom-parterowy-dla-22/page/5/#findComment-7930327 Udostępnij na innych stronach Więcej opcji udostępniania
ololek 22.06.2021 13:54 Autor Zgłoś naruszenie Udostępnij Napisano 22 Czerwca 2021 Tu są widoczne ściana wschodnia i północna dłuższa. Zdjęcie jest z godziny15 także oświetlona zachodnia strona idealnie. Cytuj Odnośnik do komentarza https://forum.murator.pl/topic/252638-nowy-dom-parterowy-dla-22/page/5/#findComment-7930333 Udostępnij na innych stronach Więcej opcji udostępniania
ololek 30.07.2021 06:40 Autor Zgłoś naruszenie Udostępnij Napisano 30 Lipca 2021 (edytowane) Ścianki działowe wymurowane. Koszt silikatu 12cm to 7370 zł za 13 palet z transportem. Murarze wzięli 3 tysiące zł. Z 500zł na klej do bloczków. Od paru dni robi elektryk. Jak skończy to podrzucę parę danych. Tauron pociągnął kilka dni temu skrzynkę pod granicę działki. Jak elektryk skończy i będę miał papiery składam wniosek o licznik. Zmniejszyłem otwór na drzwi o 50cm na szerokości aby było miejsce na włączniki. W tym roku planuję jeszcze instalacje wod-kan, tynki, podłogówka, wylewki i elewacja. I może jeszcze podbitka jak po elewacji będzie czas. A jak wyjdzie zobaczymy Edytowane 30 Lipca 2021 przez ololek Cytuj Odnośnik do komentarza https://forum.murator.pl/topic/252638-nowy-dom-parterowy-dla-22/page/5/#findComment-7937820 Udostępnij na innych stronach Więcej opcji udostępniania
ololek 10.09.2021 13:21 Autor Zgłoś naruszenie Udostępnij Napisano 10 Września 2021 (edytowane) Dostarczono mi dachówkę Braas Topas V13 koloru teak glazura, rynny z BUDMAT koloru 387 , jakieś akcesoria do dachówek. 190m2 połaci. Zamówiona w marcu pod koniec a dotarła pod koniec sierpnia.. Koszt 26500 zł.Zamówiłem również styro Swisspor lambda white 20cm, siatki i klej - koszt 12200Drzwi zewnętrzne KMT plus75 za 5418 z ciepłym montażem.Aktualnie robią mi elewację. Edytowane 10 Września 2021 przez ololek Cytuj Odnośnik do komentarza https://forum.murator.pl/topic/252638-nowy-dom-parterowy-dla-22/page/5/#findComment-7945743 Udostępnij na innych stronach Więcej opcji udostępniania
ololek 06.10.2021 07:03 Autor Zgłoś naruszenie Udostępnij Napisano 6 Października 2021 (edytowane) Elewacja zrobiona 21000zł za robociznę 190m2 ściany. Styropian 12800zl ostatecznie. Do tego Hydroeps na cokół za 900zl, kołki, zaślepki, pianki, taśmy za 1500zl, klej do siatki 1700zl, tynk silikonowy 3100zl. W listopadzie będzie dekarz pracował. A w październiku mam nadzieję że wod-kan i ogrzewanie podłogowe. Edytowane 6 Października 2021 przez ololek Cytuj Odnośnik do komentarza https://forum.murator.pl/topic/252638-nowy-dom-parterowy-dla-22/page/5/#findComment-7951590 Udostępnij na innych stronach Więcej opcji udostępniania
Dzeus86 06.10.2021 10:36 Zgłoś naruszenie Udostępnij Napisano 6 Października 2021 (edytowane) Te ścianki działowe = rozkład pomieszczeń to groza... Dużo osob, wskazywało, błędy takiego podejścia - pal licho już funkcjonalność i aspekty ergonomii, które tutaj leżą, ale estetycznie jest słabo. Szczgólnie te "schodki" ze ścianek działowych między łazienkami i wsicnieta wanna.. Edytowane 6 Października 2021 przez Dzeus86 Cytuj Odnośnik do komentarza https://forum.murator.pl/topic/252638-nowy-dom-parterowy-dla-22/page/5/#findComment-7951647 Udostępnij na innych stronach Więcej opcji udostępniania
pandzik 06.10.2021 10:47 Zgłoś naruszenie Udostępnij Napisano 6 Października 2021 Szkoda, że się nie zdecydowałeś na portfenetry w pokojach. To zawsze inne światło wpadające od podłogi. Cena 26 tys za te kilka okien, ładnie idą ceny do góry. W tak małym domku rozdział kuchni i salonu to błąd. Zrobiłeś z tego ciasne mieszkanie. Dla mnie masakra, ale pewnie każdy robi pod siebie. Cytuj Odnośnik do komentarza https://forum.murator.pl/topic/252638-nowy-dom-parterowy-dla-22/page/5/#findComment-7951650 Udostępnij na innych stronach Więcej opcji udostępniania
pandzik 06.10.2021 10:52 Zgłoś naruszenie Udostępnij Napisano 6 Października 2021 Te łazienki to faktycznie zgroza. jak sie popłytkujesz to te sprzęty ci nie wejdą. W sypialniane to trzeba bedzie wyjsc do sypialni żeby otworzyć prysznic. Jeszcze jest czas wywalić te ściany i zrobić jedną łazienkę Cytuj Odnośnik do komentarza https://forum.murator.pl/topic/252638-nowy-dom-parterowy-dla-22/page/5/#findComment-7951653 Udostępnij na innych stronach Więcej opcji udostępniania
Dzeus86 06.10.2021 11:04 Zgłoś naruszenie Udostępnij Napisano 6 Października 2021 (edytowane) zeby nie bylo ze tylko krytyka - 5 minut i nieco poprawilem, bez wiekszego przemyslenia jak ja bym to widzial.Kominek moze zostac tam gdzie jest bo u mnie to juz raczej zamysl tego jak powinienes to przemyslec zanim postawiles komin.. Znacznie wieksza kuchnia, znacznie wieksze lazienki i bardziej ustawne. NIe musisz oczywiscie miec tak duzego prysznica, nie musisz miec bietu. Pokazuje jedynie drogę do przemyslen.. https://i.postimg.cc/qqs0Y7VP/rozklad.png nie wiem też po co tak szeroka ta kotłownia.. Edytowane 6 Października 2021 przez Dzeus86 Cytuj Odnośnik do komentarza https://forum.murator.pl/topic/252638-nowy-dom-parterowy-dla-22/page/5/#findComment-7951656 Udostępnij na innych stronach Więcej opcji udostępniania
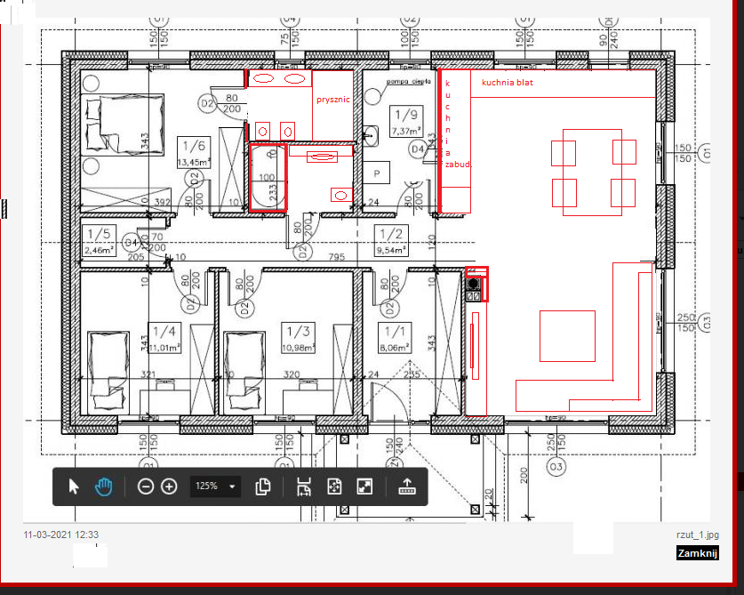
ololek 06.10.2021 13:03 Autor Zgłoś naruszenie Udostępnij Napisano 6 Października 2021 Nie wiem o co chodzi z tą ergonomia ale to zostało sprawdzone ile miejsca jest przed wanna, prysznic, WC czy umywalkami aby było wygodnie. Aspekt estetyczny to kwestia gustu. Okna portefenery także były rozważane ale uniemożliwiają wykorzystanie miejsca na ścianie pod oknem. No i sam aspekt grzania latem przez słońce i chłodu zimą. Cenowo niestety drożej. Tak obecnie wygląda projekt - połączono kuchnię z salonem. Komin wywalono bo będzie PC. Łazienki zostają jak na planie. Pomieszczenie gospodarcze duże bo to kotłownia na PC, pralnia, miejsce do suszenia ubrań, jakiś regał i miejsce do prasowania. Cytuj Odnośnik do komentarza https://forum.murator.pl/topic/252638-nowy-dom-parterowy-dla-22/page/5/#findComment-7951680 Udostępnij na innych stronach Więcej opcji udostępniania
Recommended Posts
Dołącz do dyskusji
Możesz dodać zawartość już teraz a zarejestrować się później. Jeśli posiadasz już konto, zaloguj się aby dodać zawartość za jego pomocą.